Pronájem bytu 5+1, Praha - Staré Město, Na Perštýně, 197 m2 (ID: 4246441)

Na Perštýně, Praha 1, Staré Město

96 000 Kč /za měsíc Získejte výhodnou HYPOTÉKU

(+ poplatky 1.250 Kč/os/měs, energie se přehlašují na nájemce, provize 1 nájem)

Prémioví partneři v Praze 1

Stěhovací služby

Výkup a prodej starého nábytku

Informace k bytu

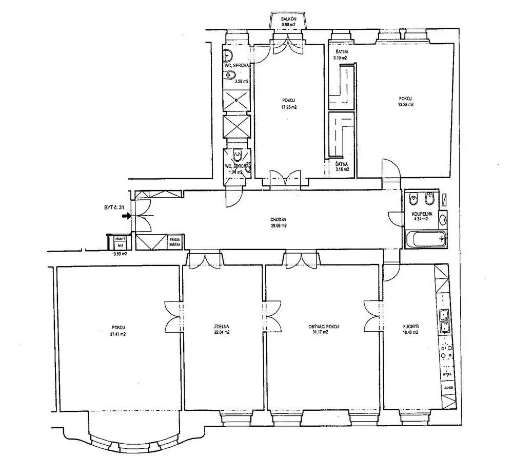
Dovoluji si Vám nabídnout k pronájmu prostorný byt 5+1 s malým balkonem v centru Prahy v ul. Na Perštýně. Byt se nachází v těsné blízkosti zastávky Národní třída a Můstek, přímo u obchodního domu Máj a Quadrio. K odpočinku a relaxaci naleznete nedaleko domu Františkánskou zahradu, kde se také nachází dětské hřiště.
Byt je situován ve 3.patře renovovaného secesního domu s výtahem. Celková plocha bytu činí 197 m2, je vybaven kuch. linkou se zabudovanými spotřebiči, 2x koupelnou, 3x WC. Vytápění je samostatným plynovým kotlem. V bytě jsou masivní parkety, zdobené štukové stropy, dvoukřídlé dveře.
Byt lze využít k bydlení i k podnikání. Pronájem bytu za účelem krátkodobých podnájmů není možný.
Měsíční paušál na domovní služby činí 900 Kč/os, záloha na vodu je 350 Kč/os/měs., elektřina a plyn v bytě se přehlašuje na nájemníka. Majitelé požadují kauci ve výši 2 nájmů, provize je 1 nájem.
K dispozici od července 2026, prohlídky jsou možné po dohodě předem.

Parametry bytu

Cena
96 000 Kč /za měsíc
Poznámka k ceně
+ poplatky 1.250 Kč/os/měs, energie se přehlašují na nájemce, provize 1 nájem
Aktualizováno
21. 4. 2026
Adresa
Na Perštýně, Praha 1, Staré Město
ID
56
Stavba
Cihlová
Stav objektu
Velmi dobrý
Patro
4. z 6
Typ objektu
Patrový
Vlastnictví
Osobní
Užitná plocha
197 m2
Podlahová plocha
197 m2
Bezbarierový přístup

Kontaktovat makléře

Máte zájem o tento byt?

Tímto, v souladu s nařízením Evropského parlamentu a Rady (EU) 2016/679, v platném znění, prohlašuji, že mi je alespoň 16 let a uděluji tak svůj souhlas se zpracováním zadaných údajů (jméno, telefon, e-mail, ip adresa) společnosti B3 Technology, s.r.o., IČ: 07330600, se sídlem Novostavby 126/23, 435 11 Lom (správce dat), za účelem předání dotazu z tohoto formuláře Vámi vybranému inzerentovi a zpětného kontaktování mé osoby. Osobní údaje bude správce zpracovávat manuálně i automaticky přímo prostřednictvím svých zaměstnanců. Informace předané tímto formulářem budou uloženy v databázi správce maximálně po dobu 10 let. Odvolání souhlasu s uložením a zpracováním poskytnutých dat lze e-mailem na info@videobydleni.cz. V případě podezření na neoprávněné použití Vámi poskytnutých údajů máte právo předat podnět k šetření Úřadu pro ochranu osobních údajů. Více informací
Chystáte se prodat nemovitost?
Pomůžeme Vám!

Inzerát si prohlédlo 0 lidí

Prodejce

Vanda Vlašánková

Vanda Vlašánková

Hlídací pes

Chcete dostávat emailem podobné nabídky pronájmu bytů 5+1 v Praze 1?

Podobné nemovitosti


Nevyhovuje Vám typ bytu? Podívejte se na jiné kategorie bytů.


Vybrané články z našeho blogu