Pronájem bytu 2+1, Brno, Oderská, 57 m2 (ID: 4246527)

Oderská, Brno, Starý Lískovec

15 900 Kč /za měsíc Získejte výhodnou HYPOTÉKU
Prémioví partneři v Brně

Informace k bytu

Nabízíme k pronájmu byt 2+1, situovaný v oblíbené lokalitě Brna - Starý Lískovec, na ulici Oderská. Tento byt nabízí perfektní kombinaci moderního bydlení s vynikající dostupností do centra, blízkostí veškeré občanské vybavenosti, ale také i v blízkosti přírody.

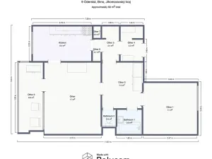
Ve výhradním zastoupení majitele nabízíme k pronájmu tento krásný byt, který se nachází v 1. podlaží bytového domu. Užitná plocha bytu je 57,56 m2, doplněná navíc o plochu lodžie 4 m2 a sklepní kóji 1,5 m2.

Kuchyni s kuchyňskou linkou lze dovybavit po dohodě s majitelem lednicí. Prostorný obývací pokoj je prosvětlený, se slunnou lodžií s výhledem do okolí. Obývací pokoj i ložnice jsou nezařízené, což Vám dává možnost byt si zařídit podle svých vlastních představ a potřeb.

V původní a udržované koupelně se nachází vana, umyvadlo (s možností napojení pračky) a samostatně pak toaleta.
Byt disponuje v předsíni vestavěnou skříní a dále pak jsou k dispozici dvě komory s praktickým úložným prostorem.

Možnost připojení internetu.

Tato nabídka je vhodná ideálně pro 2 osoby, které hledají klidné bydlení. Veškerá občanská vybavenost v místě - obchody, kavárny, restaurace, škola, školka, sportoviště, výborná dostupnost do centra, zastávka MHD 400 m (tramvaj č. 6, 7 ze zastávky Dunajská, tram č. 8 pak ze zastávky Osová spolu s trolejbusem 25, 37), parkování přímo u domu.

Pro více informací kontaktujte makléře.
Nájemné 15.900,-Kč + 4500 ,-Kč energie a zálohy na služby. Vratná kauce 22.000,-Kč

Pozn. půdorys je orientační a plochy a výměry jsou přibližné.

Parametry bytu

Cena
15 900 Kč /za měsíc
Aktualizováno
21. 4. 2026
Adresa
Oderská, Brno, Starý Lískovec
ID
pronájem Oderská
Stavba
Panelová
Stav objektu
Velmi dobrý
Patro
1.
Vlastnictví
Osobní
Užitná plocha
57 m2
Sklep
Lodžie

Kontaktovat makléře

Máte zájem o tento byt?

Tímto, v souladu s nařízením Evropského parlamentu a Rady (EU) 2016/679, v platném znění, prohlašuji, že mi je alespoň 16 let a uděluji tak svůj souhlas se zpracováním zadaných údajů (jméno, telefon, e-mail, ip adresa) společnosti B3 Technology, s.r.o., IČ: 07330600, se sídlem Novostavby 126/23, 435 11 Lom (správce dat), za účelem předání dotazu z tohoto formuláře Vámi vybranému inzerentovi a zpětného kontaktování mé osoby. Osobní údaje bude správce zpracovávat manuálně i automaticky přímo prostřednictvím svých zaměstnanců. Informace předané tímto formulářem budou uloženy v databázi správce maximálně po dobu 10 let. Odvolání souhlasu s uložením a zpracováním poskytnutých dat lze e-mailem na info@videobydleni.cz. V případě podezření na neoprávněné použití Vámi poskytnutých údajů máte právo předat podnět k šetření Úřadu pro ochranu osobních údajů. Více informací
Chystáte se prodat nemovitost?
Pomůžeme Vám!

Inzerát si prohlédlo 0 lidí

Prodejce

Ing. Mgr. Jan Slavík

Ing. Mgr. Jan Slavík

Hlídací pes

Chcete dostávat emailem podobné nabídky pronájmu bytů 2+1 v Brně?

Podobné nemovitosti


Nevyhovuje Vám typ bytu? Podívejte se na jiné kategorie bytů.


Vybrané články z našeho blogu