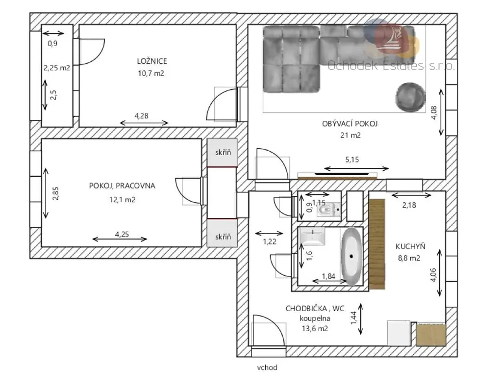
Prodej bytu 3+1, Frýdek-Místek, M. Chasáka, 74 m2

M. Chasáka, Frýdek-Místek

4 200 000 Kč /za nemovitost HYPOTÉKA od 18 771 Kč /za měsíc
Prémioví partneři v Frýdku-Místku

Informace k bytu

Upřímně? Tohle není byt pro lidi, kteří chtějí hotové věci.

Je to byt pro lidi, kteří vidí potenciál tam, kde jiní vidí linoleum. Tři pokoje, kuchyň, balkón s výhledem, 74 metrů čtverečních v původním stavu — tedy čistý list, na který si můžete napsat přesně to, co chcete.

Druhé nadzemní podlaží. Žádné výtahové drama, žádné schodové maratóny. Akorát.

Chcete otevřený koncept nebo koupelnu se sprchovým koutem z italských obkladů? Jde to. Chcete ponechat rodinné uspořádání a jen vyměnit žaluzie a podlahy? Taky jde. Chcete ho pronajmout a nechat ho pracovat za vás? Lokality ve Frýdku najdou nájemce velice rychle — poptávka je stabilní a ceny nájmů rostou.

Panelák má pověst nudného. Tento byt má pověst nevyužitého. To jsou ale dvě různé věci — a druhá z nich je příležitost.


Lokalita v centru města, všude blízko, však to znáte. Sousedi neprudí.


Pozn: Cena uvedená v inzerátu nezahrnuje zprostředkovatelský poplatek realitní kanceláře. Průkaz energetické náročnosti budovy (PENB) brzy dodáme.

Parametry bytu

Cena
4 200 000 Kč /za nemovitost Spočítat hypotéku
Aktualizováno
21. 4. 2026
Adresa
M. Chasáka, Frýdek-Místek
ID
26-07-009
Stavba
Panelová
Stav objektu
Dobrý
Patro
2. z 8
Lokalita objektu
Sídliště
Vlastnictví
Osobní
Užitná plocha
74 m2
Podlahová plocha
74 m2
Třída energetické náročnosti
G - Mimořádně nehospodárná
Elektřina
230V
Plyn
Plynovod
Odpad
Veřejná kanalizace
Topení
Ústřední dálkové
Voda
Vodovod
Topné těleso
Radiátory
Zdroj topení
Centrální dálkové
Zdroj teplé vody
Centrální dálkový ohřev
Balkon
Sklep
Výtah
Bezbarierový přístup

Kontaktovat makléře

Realitní kancelář

Ochodek Estates

Brodek u Konice 126, Brodek u Konice

Chystáte se prodat nemovitost?
Pomůžeme Vám!

Máte zájem o tento byt?

Tímto, v souladu s nařízením Evropského parlamentu a Rady (EU) 2016/679, v platném znění, prohlašuji, že mi je alespoň 16 let a uděluji tak svůj souhlas se zpracováním zadaných údajů (jméno, telefon, e-mail, ip adresa) společnosti B3 Technology, s.r.o., IČ: 07330600, se sídlem Novostavby 126/23, 435 11 Lom (správce dat), za účelem předání dotazu z tohoto formuláře Vámi vybranému inzerentovi a zpětného kontaktování mé osoby. Osobní údaje bude správce zpracovávat manuálně i automaticky přímo prostřednictvím svých zaměstnanců. Informace předané tímto formulářem budou uloženy v databázi správce maximálně po dobu 10 let. Odvolání souhlasu s uložením a zpracováním poskytnutých dat lze e-mailem na info@videobydleni.cz. V případě podezření na neoprávněné použití Vámi poskytnutých údajů máte právo předat podnět k šetření Úřadu pro ochranu osobních údajů. Více informací
Chystáte se prodat nemovitost?
Pomůžeme Vám!

Inzerát si prohlédlo 0 lidí

Prodejce

BSc. Kristýna Khan

BSc. Kristýna Khan

Hlídací pes

Chcete dostávat emailem podobné nabídky prodeje bytů 3+1 v Frýdku-Místku?

Podobné nemovitosti


Nevyhovuje Vám typ bytu? Podívejte se na jiné kategorie bytů.


Vybrané články z našeho blogu