Prodej pozemku pro bydlení, Radhošť, 8684 m2 (ID: 4246745)

Radhošť

7 990 000 Kč /za nemovitost HYPOTÉKA od 35 710 Kč /za měsíc
Prémioví partneři v Radhošti

Informace k pozemku

Máme pro vás skvělou investiční příležitost – lokalita s pozemky v obci Radhošť.

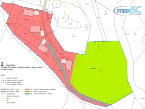
Lokalita je umístěna ve středu obce a rozprostírá se jižně okolo kostela se hřbitovem. Na pozemcích se nachází stavby původního stavení a stodoly, tyto jsou však určeny spíše k demolici. Je zde přivedena elektřina, plyn a veřejný vodovod.

Pozemky mají celkovou výměru 8.684 m2. Dle platného územního plánu se část s výměrou 3.877 m2 nachází v ploše BV – Bydlení v rodinných domech – venkovské. Zbývající část pak v plochách Zeleně ochranné a izolační (4.217 m2) a Občanské vybavenosti (83 m2). Ačkoliv se nemovitost nachází v malebném prostředí říčky Loučné, celá lokalita se nachází mimo zóny se zvýšeným rizikem výskytu povodní.

Pro vaši představu jsme nechali zpracovat varianty možného využití území s maximální efektivitou, avšak při zachování dostatečného komfortu venkovského bydlení.

Radhošť je malá obec bez širší infrastruktury, nabízející klidné venkovské bydlení. Kompletní infrastruktura, zahrnující, mateřskou, základní i střední školu, zdravotní středisko, poštu, kompletní síť obchodů a služeb se nachází v nedalekém Vysokém Mýtě (dojezd autem cca 5 minut). Základní nebo střední školy lze navštěvovat i v Chocni (vlakové spojení) nebo Horním Jelení (školní autobus).

Leží přibližně 9 km severozápadně od Vysokého Mýta a 15 km jihovýchodně od Holic. Má výborné dopravní spojení díky 5 km vzdálenému napojení na dálnici D35 (exit Ostrov). Na okolní obce a města je rovněž napojeno pravidelnými regionálními autobusovými linkami. V místní části Sedlíšťka je pak zastávka na železničním koridoru Pardubice – Česká Třebová s vlakovými spoji, díky kterým se můžete v pravidelných intervalech dostat do Pardubic (20 minut jízdy) nebo Chocně (10 minut jízdy).

Parametry pozemku

Cena
7 990 000 Kč /za nemovitost Spočítat hypotéku
Aktualizováno
22. 4. 2026
Adresa
Radhošť
ID
345
Plocha pozemku
8684 m2

Kontaktovat makléře

Máte zájem o tento pozemek?

Tímto, v souladu s nařízením Evropského parlamentu a Rady (EU) 2016/679, v platném znění, prohlašuji, že mi je alespoň 16 let a uděluji tak svůj souhlas se zpracováním zadaných údajů (jméno, telefon, e-mail, ip adresa) společnosti B3 Technology, s.r.o., IČ: 07330600, se sídlem Novostavby 126/23, 435 11 Lom (správce dat), za účelem předání dotazu z tohoto formuláře Vámi vybranému inzerentovi a zpětného kontaktování mé osoby. Osobní údaje bude správce zpracovávat manuálně i automaticky přímo prostřednictvím svých zaměstnanců. Informace předané tímto formulářem budou uloženy v databázi správce maximálně po dobu 10 let. Odvolání souhlasu s uložením a zpracováním poskytnutých dat lze e-mailem na info@videobydleni.cz. V případě podezření na neoprávněné použití Vámi poskytnutých údajů máte právo předat podnět k šetření Úřadu pro ochranu osobních údajů. Více informací
Chystáte se prodat nemovitost?
Pomůžeme Vám!

Inzerát si prohlédlo 0 lidí

Prodejce

Lukáš Horský

Lukáš Horský

Hlídací pes

Chcete dostávat emailem podobné nabídky prodeje pozemků pro bydlení v Radhošti?

Podobné nemovitosti


Nevyhovuje Vám typ pozemku? Podívejte se na jiné kategorie pozemků.


Vybrané články z našeho blogu