Soccer reality

Prodej bytu 3+kk, Praha - Vysočany, Spojovací, 69 m2

Spojovací, Praha, Vysočany

9 790 000 Kč /za nemovitost HYPOTÉKA od 43 755 Kč /za měsíc

(vč. právního a hypo servisu a provize RK)

Prémioví partneři v Praze 9

Stěhovací služby

Výkup a prodej starého nábytku

Informace k bytu

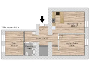
Nabízíme k prodeji pěkný byt v osobním vlastnictví, o dispozici 3+kk a výměře 69m2, který je situován ve 3.n.p., v cihlovém domě, v ulici Spojovací, v Praze 9 - Vysočanech. V roce 2024 proběhla v bytě kompletní rekonstrukce - byla provedena změna dispozice na 3+kk (původní dispozice byla 2+1), dále byly dělány nové rozvody el., vody a odpadů, nové štuky a malba, nové podlahové krytiny, kompletně nová koupelna vč. obkladů a zařizovacích předmětů, nová kuchyňská linka vč. vestavných spotřebičů, atd. Vytápění bytu je řešeno úspornými el. přímotopy, ohřev vody el. bojlerem. Dispozice bytu - vstupní chodba (12,5m2), obývací pokoj s kuchyňským koutem (21m2), ložnice se šatnou (18m2), dětský pokoj (12m2), koupelna s vanou, umyvadlem a WC (3,9m2). Výška stropu v bytě je 2,9m. Dům ve kterém je byt situován je také po rekonstrukci - v posledních letech se měnila okna za plastová, dělala se rekonstrukce interiéru domu, proběhla rekonstrukce fasády a střešní krytiny. Dům nemá výtah. Sousední zástavbu tvoří obytné domy. V místě je kompletní občanská vybavenost - škola, školka, obchody, služby, sportoviště, poliklinika jsou v docházkové vzdálenosti. Zastávka MHD je vzdálena 150m od domu. Byt je možno financovat hypotékou.

Parametry bytu

Cena
9 790 000 Kč /za nemovitost Spočítat hypotéku
Poznámka k ceně
vč. právního a hypo servisu a provize RK
Aktualizováno
22. 4. 2026
Adresa
Spojovací, Praha, Vysočany
Stavba
Cihlová
Stav objektu
Po rekonstrukci
Patro
3.
Vlastnictví
Osobní
Užitná plocha
69 m2
Elektřina
230V
Plyn
Plynovod
Odpad
Veřejná kanalizace
Komunikace
Asfaltová
Telekomunikace
Internet
Doprava
MHD
Voda
Vodovod
Topné těleso
Přímotop
Zdroj topení
Přímotop
Zdroj teplé vody
Bojler - elektro

Kontaktovat makléře

Realitní kancelář

Grygar reality

Krkonošská 1607/10, Praha, Vinohrady

Chystáte se prodat nemovitost?
Pomůžeme Vám!

Máte zájem o tento byt?

Tímto, v souladu s nařízením Evropského parlamentu a Rady (EU) 2016/679, v platném znění, prohlašuji, že mi je alespoň 16 let a uděluji tak svůj souhlas se zpracováním zadaných údajů (jméno, telefon, e-mail, ip adresa) společnosti B3 Technology, s.r.o., IČ: 07330600, se sídlem Novostavby 126/23, 435 11 Lom (správce dat), za účelem předání dotazu z tohoto formuláře Vámi vybranému inzerentovi a zpětného kontaktování mé osoby. Osobní údaje bude správce zpracovávat manuálně i automaticky přímo prostřednictvím svých zaměstnanců. Informace předané tímto formulářem budou uloženy v databázi správce maximálně po dobu 10 let. Odvolání souhlasu s uložením a zpracováním poskytnutých dat lze e-mailem na info@videobydleni.cz. V případě podezření na neoprávněné použití Vámi poskytnutých údajů máte právo předat podnět k šetření Úřadu pro ochranu osobních údajů. Více informací
Chystáte se prodat nemovitost?
Pomůžeme Vám!

Inzerát si prohlédlo 0 lidí

Prodejce

Martin Kopl

Martin Kopl

Hlídací pes

Chcete dostávat emailem podobné nabídky prodeje bytů 3+kk v Praze 9?

Podobné nemovitosti


Nevyhovuje Vám typ bytu? Podívejte se na jiné kategorie bytů.


Vybrané články z našeho blogu