Pronájem vily, Praha - Nebušice, Nebušická, 254 m2

Nebušická, Praha, Nebušice

110 000 Kč /za měsíc Získejte výhodnou HYPOTÉKU
Prémioví partneři v Praze

Stěhovací služby

Výkup a prodej starého nábytku

Informace k domu

ID zakázky: R2253

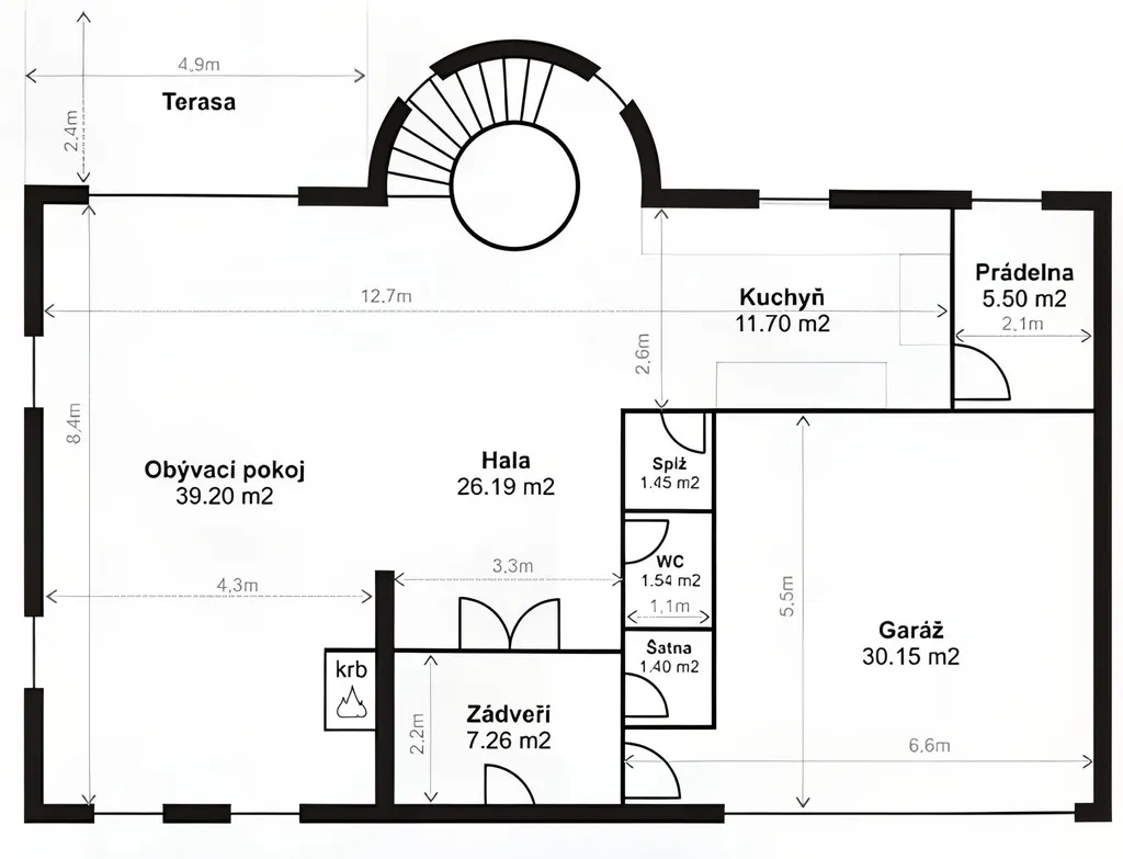
Elegantní samostatná vila je situována v uzavřeném a vysoce žádaném rezidenčním areálu v pražských Nebušicích. Dispozice domu nabízí obytnou plochu 243 m², dvojgaráž a terasu o velikosti 11 m². Součástí nemovitosti je také privátní zahrada s vyhřívaným bazénem o rozměrech 5 x 3,1 x 1,5 m.

V rámci prestižního projektu Villas Šárka, rozprostírajícího se na ploše 5 500 m², se nachází celkem sedm moderních rodinných vil. Každá z nich disponuje obytnou plochou 243 m², dvougaráží a terasou o velikosti 11 m². Ke každé vile náleží vlastní zahrada s vyhřívaným bazénem, vhodná jak pro relaxaci, tak pro aktivní odpočinek.

Domy s dispozicí čtyř ložnic jsou koncipovány s důrazem na komfort a současné standardy bydlení – samozřejmostí je podlahové vytápění i klimatizace. Vysokou úroveň vybavení podtrhují tři koupelny a tři toalety, přičemž dvě z nich jsou oddělené.

Kuchyňská linka je plně vybavena spotřebiči, jako je sklokeramická varná deska, horkovzdušná trouba, myčka nádobí, lednice s mrazákem a digestoř. Otevřený obytný prostor plynule propojuje kuchyň s obývacím pokojem, který nabízí krb a přímý vstup na zahradu.

Projekt Villas Šárka se nachází v bezprostřední blízkosti prestižní mezinárodní školy The International School of Prague. Lokalita nabízí kompletní občanskou vybavenost, včetně mateřské a základní školy, zdravotnického zařízení, obchodů, sportovní haly, tenisových kurtů a golfového hřiště. Milovníci přírody ocení blízkost přírodní rezervace Divoká Šárka. Širší infrastruktura je dostupná v nedalekých Dejvicích.

Měsíční nájemné činí 110.000,- Kč
K nastěhování ihned.

Vzhledem k absenci průkazu energetické náročnosti budovy (PENB) uvádíme v souladu se zákonem č. 406/2000 Sb. energetickou třídu G.

Pro více informací nebo domluvení prohlídky kontaktujte prosím realitního makléře.

Parametry domu

Cena
110 000 Kč /za měsíc
Aktualizováno
22. 4. 2026
Adresa
Nebušická, Praha, Nebušice
ID
R2253
Stavba
Cihlová
Stav objektu
Velmi dobrý
Typ objektu
Patrový
Druh objektu
Samostatný
Užitná plocha
254 m2
Plocha pozemku
779 m2
Třída energetické náročnosti
G - Mimořádně nehospodárná
Garáž
Terasa
Bazén

Kontaktovat makléře

Realitní kancelář

Logo Makers Reality

Makers Reality

Vinohradská 2133/138, Praha

Chystáte se prodat nemovitost?
Pomůžeme Vám!

Máte zájem o tento dům?

Tímto, v souladu s nařízením Evropského parlamentu a Rady (EU) 2016/679, v platném znění, prohlašuji, že mi je alespoň 16 let a uděluji tak svůj souhlas se zpracováním zadaných údajů (jméno, telefon, e-mail, ip adresa) společnosti B3 Technology, s.r.o., IČ: 07330600, se sídlem Novostavby 126/23, 435 11 Lom (správce dat), za účelem předání dotazu z tohoto formuláře Vámi vybranému inzerentovi a zpětného kontaktování mé osoby. Osobní údaje bude správce zpracovávat manuálně i automaticky přímo prostřednictvím svých zaměstnanců. Informace předané tímto formulářem budou uloženy v databázi správce maximálně po dobu 10 let. Odvolání souhlasu s uložením a zpracováním poskytnutých dat lze e-mailem na info@videobydleni.cz. V případě podezření na neoprávněné použití Vámi poskytnutých údajů máte právo předat podnět k šetření Úřadu pro ochranu osobních údajů. Více informací
Chystáte se prodat nemovitost?
Pomůžeme Vám!

Inzerát si prohlédlo 0 lidí

Prodejce

Makers Reality

Makers Reality

Hlídací pes

Chcete dostávat emailem podobné nabídky pronájmu vil v Praze?

Podobné nemovitosti


Nevyhovuje Vám typ domu? Podívejte se na jiné kategorie domů.


Vybrané články z našeho blogu