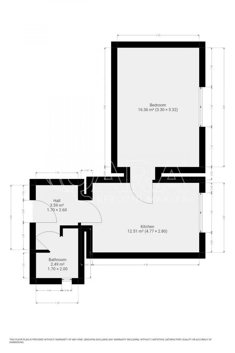
Pronájem bytu 1+1, Praha - Záběhlice, Záběhlická, 37 m2

Záběhlická, Praha 10, Záběhlice

15 990 Kč /za měsíc Získejte výhodnou HYPOTÉKU
Prémioví partneři v Praze 10

Stěhovací služby

Výkup a prodej starého nábytku

Informace k bytu

*** Nízké měsíční poplatky***

Nabízíme dlouhodobý pronájem vybaveného bytu 1+1, nacházející se v přízemí klidného domu v Záběhlicích.

Jedná se o bydlení v cihlovém domě, který má široké stěny, což slouží jako hluková bariéra. Bydlení zde je tedy překvapivě klidné.
Bydlení pro cizince je možné, nelze však přihlásit toto bydlení úřadům.
Domácí zájemci mohou registrovat trvalé bydliště dle potřeby.

Bydlení je vhodné pro zájemce se stabilním příjmem, bez finančních závazků po splatnosti.

Bydlení se nachází kousek od Hamerského rybníka a přírodního parku Meandry Botiče, odkud lze dojít až k Hostivařské přehradě.

Součástí vybavení je:
Lednice, pračka, botník, kuchyňská linka, elektrický sporák, stůl se 4 židlemi, singl 80 cm postel (může sloužit jako gauč), manželská postel 160 cm, 2 noční stolky, šatní skříň, vysavač, žehlička, sušák.
- vše dle aktuálních fotografií

- podlahy: keramická dlažba, laminát
- okna: kastlová dvojokna
- topení: plynové waw
- teplá voda: elektrický bojler
- sklep

Finanční přehled:
Měsíční nájemné: 15 990 Kč
Měsíční poplatky: 1 115 Kč / 1 osoba + 400 Kč druhá osoba
Jistota (kauce): 20 000 Kč
Poplatek RK: 1 měsíční nájem (neplatí se DPH)
- elektřina a plyn na nájemníky

Pro více informací a sjednání prohlídky mi neváhejte dát vědět.

Parametry bytu

Cena
15 990 Kč /za měsíc
Aktualizováno
22. 4. 2026
Adresa
Záběhlická, Praha 10, Záběhlice
ID
20135
Stavba
Cihlová
Stav objektu
Dobrý
Patro
1. z 4
Vybaveno
Ano
Typ objektu
Patrový
Vlastnictví
Osobní
Užitná plocha
37 m2
Podlahová plocha
37 m2
Třída energetické náročnosti
G - Mimořádně nehospodárná
Elektřina
230V
Plyn
Plynovod
Odpad
Veřejná kanalizace
Topení
Lokální plynové
Doprava
Vlak, MHD
Voda
Vodovod
Topné těleso
WAW
Zdroj topení
WAW
Sklep
Bezbarierový přístup

Kontaktovat makléře

Realitní kancelář

Logo QARA, s.r.o.

QARA, s.r.o.

Šafaříkova 201/17, Praha

Chystáte se prodat nemovitost?
Pomůžeme Vám!

Máte zájem o tento byt?

Tímto, v souladu s nařízením Evropského parlamentu a Rady (EU) 2016/679, v platném znění, prohlašuji, že mi je alespoň 16 let a uděluji tak svůj souhlas se zpracováním zadaných údajů (jméno, telefon, e-mail, ip adresa) společnosti B3 Technology, s.r.o., IČ: 07330600, se sídlem Novostavby 126/23, 435 11 Lom (správce dat), za účelem předání dotazu z tohoto formuláře Vámi vybranému inzerentovi a zpětného kontaktování mé osoby. Osobní údaje bude správce zpracovávat manuálně i automaticky přímo prostřednictvím svých zaměstnanců. Informace předané tímto formulářem budou uloženy v databázi správce maximálně po dobu 10 let. Odvolání souhlasu s uložením a zpracováním poskytnutých dat lze e-mailem na info@videobydleni.cz. V případě podezření na neoprávněné použití Vámi poskytnutých údajů máte právo předat podnět k šetření Úřadu pro ochranu osobních údajů. Více informací
Chystáte se prodat nemovitost?
Pomůžeme Vám!

Inzerát si prohlédlo 0 lidí

Prodejce

Ivo Čech

Ivo Čech

Hlídací pes

Chcete dostávat emailem podobné nabídky pronájmu bytů 1+1 v Praze 10?

Podobné nemovitosti


Nevyhovuje Vám typ bytu? Podívejte se na jiné kategorie bytů.


Vybrané články z našeho blogu