Pronájem bytu 1+kk, Praha - Vršovice, Bartoškova, 35 m2

Bartoškova, Praha, Vršovice

19 000 Kč /za měsíc Získejte výhodnou HYPOTÉKU

(poplatky 5000,-kauce 24000,-, provize 24000,-)

Prémioví partneři v Praze 10

Stěhovací služby

Výkup a prodej starého nábytku

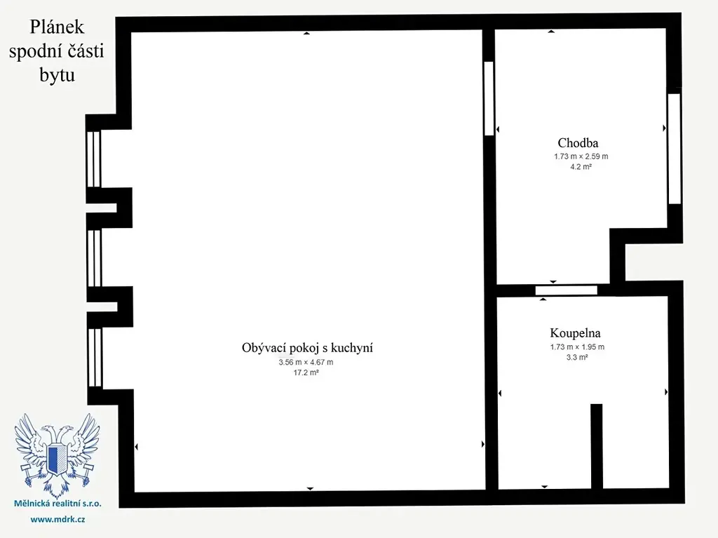
Informace k bytu

Exkluzivně vám nabízíme pronájem atypického bytu 1+kk s obytnou galerií v nově zrekonstruovaném bytovém domě v industriálním stylu v ulici Bartoškova ve Vršovicích. Tento byt s praktickou dispozicí se skládá ze vstupní chodby s vestavěnou skříní, koupelny se sprchovým koutem a toaletou, obývacího pokoje s kuchyňskou linkou a z obytné galerie s otevřeným prostorem směrem nad obývací pokoj. K bytu dále náleží sklep v suterénu budovy. Celková užitná plocha bytu včetně sklepa a obytné galerie činní 37,5 m2 (z toho 25 m2 - chodba, koupelna a obývací pokoj, 10 m2 – obytná galerie, 2,5 m2 – sklep). Kuchyňská linka je vybavena el. troubou, el. vařičem, dřezem, digestoří a zabudovanou ledničkou. V bytě je dostatek úložných prostor ve vestavěné skříni na chodbě, další úložné prostory se nachází ve vestavěné skříni pod schody, na kolo či další věci lze využít sklep v suterénu budovy.
Lokalita nabízí perfektní dopravní spojení díky pouze 2 minuty chůze vzdáleného vlakového nádraží Vršovice, kde se nachází i tramvajová zastávka s linkami 6, 7 a 19. Tyto spoje vás během 10 až 15 minut pohodlně dopraví na všechny linky metra – konkrétně na trasu A (stanice Strašnická či Želivského), trasu B (Karlovo náměstí) i trasu C (I. P. Pavlova)., které zajišťují rychlý přesun do centra města i okolních čtvrtí. V bezprostředním okolí naleznete kompletní občanskou vybavenost s množstvím obchodů a restaurací, přičemž k relaxaci v zeleni lákají nedaleké Havlíčkovy sady (Grébovka) či park Folimanka.
Měsíční poplatky včetně elektřiny pro dvě osoby v bytě cca 5000,-Kč/měsíc, nájem 19 000,-Kč/měsíc, kauce 24 000,-Kč, provize RK 24 000,-Kč. Majitel si vyhrazuje právo výběru nájemce dle jím zvolených kritérií.

Parametry bytu

Cena
19 000 Kč /za měsíc
Poznámka k ceně
poplatky 5000,-kauce 24000,-, provize 24000,-
Aktualizováno
22. 4. 2026
Adresa
Bartoškova, Praha, Vršovice
ID
R32026
Stavba
Cihlová
Stav objektu
Velmi dobrý
Patro
2.
Vlastnictví
Osobní
Užitná plocha
35 m2
Podlahová plocha
37 m2
Třída energetické náročnosti
G - Mimořádně nehospodárná
Topení
Lokální elektrické
Topné těleso
Podlahové vytápění
Zdroj topení
Přímotop
Zdroj teplé vody
Elektrokotel
Sklep

Kontaktovat makléře

Máte zájem o tento byt?

Tímto, v souladu s nařízením Evropského parlamentu a Rady (EU) 2016/679, v platném znění, prohlašuji, že mi je alespoň 16 let a uděluji tak svůj souhlas se zpracováním zadaných údajů (jméno, telefon, e-mail, ip adresa) společnosti B3 Technology, s.r.o., IČ: 07330600, se sídlem Novostavby 126/23, 435 11 Lom (správce dat), za účelem předání dotazu z tohoto formuláře Vámi vybranému inzerentovi a zpětného kontaktování mé osoby. Osobní údaje bude správce zpracovávat manuálně i automaticky přímo prostřednictvím svých zaměstnanců. Informace předané tímto formulářem budou uloženy v databázi správce maximálně po dobu 10 let. Odvolání souhlasu s uložením a zpracováním poskytnutých dat lze e-mailem na info@videobydleni.cz. V případě podezření na neoprávněné použití Vámi poskytnutých údajů máte právo předat podnět k šetření Úřadu pro ochranu osobních údajů. Více informací
Chystáte se prodat nemovitost?
Pomůžeme Vám!

Inzerát si prohlédlo 0 lidí

Prodejce

Jan Cemper

Jan Cemper

Hlídací pes

Chcete dostávat emailem podobné nabídky pronájmu bytů 1+kk v Praze 10?

Podobné nemovitosti


Nevyhovuje Vám typ bytu? Podívejte se na jiné kategorie bytů.


Vybrané články z našeho blogu