Pronájem bytu 1+kk, Praha - Zbraslav, Spojařů, 45 m2

Spojařů, Zbraslav - Praha-Zbraslav

17 500 Kč /za měsíc Získejte výhodnou HYPOTÉKU

(vratná jistota, náklady na bydlení 3 000 Kč, poplatek za podnájem)

Prémioví partneři v Praze 5

Stěhovací služby

Výkup a prodej starého nábytku

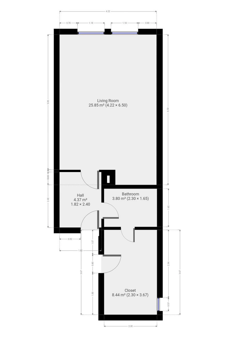
Informace k bytu

K dlouhodobému podnájmu nabízíme příjemný byt o dispozici 1+kk v klidné lokalitě Praha - Zbraslav. Výhodou bytu je však místnost navíc, do které je vstup přímo z bytu a je možné ji využívat dle svých potřeb i jako ložnici. Byt o celkové výměře 45 m2 se nachází ve čtvrtém patře cihlového domu. Byt má výhled zeleně.

Byt se nabízí částečně vybavený. Kuchyně disponuje lednicí, elektrickou troubou, sporákem, digestoří a mikrovlnnou troubou. Obývací část je nezařízená. Součástí koupelny je sprchový kout, umyvadlo, toaleta a pračka. V předsíni najdeme šatní skříň.

V okolí domu jsou restaurace, lékárna, supermarket Albert, základní škola. V blízkosti je také Přírodní rezervace Šance. Pět minut chůze od domu je vzdálená autobusová zastávka Na Plácku.

Domácí mazlíčci jsou povoleni.

Uvedena energetická kategorie G, jelikož nemáme k dispozici PENB.

Byt pronajímá Ideální nájemce - služba, se kterou budete bydlet bezstarostně a za férových podmínek. Když se něco přihodí, k dispozici jsou správci, kteří s vámi vše vyřeší. Pomůžeme s veškerou administrativou, s nastavením plateb a zajistíme vám speciální pojištění. Pojďte bydlet s námi!

Parametry bytu

Cena
17 500 Kč /za měsíc
Poznámka k ceně
vratná jistota, náklady na bydlení 3 000 Kč, poplatek za podnájem
Aktualizováno
23. 4. 2026
Adresa
Spojařů, Zbraslav - Praha-Zbraslav
ID
N3060
Stavba
Cihlová
Stav objektu
Velmi dobrý
Patro
4. z 4
Vybaveno
Částečně
Typ objektu
Patrový
Lokalita objektu
Klidná část obce
Vlastnictví
Osobní
Užitná plocha
45 m2
Podlahová plocha
45 m2
Elektřina
230V
Topení
Ústřední dálkové
Sklep
Výtah

Kontaktovat makléře

Máte zájem o tento byt?

Tímto, v souladu s nařízením Evropského parlamentu a Rady (EU) 2016/679, v platném znění, prohlašuji, že mi je alespoň 16 let a uděluji tak svůj souhlas se zpracováním zadaných údajů (jméno, telefon, e-mail, ip adresa) společnosti B3 Technology, s.r.o., IČ: 07330600, se sídlem Novostavby 126/23, 435 11 Lom (správce dat), za účelem předání dotazu z tohoto formuláře Vámi vybranému inzerentovi a zpětného kontaktování mé osoby. Osobní údaje bude správce zpracovávat manuálně i automaticky přímo prostřednictvím svých zaměstnanců. Informace předané tímto formulářem budou uloženy v databázi správce maximálně po dobu 10 let. Odvolání souhlasu s uložením a zpracováním poskytnutých dat lze e-mailem na info@videobydleni.cz. V případě podezření na neoprávněné použití Vámi poskytnutých údajů máte právo předat podnět k šetření Úřadu pro ochranu osobních údajů. Více informací
Chystáte se prodat nemovitost?
Pomůžeme Vám!

Inzerát si prohlédlo 0 lidí

Prodejce

Miloslava Kačerová

Miloslava Kačerová

Hlídací pes

Chcete dostávat emailem podobné nabídky pronájmu bytů 1+kk v Praze 5?

Podobné nemovitosti


Nevyhovuje Vám typ bytu? Podívejte se na jiné kategorie bytů.


Vybrané články z našeho blogu