Prodej pozemku pro bydlení, Kožušice, 815 m2 (ID: 4248652)

Kožušice

1 790 000 Kč /za nemovitost HYPOTÉKA od 8 000 Kč /za měsíc

(včetně provize, včetně právního servisu)

Prémioví partneři v Kožušicích

Informace k pozemku

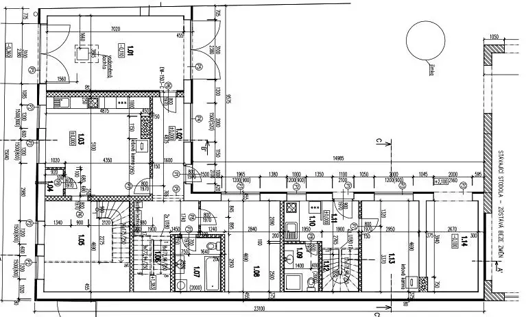
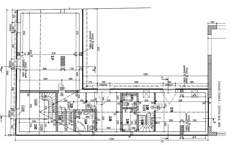
Nabízím k prodeji stavební pozemek o výměře 815 m² v obci Kožušice, situovaný na úpatí Chřibů (Buchlovské kopce) s dobrou dostupností do okolních měst.

Na pozemku je již vydané stavební povolení a realizována základová deska včetně přípojek, což výrazně urychluje zahájení výstavby.

Součástí je také původní hospodářské stavení, které může sloužit jako zázemí během stavby nebo jej lze následně rekonstruovat a využít dle vlastních představ.

Schválena je výstavba řadového, dvoupodlažního domu o půdorysných rozměrech 15,04 × 23,1 m se sedlovou střechou, s možností až dvou samostatných bytových jednotek.

Projekt respektuje původní charakter zástavby – zachovává uliční čáru i výšku hřebene střechy a citlivě navazuje na okolní architekturu.

Hlavní výhody:

vydané stavební povolení
hotová základová deska včetně přípojek
možnost dvougeneračního bydlení / investice
klidná lokalita v přírodě Chřibů
hospodářská budova na pozemku

Pro více informací nebo domluvení prohlídky mě neváhejte kontaktovat.

Parametry pozemku

Cena
1 790 000 Kč /za nemovitost Spočítat hypotéku
Poznámka k ceně
včetně provize, včetně právního servisu
Aktualizováno
23. 4. 2026
Adresa
Kožušice
ID
20342
Plocha pozemku
815 m2
Elektřina
230V
Odpad
Veřejná kanalizace
Komunikace
Asfaltová
Telekomunikace
Internet
Doprava
Silnice, MHD, Autobus
Voda
Místní zdroj vody, Studna

Kontaktovat makléře

Máte zájem o tento pozemek?

Tímto, v souladu s nařízením Evropského parlamentu a Rady (EU) 2016/679, v platném znění, prohlašuji, že mi je alespoň 16 let a uděluji tak svůj souhlas se zpracováním zadaných údajů (jméno, telefon, e-mail, ip adresa) společnosti B3 Technology, s.r.o., IČ: 07330600, se sídlem Novostavby 126/23, 435 11 Lom (správce dat), za účelem předání dotazu z tohoto formuláře Vámi vybranému inzerentovi a zpětného kontaktování mé osoby. Osobní údaje bude správce zpracovávat manuálně i automaticky přímo prostřednictvím svých zaměstnanců. Informace předané tímto formulářem budou uloženy v databázi správce maximálně po dobu 10 let. Odvolání souhlasu s uložením a zpracováním poskytnutých dat lze e-mailem na info@videobydleni.cz. V případě podezření na neoprávněné použití Vámi poskytnutých údajů máte právo předat podnět k šetření Úřadu pro ochranu osobních údajů. Více informací
Chystáte se prodat nemovitost?
Pomůžeme Vám!

Inzerát si prohlédlo 0 lidí

Prodejce

Bc. Milan Zmrzlý, MRE

Bc. Milan Zmrzlý, MRE

Hlídací pes

Chcete dostávat emailem podobné nabídky prodeje pozemků pro bydlení v Kožušicích?

Podobné nemovitosti


Nevyhovuje Vám typ pozemku? Podívejte se na jiné kategorie pozemků.


Vybrané články z našeho blogu