Pronájem obchodního prostoru, Praha - Holešovice, Jankovcova, 290 m2 (ID: 4248856)

Jankovcova, Praha, Holešovice

15,9 € /za metr čtvereční / měsíc Získejte výhodnou HYPOTÉKU
Prémioví partneři v Praze 7

Stěhovací služby

Výkup a prodej starého nábytku

Informace k nemovitosti

Nabízíme k pronájmu bez provize exkluzivní kancelářské a obchodní prostory v moderní administrativní budově Lighthouse Waterfront Tower.

Budova poskytuje vysoký standard pracovního prostředí s atraktivním designem a panoramatickým výhledem na Vltavu. Součástí je reprezentativní centrální recepce, 24hodinová ostraha, šest rychlostních výtahů a flexibilní kancelářské dispozice. Nájemci mohou využívat sociální zázemí, jídelnu, lékárnu, kavárnu a obchody přímo v budově.

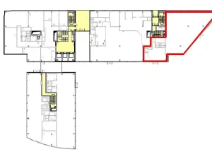
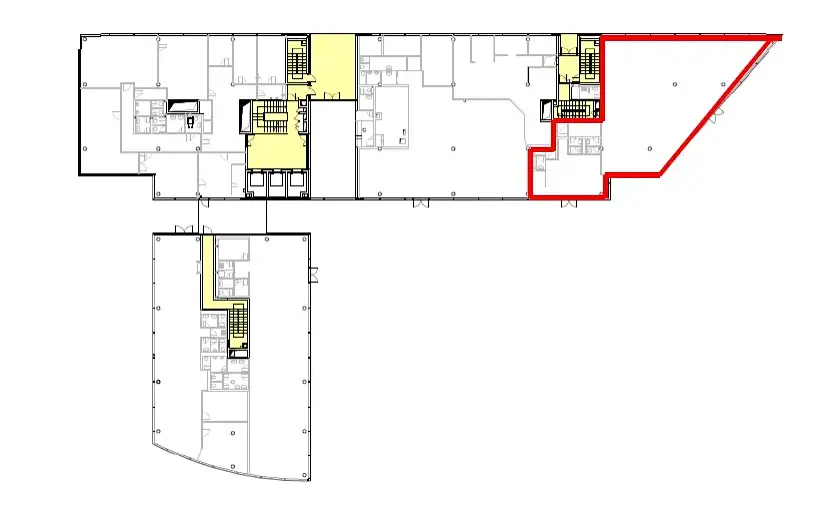
Aktuálně volné kancelářské prostory:
Budova B
přízemí, obchodní prostory 291 m2 (ihned k dispozici, vstup z ulice)vhodné i pro zdravo provoz
2. patro, kanceláře 478 m2

Cena pronájmu:
Kanceláře 15.90 EUR/m2/měsíc + DPH
Obchodní prostory 15.90 EUR/m2/měsíc + DPH
Služby 135,-Kč/m2/měsíc + elektrická energie nájemce
Add-on faktor 8 %
Parkování v podzemních garážích 130 EUR + DPH/místo/měsíc

Lighthouse Waterfront Tower nabízí moderní kancelářské prostředí v atraktivní lokalitě s vynikající dopravní dostupností a širokou nabídkou služeb v okolí.

Neztrácejte čas hledáním – kontaktujte nás a nechte si zdarma připravit přehled nejlepších alternativ v okolí i celé Praze. Bez provize, s individuálním přístupem a detailní znalostí trhu.

Parametry nemovitosti

Cena
15,9 € /za metr čtvereční / měsíc
Aktualizováno
23. 4. 2026
Adresa
Jankovcova, Praha, Holešovice
Stavba
Cihlová
Stav objektu
Velmi dobrý
Patro
1.
Užitná plocha
290 m2
Parkování

Kontaktovat makléře

Máte zájem o tuto nemovistost?

Tímto, v souladu s nařízením Evropského parlamentu a Rady (EU) 2016/679, v platném znění, prohlašuji, že mi je alespoň 16 let a uděluji tak svůj souhlas se zpracováním zadaných údajů (jméno, telefon, e-mail, ip adresa) společnosti B3 Technology, s.r.o., IČ: 07330600, se sídlem Novostavby 126/23, 435 11 Lom (správce dat), za účelem předání dotazu z tohoto formuláře Vámi vybranému inzerentovi a zpětného kontaktování mé osoby. Osobní údaje bude správce zpracovávat manuálně i automaticky přímo prostřednictvím svých zaměstnanců. Informace předané tímto formulářem budou uloženy v databázi správce maximálně po dobu 10 let. Odvolání souhlasu s uložením a zpracováním poskytnutých dat lze e-mailem na info@videobydleni.cz. V případě podezření na neoprávněné použití Vámi poskytnutých údajů máte právo předat podnět k šetření Úřadu pro ochranu osobních údajů. Více informací
Chystáte se prodat nemovitost?
Pomůžeme Vám!

Inzerát si prohlédlo 0 lidí

Prodejce

Magda Bittmanová

Magda Bittmanová

Hlídací pes

Chcete dostávat emailem podobné nabídky pronájmu obchodních prostor v Praze 7?

Podobné nemovitosti


Nevyhovuje Vám typ nemovitosti? Podívejte se na jiné kategorie komerčních.


Vybrané články z našeho blogu