Remax Power 2

Prodej rodinného domu, Rožmitál pod Třemšínem, 115 m2

Rožmitál pod Třemšínem

16 500 000 Kč /za nemovitost HYPOTÉKA od 73 745 Kč /za měsíc

(včetně provize RK a právního servisu)

Prémioví partneři v Rožmitále pod Třemšínem

Revize elektrických zařízení

Informace k domu

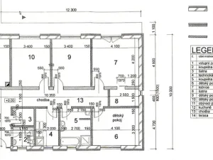
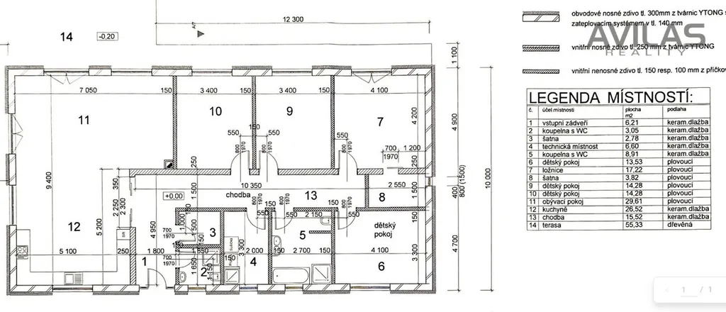
Nabízíme k prodeji velkorysý rodinný dům – bungalov o celkové užitné ploše 195 m².
Prostorný a světlý interiér 5+kk, poskytuje maximální komfort i pro početnější rodinu.

Dispoziční řešení:
Po vstupu do zádveří se nachází koupelna se sprchovým koutem a toaletou, šatna, dále z chodby technická místnost a vstup do srdce domu – prostorného obývacího pokoje s kuchyňským koutem.

Dvoje francouzské dveře zajišťují dostatek denního světla a přímý vstup na terasu / zimní zahradu 10m2, čímž přirozeně propojují interiér s exteriérem.

Z chodby pokračuje vstup do čtyř pokojů a druhé prostorné koupelny s vanou, další sprchou a toaletou. Ložnice má vlastní šatnu a další francouzské dveře se vstupem na zahradu.

Topení domu řeší krbová kamna s teplovodním výměníkem napojená na rozvody podlahového vytápění, která zajišťují příjemné a rovnoměrné teplo v celém interiéru. Systém je doplněn elektrokotlem jako podpůrným zdrojem, což umožňuje pohodlný provoz po celý rok. Výsledkem jsou nízké náklady na vytápění.
Budova se pyšní štítkem energetické náročnosti – třída B.

Dům je plně vybaven, nachází se na rozlehlém pozemku o výměře 5 893 m², který poskytuje dostatek prostoru pro relaxaci i venkovní aktivity.

Součástí nabídky je také stavba o výměře 55 m², vhodná jako garáž nebo menší dílna.

Na pozemku se nachází nově vybudovaný skleník, rozvod užitkové vody po celé zahradě a zeleninová zahrada. Dále je zde vysazeno množství okrasných keřů, stromů a květin, které dotvářejí příjemný charakter zahrady.

V zadní části pozemku, směrem do volné zeleně, se nachází nově vybudovaná soustava sedmi tůní a prostorný ovocný sad. Tomuto celku předchází hospodářská část určená pro domácí chov.

Rožmitál pod Třemšínem je ideálním výchozím bodem pro turistiku a cykloturistiku do pohoří Brd, současně nabízí všechno potřebné pro každodenní život – školu, školku, lékaře, obchody i sportoviště.
Příbram je vzdálená 10km, Praha 75km - po D4 hodinu autem. Plzeň je vzdálená 47km.
V případě zájmu Vám zdarma zprostředkujeme sjednání hypotéky.

Parametry domu

Cena
16 500 000 Kč /za nemovitost Spočítat hypotéku
Poznámka k ceně
včetně provize RK a právního servisu
Aktualizováno
23. 4. 2026
Adresa
Rožmitál pod Třemšínem
ID
1419
Stavba
Cihlová
Stav objektu
Velmi dobrý
Vybaveno
Ano
Typ objektu
Přízemní
Lokalita objektu
Klidná část obce
Užitná plocha
115 m2
Podlahová plocha
5893 m2
Plocha pozemku
5893 m2
Třída energetické náročnosti
B - Velmi úsporná
Odpad
Veřejná kanalizace
Voda
Vodovod
Garáž
Terasa

Kontaktovat makléře

Máte zájem o tento dům?

Tímto, v souladu s nařízením Evropského parlamentu a Rady (EU) 2016/679, v platném znění, prohlašuji, že mi je alespoň 16 let a uděluji tak svůj souhlas se zpracováním zadaných údajů (jméno, telefon, e-mail, ip adresa) společnosti B3 Technology, s.r.o., IČ: 07330600, se sídlem Novostavby 126/23, 435 11 Lom (správce dat), za účelem předání dotazu z tohoto formuláře Vámi vybranému inzerentovi a zpětného kontaktování mé osoby. Osobní údaje bude správce zpracovávat manuálně i automaticky přímo prostřednictvím svých zaměstnanců. Informace předané tímto formulářem budou uloženy v databázi správce maximálně po dobu 10 let. Odvolání souhlasu s uložením a zpracováním poskytnutých dat lze e-mailem na info@videobydleni.cz. V případě podezření na neoprávněné použití Vámi poskytnutých údajů máte právo předat podnět k šetření Úřadu pro ochranu osobních údajů. Více informací
Chystáte se prodat nemovitost?
Pomůžeme Vám!

Inzerát si prohlédlo 0 lidí

Prodejce

Miluše Votava Kolářová

Miluše Votava Kolářová

Hlídací pes

Chcete dostávat emailem podobné nabídky prodeje rodinných domů v Rožmitále pod Třemšínem?

Top nabídky

Podobné nemovitosti


Nevyhovuje Vám typ domu? Podívejte se na jiné kategorie domů.


Vybrané články z našeho blogu