Pronájem obchodního prostoru, Hradec Králové, třída Karla IV., 89 m2

třída Karla IV., Hradec Králové

14 834 Kč /za měsíc Získejte výhodnou HYPOTÉKU

(Minimální nabídková cena bez DPH.)

Prémioví partneři v Hradci Králové

Informace k nemovitosti

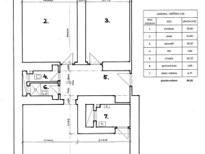
Pronájem nebytových prostor z majetku Statutárního města Hradec Králové - pronájem prostor s využitím pro prodejnu na třídě Karla IV. č.p. 614 o celkové ploše 89 m2. K dispozici prodejna s výkladcem, kancelářemi a sociálním zázemím. Zavedena elektřina, prostory jsou vytápěné plynovým kotlem. Prostor je určen k celkové rekonstrukci. Pronájem formou výběrového řízení – nabídky nutno podat nejpozději do 25.5.2026. Bližší informace na úřední desce magistrátu nebo na vyžádání.

Parametry nemovitosti

Cena
14 834 Kč /za měsíc
Poznámka k ceně
Minimální nabídková cena bez DPH.
Aktualizováno
23. 4. 2026
Adresa
třída Karla IV., Hradec Králové
ID
OM2/14/2026
Stavba
Cihlová
Stav objektu
Před rekonstrukcí
Vybaveno
Ne
Lokalita objektu
Centrum obce
Užitná plocha
89 m2
Třída energetické náročnosti
G - Mimořádně nehospodárná
Elektřina
230V
Odpad
Veřejná kanalizace
Komunikace
Asfaltová
Doprava
Silnice, MHD
Voda
Vodovod
Zdroj topení
Plynový kotel
Bezbarierový přístup

Kontaktovat makléře

Realitní kancelář

RIDO

Baarova 1380/15, Hradec Králové

Chystáte se prodat nemovitost?
Pomůžeme Vám!

Máte zájem o tuto nemovistost?

Tímto, v souladu s nařízením Evropského parlamentu a Rady (EU) 2016/679, v platném znění, prohlašuji, že mi je alespoň 16 let a uděluji tak svůj souhlas se zpracováním zadaných údajů (jméno, telefon, e-mail, ip adresa) společnosti B3 Technology, s.r.o., IČ: 07330600, se sídlem Novostavby 126/23, 435 11 Lom (správce dat), za účelem předání dotazu z tohoto formuláře Vámi vybranému inzerentovi a zpětného kontaktování mé osoby. Osobní údaje bude správce zpracovávat manuálně i automaticky přímo prostřednictvím svých zaměstnanců. Informace předané tímto formulářem budou uloženy v databázi správce maximálně po dobu 10 let. Odvolání souhlasu s uložením a zpracováním poskytnutých dat lze e-mailem na info@videobydleni.cz. V případě podezření na neoprávněné použití Vámi poskytnutých údajů máte právo předat podnět k šetření Úřadu pro ochranu osobních údajů. Více informací
Chystáte se prodat nemovitost?
Pomůžeme Vám!

Inzerát si prohlédlo 0 lidí

Prodejce

Radek Vohlídka

Radek Vohlídka

Hlídací pes

Chcete dostávat emailem podobné nabídky pronájmu obchodních prostor v Hradci Králové?

Podobné nemovitosti


Nevyhovuje Vám typ nemovitosti? Podívejte se na jiné kategorie komerčních.


Vybrané články z našeho blogu