Prodej rodinného domu, Cartagena, Španělsko, 79 m2

Cartagena

255 000 € /za nemovitost
Prémioví partneři

Informace k domu

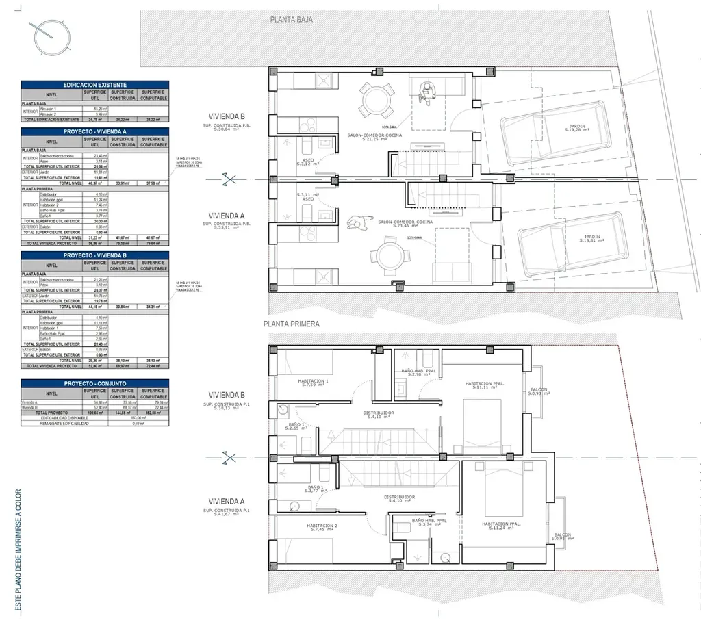
Řadový dům v Cartageně – novostavba
Cartagena


2 ložnice
3 koupelny
79 m²

Nové řadové domy jen 50 m od pláže v La Azohía, Cartagena
Exkluzivní bydlení pár kroků od Středozemního moře

Objevte tuto velmi omezenou nabídku novostavby – pouze dva moderní řadové domy, které se nachází pouhých 50 metrů od pláže v La Azohía (Cartagena).
Tato výjimečná přímořská lokalita na Costa Cálida je známá svými křišťálově čistými vodami, klidnou atmosférou a nedotčenou přírodou.
Ideální místo pro ty, kteří hledají klid u moře – La Azohía nabízí autentický středomořský životní styl s malými zátokami, restauracemi u moře a krásnými pobřežními promenádami.

Moderní dispozice s výhledem na moře a soukromým soláriem
Každý dům má dvě podlaží, a navíc soukromou střešní terasu (solárium) s otevřeným výhledem na moře.
Přízemí:
• světlý otevřený obývací pokoj s jídelnou a kuchyní
• navrženo pro maximální světlo a komfort
• koupelna
• přímý vstup na soukromou zahradu
Zahradu lze využít:
• jako parkovací místo mimo ulici
• nebo ji doplnit o soukromý bazén (za příplatek)
1. patro:
• prostorná hlavní ložnice s vlastní koupelnou
• druhá ložnice
• další plně vybavená koupelna
Střešní terasa (solárium):
• ideální pro relax, opalování nebo venkovní posezení
• krásný výhled na Středozemní moře

Kvalitní provedení a moderní komfort
Domy jsou postaveny z kvalitních materiálů a nabízejí:
• vestavěné skříně v ložnicích
• přípravu na centrální klimatizaci
• přípravu na instalaci kuchyně (možnost přizpůsobení)
• moderní design a praktickou dispozici
Vhodné jako:
✔️ trvalé bydlení
✔️ rekreační dům
✔️ investice

Výjimečná lokalita La Azohía (Cartagena)
La Azohía je malebná pobřežní obec v oblasti Cartagena, známá:
• klidným prostředím
• chráněnou mořskou oblastí
• blízkostí přírody
Zároveň nabízí základní služby, restaurace a dobré spojení do větších měst.

Vzdálenosti
• Pláž La Azohía: 50 m
• Centrum Cartagena: 25 km
• Přístav Puerto de Mazarrón: 20 km
• Golf La Manga Club: 35 km
• Letiště Murcia Corvera: 45 km
• Letiště Alicante: 120 km

Středomořský život u moře
Život v La Azohía znamená slunce, výhled na moře a klidnější tempo po celý rok.
Díky kombinaci skvělé polohy, moderního designu a omezené nabídky jde o jedinečnou příležitost na Costa Cálida.

Parametry domu

Cena
255 000 € /za nemovitost
Aktualizováno
27. 4. 2026
Adresa
Cartagena
Stavba
Panelová
Stav objektu
Novostavba
Užitná plocha
79 m2
Plocha pozemku
98 m2

Kontaktovat makléře

Máte zájem o tento dům?

Tímto, v souladu s nařízením Evropského parlamentu a Rady (EU) 2016/679, v platném znění, prohlašuji, že mi je alespoň 16 let a uděluji tak svůj souhlas se zpracováním zadaných údajů (jméno, telefon, e-mail, ip adresa) společnosti B3 Technology, s.r.o., IČ: 07330600, se sídlem Novostavby 126/23, 435 11 Lom (správce dat), za účelem předání dotazu z tohoto formuláře Vámi vybranému inzerentovi a zpětného kontaktování mé osoby. Osobní údaje bude správce zpracovávat manuálně i automaticky přímo prostřednictvím svých zaměstnanců. Informace předané tímto formulářem budou uloženy v databázi správce maximálně po dobu 10 let. Odvolání souhlasu s uložením a zpracováním poskytnutých dat lze e-mailem na info@videobydleni.cz. V případě podezření na neoprávněné použití Vámi poskytnutých údajů máte právo předat podnět k šetření Úřadu pro ochranu osobních údajů. Více informací
Chystáte se prodat nemovitost?
Pomůžeme Vám!

Inzerát si prohlédlo 3 lidí

Prodejce

Martina Kroupová

Martina Kroupová

Hlídací pes

Chcete dostávat emailem podobné nabídky prodeje rodinných domů?

Podobné nemovitosti


Nevyhovuje Vám typ domu? Podívejte se na jiné kategorie domů.


Vybrané články z našeho blogu