Pronájem bytu 3+kk, Ostrava, Hasičská, 75 m2 (ID: 4249771)

Hasičská, Ostrava, Hrabůvka

22 500 Kč /za měsíc Získejte výhodnou HYPOTÉKU
Prémioví partneři v Ostravě

Informace k bytu

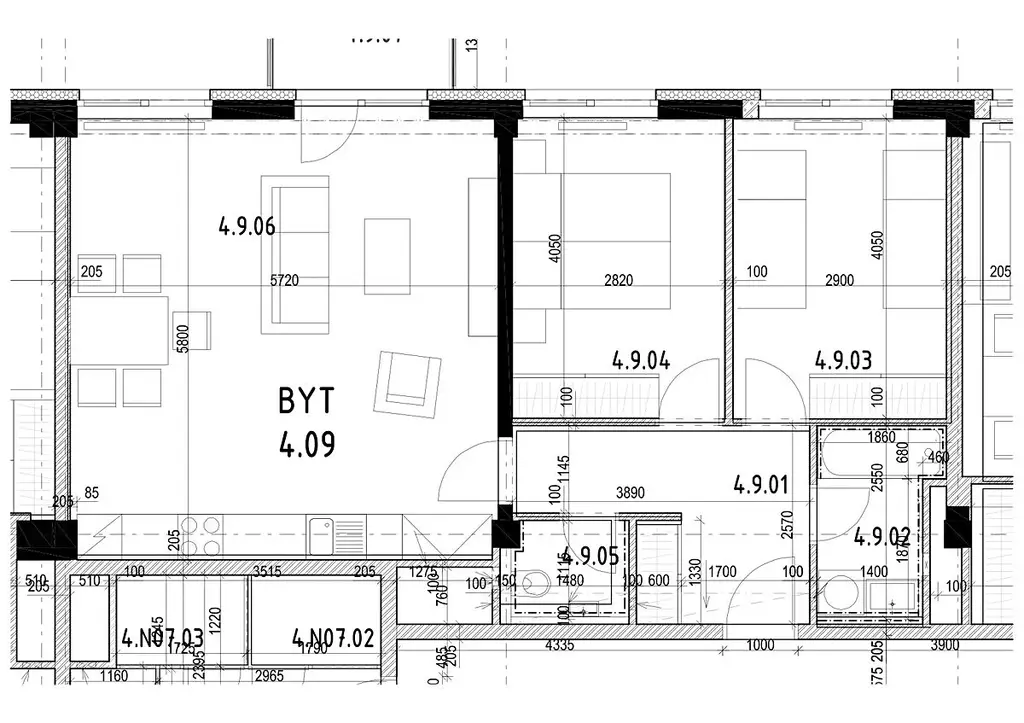
Ve výhradním zastoupení vlastníka nabízíme k pronájmu, v případě zájmu je možný i odkupu, byt o velikosti 3+kk o ploše 75 m2 na adrese Hasičská 46 b situovaný v Bytovém komplexu REZIDENCE PARK HRABŮVKA v samotném srdci městské části Ostrava-Hrabůvka.
Byt se nachází v 4.NP s krásným výhledem do vnitrobloku, kde je odpočinková zóna obklopená množstvím zeleně, privátní park slouží rezidentům objektu primárně k rekreaci. Dům je bezbariérový.
Jednotku tvoří dvě samostatné místnosti, obývací pokoj s plně vybavenou kuchyňskou linkou, chodba, WC a koupelna se sanitární keramikou včetně baterií. V každé místnosti jsou přisazená stropní světla. K bytu přináleží skladová kóje na patře domu (3,06m2), balkón o rozloze 3,4 m2 a jedno parkovací stání.
Dům je výborně dopravně dostupný, přitom v klidné a bezpečné lokalitě. K dispozici jsou základní služby včetně obchodů, restaurace a sportovního vyžití. Milovníci přírody jsou za 30 minut na parkovišti pod Lysou horou. Jen 10 minut pěšky trvá cesta do Bělského lesa, které je ideálním místem na procházky, běh i cyklistiku. Nedaleko se také můžete napojit na cyklostezku vedoucí k řece Ostravice.
Objekt je napojen na CZT a je v energetické třídě B.

Parametry bytu

Cena
22 500 Kč /za měsíc
Náklady na bydlení
4500
Aktualizováno
24. 4. 2026
Adresa
Hasičská, Ostrava, Hrabůvka
Stavba
Smíšená
Stav objektu
Po rekonstrukci
Patro
4.
Vybaveno
Částečně
Lokalita objektu
Klidná část obce
Vlastnictví
Osobní
Užitná plocha
75 m2
Třída energetické náročnosti
B - Velmi úsporná
Odpad
Veřejná kanalizace
Komunikace
Asfaltová
Telekomunikace
Internet
Doprava
MHD
Voda
Vodovod
Topné těleso
Radiátory
Zdroj topení
Centrální dálkové
Zdroj teplé vody
Centrální dálkový ohřev
Balkon
Sklep
Výtah
Bezbarierový přístup
Parkování

Kontaktovat makléře

Máte zájem o tento byt?

Tímto, v souladu s nařízením Evropského parlamentu a Rady (EU) 2016/679, v platném znění, prohlašuji, že mi je alespoň 16 let a uděluji tak svůj souhlas se zpracováním zadaných údajů (jméno, telefon, e-mail, ip adresa) společnosti B3 Technology, s.r.o., IČ: 07330600, se sídlem Novostavby 126/23, 435 11 Lom (správce dat), za účelem předání dotazu z tohoto formuláře Vámi vybranému inzerentovi a zpětného kontaktování mé osoby. Osobní údaje bude správce zpracovávat manuálně i automaticky přímo prostřednictvím svých zaměstnanců. Informace předané tímto formulářem budou uloženy v databázi správce maximálně po dobu 10 let. Odvolání souhlasu s uložením a zpracováním poskytnutých dat lze e-mailem na info@videobydleni.cz. V případě podezření na neoprávněné použití Vámi poskytnutých údajů máte právo předat podnět k šetření Úřadu pro ochranu osobních údajů. Více informací
Chystáte se prodat nemovitost?
Pomůžeme Vám!

Inzerát si prohlédlo 0 lidí

Prodejce

Michaela Kaděrová

Michaela Kaděrová

Hlídací pes

Chcete dostávat emailem podobné nabídky pronájmu bytů 3+kk v Ostravě?

Podobné nemovitosti


Nevyhovuje Vám typ bytu? Podívejte se na jiné kategorie bytů.


Vybrané články z našeho blogu