Soccer reality

Pronájem bytu 1+kk, Praha, 34 m2 (ID: 4250562)

Praha 9

20 000 Kč /za měsíc Získejte výhodnou HYPOTÉKU

(poplatky 3.073Kč, kauce 20.000Kč)

Prémioví partneři v Praze 9

Stěhovací služby

Výkup a prodej starého nábytku

Informace k bytu

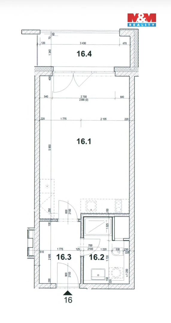
Pronájem bytu 1+kk, 34 m², Praha, ul. Bukačova

Nabízíme k pronájmu moderní byt o dispozici 1+kk s lodžií, v novostavbě v atraktivním projektu Harfa Living.
Byt o celkové ploše 34,9 m² zaujme především praktickým dispozičním řešením a důrazem na kvalitu provedení. Obytný prostor je vybaven rohovou kuchyňskou linkou se spotřebiči a nabízí dostatek místa pro komfortní bydlení.
V předsíni se nachází vestavěná šatní skříň zajišťující dostatek úložného prostoru.
Velkou předností bytu je prostorná lodžie(5,4m²) orientovaná do klidného vnitrobloku, která poskytuje skvělou možnost relaxace.
K bytu náleží sklepní kóje(5m²).
Lokalita Vysočan patří mezi dynamicky se rozvíjející části Prahy a nabízí kompletní občanskou vybavenost i výbornou dopravní dostupnost. V bezprostřední blízkosti se nachází zastávky MHD, vlakové nádraží i stanice metra. V okolí najdete také parky, cyklostezky a obchodní centra.
Luxusní byt v presižní ulici na vás čeká, rezervujte si prohlídku!

Parametry bytu

Cena
20 000 Kč /za měsíc
Poznámka k ceně
poplatky 3.073Kč, kauce 20.000Kč
Aktualizováno
25. 4. 2026
Adresa
Praha 9
ID
938608
Stavba
Panelová
Stav objektu
Velmi dobrý
Vybaveno
Částečně
Lokalita objektu
Klidná část obce
Vlastnictví
Osobní
Užitná plocha
34 m2
Lodžie

Kontaktovat makléře

Realitní kancelář

Logo M&M reality

M&M reality

ulice Krakovská 583/9, Praha

Chystáte se prodat nemovitost?
Pomůžeme Vám!

Máte zájem o tento byt?

Tímto, v souladu s nařízením Evropského parlamentu a Rady (EU) 2016/679, v platném znění, prohlašuji, že mi je alespoň 16 let a uděluji tak svůj souhlas se zpracováním zadaných údajů (jméno, telefon, e-mail, ip adresa) společnosti B3 Technology, s.r.o., IČ: 07330600, se sídlem Novostavby 126/23, 435 11 Lom (správce dat), za účelem předání dotazu z tohoto formuláře Vámi vybranému inzerentovi a zpětného kontaktování mé osoby. Osobní údaje bude správce zpracovávat manuálně i automaticky přímo prostřednictvím svých zaměstnanců. Informace předané tímto formulářem budou uloženy v databázi správce maximálně po dobu 10 let. Odvolání souhlasu s uložením a zpracováním poskytnutých dat lze e-mailem na info@videobydleni.cz. V případě podezření na neoprávněné použití Vámi poskytnutých údajů máte právo předat podnět k šetření Úřadu pro ochranu osobních údajů. Více informací
Chystáte se prodat nemovitost?
Pomůžeme Vám!

Inzerát si prohlédlo 0 lidí

Prodejce

Petr Doležal

Petr Doležal

Hlídací pes

Chcete dostávat emailem podobné nabídky pronájmu bytů 1+kk v Praze 9?

Podobné nemovitosti


Nevyhovuje Vám typ bytu? Podívejte se na jiné kategorie bytů.


Vybrané články z našeho blogu