Pronájem obchodního prostoru, Karviná, Hrnčířská, 149 m2

Hrnčířská, Karviná, Fryštát

40 000 Kč /za měsíc Získejte výhodnou HYPOTÉKU

(+ elektrická energie + plyn + vodné, stočné)

Prémioví partneři v Karviné

Informace k nemovitosti

Nabízím vám k pronájmu komerční prostor situovaný v centru města Karviná, s výbornou dostupností a viditelností. Prostor disponuje výlohami (vitrínami) orientovanými do ulice, které jsou ideální pro prezentaci služeb či zboží a podporují přirozený kontakt se zákazníky.

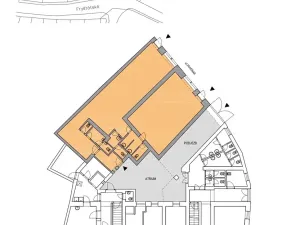
Celková užitná plocha prostoru činí 149 m². Prostor je možné rozdělit na dvě samostatné jednotky o výměrách 82 m² a 67 m². Každá část může fungovat nezávisle a disponuje vlastním sociálním zázemím, což výrazně rozšiřuje možnosti využití i pro více nájemců.
Prostor je vhodný pro široké spektrum využití – například jako kanceláře, obchod, služby, showroom nebo studio s jakýmkoliv zaměřením.

Prostory jsou napojeny na obecní vodovod a kanalizaci, vytápění je řešeno plynovým kotlem. Dispozice nabízí dostatek variabilních ploch i praktického zázemí, které lze přizpůsobit konkrétním potřebám podnikání.
K prostoru náleží také dvůr (atrium) a možnost vjezdu přes vrata, což je velkou výhodou například pro zásobování, parkování nebo kombinaci provozu se skladem.

Velkou předností je samotná poloha v centru města, která zajišťuje dobrou dostupnost pro klienty i zaměstnance a zároveň přirozený pohyb lidí v okolí.

Uvedené výměry jsou orientační. Majitel si vyhrazuje právo vybrat nájemce na základě jím zvolených kritérií. Veškeré zveřejněné údaje obsažené v tomto inzerátu mají pouze informativní charakter a nejsou nabídkou ve smyslu § 1731 nebo § 1732 občanského zákoníku, ani se nejedná o veřejný příslib dle § 1733 občanského zákoníku.

Parametry nemovitosti

Cena
40 000 Kč /za měsíc
Poznámka k ceně
+ elektrická energie + plyn + vodné, stočné
Aktualizováno
25. 4. 2026
Adresa
Hrnčířská, Karviná, Fryštát
ID
42
Stavba
Cihlová
Stav objektu
Velmi dobrý
Užitná plocha
149 m2
Třída energetické náročnosti
G - Mimořádně nehospodárná
Odpad
Veřejná kanalizace
Komunikace
Asfaltová
Telekomunikace
Internet
Doprava
Silnice, MHD, Autobus
Voda
Vodovod

Kontaktovat makléře

Máte zájem o tuto nemovistost?

Tímto, v souladu s nařízením Evropského parlamentu a Rady (EU) 2016/679, v platném znění, prohlašuji, že mi je alespoň 16 let a uděluji tak svůj souhlas se zpracováním zadaných údajů (jméno, telefon, e-mail, ip adresa) společnosti B3 Technology, s.r.o., IČ: 07330600, se sídlem Novostavby 126/23, 435 11 Lom (správce dat), za účelem předání dotazu z tohoto formuláře Vámi vybranému inzerentovi a zpětného kontaktování mé osoby. Osobní údaje bude správce zpracovávat manuálně i automaticky přímo prostřednictvím svých zaměstnanců. Informace předané tímto formulářem budou uloženy v databázi správce maximálně po dobu 10 let. Odvolání souhlasu s uložením a zpracováním poskytnutých dat lze e-mailem na info@videobydleni.cz. V případě podezření na neoprávněné použití Vámi poskytnutých údajů máte právo předat podnět k šetření Úřadu pro ochranu osobních údajů. Více informací
Chystáte se prodat nemovitost?
Pomůžeme Vám!

Inzerát si prohlédlo 0 lidí

Prodejce

Petra Hejna

Petra Hejna

Hlídací pes

Chcete dostávat emailem podobné nabídky pronájmu obchodních prostor v Karviné?

Podobné nemovitosti


Nevyhovuje Vám typ nemovitosti? Podívejte se na jiné kategorie komerčních.


Vybrané články z našeho blogu