Prodej rodinného domu, České Budějovice, 114 m2 (ID: 4251117)

České Budějovice

8 250 000 Kč /za nemovitost HYPOTÉKA od 36 873 Kč /za měsíc
Prémioví partneři v Českých Budějovicích

Výkup a prodej starého nábytku

Informace k domu

Exkluzivní nabídka prodeje novostavby řadových rodinných domů v malebné obci Radošovice.
Výstavba projektu se blíží do finální fáze, v současné době se dokončují interiéry jednotlivých domů, což umožňuje novým majitelům doladit si finální podobu dle vlastních představ.
V budově je pouze pět domů, takže jde o jedinečnou příležitost pro klidné a moderní bydlení.
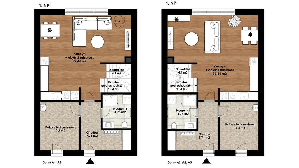
Domy mají dispozici 5+kk, zastavěnou plochu 71 m2, užitnou plochu 114,5 m2 a pozemek až 311 m2.
Domy jsou označené jako A1 – A5
Každý dům má zastavěnou plochu 71 m² a celkovou užitnou plochu 114,5 m²
Dispozice domu je 5+kk. V přízemí se nachází chodba o velikosti 8,28 m2, technická místnost 8,75 m2 se samostatným vchodem z ulice, obytná místnost s kuchyní 34,09 m2, koupelna 4,79 m2, prostor pod schodištěm 1,52 m2 a schodiště 2,8 m2.
V patře pak najdete chodbu 4,34 m2, ložnici 13,18 m2, ložnici 12,15 m2, ložnici 10,45 m2, ložnici (pokoj) 9,46 m2, koupelnu 4,74 m2 a schodiště 3,8 m2.
Celková velikost pozemku činí 202 až 311 m2 včetně zastavěné plochy, přičemž na pozemku jsou k dispozici dvě parkovací místa.

Velký důraz je kladen na energetickou úspornost domu, což se odráží v jeho energetickém štítku PENB – B, který zaručuje velmi nízké náklady na provoz.
Termín zahájení výstavby 04/2025
Termín dokončení výstavby 06/2026
Zákazník má možnost do konce výstavby zvolit konečnou podobu svého domu, včetně výběru podlahových krytin, vnitřních dveří, obkladů, dlažeb a sanity koupelny. Standardy budou zájemcům předloženy.
Do konce ledna 2026 je možná i změna vnitřních příček a dispozice.
Radošovice jsou malebnou jihočeskou obcí s rozlehlou návsí, kde se nachází kostelík a statky s malovanými štíty ve stylu selského baroka.
Obec je vzdálená pouhých 19 km od centra Českých Budějovic a je výborně dopravně dostupná hned třemi příjezdovými komunikacemi. Z obce je také výborná dostupnost linkovým autobusem s častými spoji.
Domy se nachází na okraji obce, pouze 150 m od návsi, kde se nachází zastávka autobusu, obchod, restaurace a mateřská škola. Tato lokalita nabízí ideální kombinaci klidného bydlení a dostupnosti veškeré občanské vybavenosti.

Parametry domu

Cena
8 250 000 Kč /za nemovitost Spočítat hypotéku
Aktualizováno
27. 4. 2026
Adresa
České Budějovice
Stavba
Cihlová
Stav objektu
Ve výstavbě
Druh objektu
Řadový
Lokalita objektu
Okraj obce
Užitná plocha
114 m2
Zastavěná plocha
71 m2
Plocha pozemku
311 m2
Třída energetické náročnosti
B - Velmi úsporná
Elektřina
230V
Odpad
Veřejná kanalizace
Komunikace
Asfaltová
Doprava
Silnice, Autobus
Voda
Vodovod
Topné těleso
Podlahové vytápění
Zdroj topení
Tepelné čerpadlo
Zdroj teplé vody
Tepelné čerpadlo
Parkování

Kontaktovat makléře

Realitní kancelář

Logo REALITNÍ KANCELÁŘ ŽÁČEK

REALITNÍ KANCELÁŘ ŽÁČEK

Hradební 476/9a, České Budějovice 1

Chystáte se prodat nemovitost?
Pomůžeme Vám!

Máte zájem o tento dům?

Tímto, v souladu s nařízením Evropského parlamentu a Rady (EU) 2016/679, v platném znění, prohlašuji, že mi je alespoň 16 let a uděluji tak svůj souhlas se zpracováním zadaných údajů (jméno, telefon, e-mail, ip adresa) společnosti B3 Technology, s.r.o., IČ: 07330600, se sídlem Novostavby 126/23, 435 11 Lom (správce dat), za účelem předání dotazu z tohoto formuláře Vámi vybranému inzerentovi a zpětného kontaktování mé osoby. Osobní údaje bude správce zpracovávat manuálně i automaticky přímo prostřednictvím svých zaměstnanců. Informace předané tímto formulářem budou uloženy v databázi správce maximálně po dobu 10 let. Odvolání souhlasu s uložením a zpracováním poskytnutých dat lze e-mailem na info@videobydleni.cz. V případě podezření na neoprávněné použití Vámi poskytnutých údajů máte právo předat podnět k šetření Úřadu pro ochranu osobních údajů. Více informací
Chystáte se prodat nemovitost?
Pomůžeme Vám!

Inzerát si prohlédlo 0 lidí

Prodejce

Dalibor Žáček

Dalibor Žáček

Hlídací pes

Chcete dostávat emailem podobné nabídky prodeje rodinných domů v Českých Budějovicích?

Podobné nemovitosti


Nevyhovuje Vám typ domu? Podívejte se na jiné kategorie domů.


Vybrané články z našeho blogu