Pronájem skladu, Brno, Bohunická, 276 m2 (ID: 4251179)

Bohunická, Brno, Horní Heršpice

40 000 Kč /za měsíc Získejte výhodnou HYPOTÉKU

(+ zálohy na energie a služby areálu 11.150,-Kč/měs +DPH)

Prémioví partneři v Brně

Informace k nemovitosti

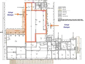
Nabízíme k pronájmu skladovací prostory o celkové ploše 276,20 m2 umístěné v 1.NP a přístupné ze dvou stran, vždy z menší nakládací rampy. Sklad je umístěn v uzavřeném hlídaném areálu na ulici Bohunická s přístupem 24hod. denně.

Budova je zateplena, v roce 2017 proběhla rekonstrukce. Sklad je přístupný v zadní části přes menší nákladovou rampu a automatická vrata. Vstup má velikost 1,40 m(š) a 2,00m (v). V přední částí je vstup přes dvoukřídlé plastové dveře a šířce 1,35 m. Před těmito dveřmi je malá rampa o výšce 50 cm. Sklad má celkem 5 malých větracích oken – v zadní části skladu jsou 2 a v přední části skladu jsou 3 malá okna. Výška stropu je 2,95 m. Podlaha – dlažba. Nosnost podlahy do 500 kg/m2.

Ve skladu není přípojka vody a odpadu. Vedle vstupu z přední části skladu je vybudována kancelář. Sociální zázemí je ve stejné budově ve vedlejším vchodu.

Vytápění skladu je roburem a přímotopy.
Elektřina a plyn jsou měřené.

V areálu je možné vyhrazené parkování za poplatek. Dostupnost MHD je velmi dobrá, zastávky cca 5 min od areálu.

Průkaz energetické náročnosti budovy nebyl dodán, uvádíme tedy G.

Sklad je volný k pronájmu. Cena je k jednání.

Pro více informací a sjednání prohlídky je Vám k dispozici makléřka.

Cena:

- Nájemné – 40.000,-Kč/ měs.
- Služby spojené s provozem areálu – 7.050,-Kč/měs.
- Záloha elektřina – 2.200,-Kč/měs
- Plyn záloha – 1.500,-Kč/ měs
- Voda paušálem – 400,-Kč/měs
- Parkovací místo – 650,-Kč/měs
- Uvedené ceny jsou bez DPH
- Jistota – 2 x měsíční nájemné
- Provize za služby realitního zprostředkovatele

Parametry nemovitosti

Cena
40 000 Kč /za měsíc
Poznámka k ceně
+ zálohy na energie a služby areálu 11.150,-Kč/měs +DPH
Aktualizováno
27. 4. 2026
Adresa
Bohunická, Brno, Horní Heršpice
ID
SR524
Stavba
Cihlová
Stav objektu
Dobrý
Patro
1.
Vybaveno
Ne
Lokalita objektu
Rušná část obce
Užitná plocha
276 m2
Třída energetické náročnosti
G - Mimořádně nehospodárná
Elektřina
230V
Telekomunikace
Internet
Doprava
MHD
Zdroj topení
Jiné
Bezbarierový přístup
Parkování

Kontaktovat makléře

Realitní kancelář

Ludmila Lejsková

Lidická 700/19, Brno, Veveří

Chystáte se prodat nemovitost?
Pomůžeme Vám!

Máte zájem o tuto nemovistost?

Tímto, v souladu s nařízením Evropského parlamentu a Rady (EU) 2016/679, v platném znění, prohlašuji, že mi je alespoň 16 let a uděluji tak svůj souhlas se zpracováním zadaných údajů (jméno, telefon, e-mail, ip adresa) společnosti B3 Technology, s.r.o., IČ: 07330600, se sídlem Novostavby 126/23, 435 11 Lom (správce dat), za účelem předání dotazu z tohoto formuláře Vámi vybranému inzerentovi a zpětného kontaktování mé osoby. Osobní údaje bude správce zpracovávat manuálně i automaticky přímo prostřednictvím svých zaměstnanců. Informace předané tímto formulářem budou uloženy v databázi správce maximálně po dobu 10 let. Odvolání souhlasu s uložením a zpracováním poskytnutých dat lze e-mailem na info@videobydleni.cz. V případě podezření na neoprávněné použití Vámi poskytnutých údajů máte právo předat podnět k šetření Úřadu pro ochranu osobních údajů. Více informací
Chystáte se prodat nemovitost?
Pomůžeme Vám!

Inzerát si prohlédlo 0 lidí

Prodejce

Ludmila Lejsková

Ludmila Lejsková

Hlídací pes

Chcete dostávat emailem podobné nabídky pronájmu skladů v Brně?

Podobné nemovitosti


Nevyhovuje Vám typ nemovitosti? Podívejte se na jiné kategorie komerčních.


Vybrané články z našeho blogu