Prodej rodinného domu, Křižínkov, 254 m2

Křižínkov

3 750 000 Kč /za nemovitost HYPOTÉKA od 16 760 Kč /za měsíc
Prémioví partneři v Křižínkově

Informace k domu

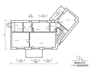
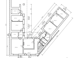
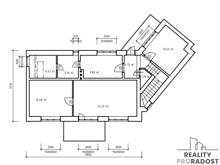
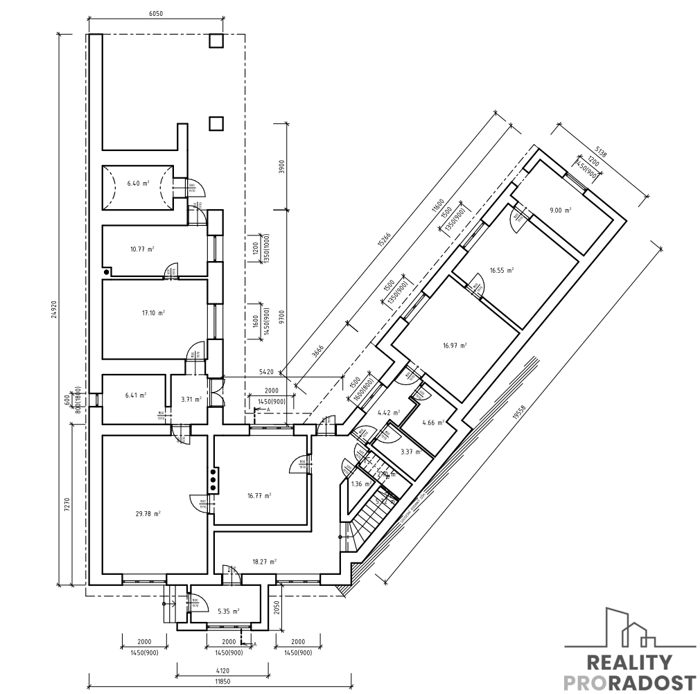
Velký dům na návsi v Křižínkově, který nabízí výjimečný prostor a široké možnosti využití. Nemovitost má více než 15 místností na dvou podlažích, stodolu, uzavřený dvůr a zahradu, což z ní dělá ideální řešení pro vícegenerační bydlení, kombinaci bydlení a podnikání nebo například ateliér či uměleckou dílnu. Tomu přispěje i zadní příjezd.

Dům je aktuálně ve stavu započaté rekonstrukce. Odkrytí konstrukcí však ukázalo, že stavba je suchá, cihlová a ve velmi dobrém technickém stavu. Nový majitel tak získává solidní základ a zároveň volnost přizpůsobit si dispozici i standard podle vlastních představ.

K dispozici jsou všechny důležité sítě – obecní kanalizace, plynová přípojka, dostatečně kapacitní elektrická přípojka a vlastní studna.

Velkou výhodou je poloha přímo na návsi. Na dohled je obchod, obecní úřad, hospoda i dětské a sportovní hřiště. Lokalita zároveň nabízí výbornou dostupnost – Velká Bíteš cca 7 minut, nájezd na D1 do 10 minut, Brno přibližně 30 minut.

Nemovitost je vhodná pro ty, kteří hledají prostor, flexibilitu a možnost realizovat vlastní představu o bydlení či podnikání.
Starost o financování nechejte na nás, a pokud budete potřebovat pomoc s rekonstrukcí, i to umíme zařídit.

Více informací najdete na: https://tomikoceski.cz/rd-krizinkov/
Těším se na Vás na osobní prohlídce!

Parametry domu

Cena
3 750 000 Kč /za nemovitost Spočítat hypotéku
Aktualizováno
27. 4. 2026
Adresa
Křižínkov
ID
29636
Stavba
Cihlová
Stav objektu
Před rekonstrukcí
Typ objektu
Patrový
Druh objektu
Řadový
Užitná plocha
254 m2
Podlahová plocha
294 m2
Plocha pozemku
893 m2
Třída energetické náročnosti
G - Mimořádně nehospodárná
Elektřina
400V
Plyn
Plynovod
Komunikace
Asfaltová, Štěrková
Doprava
Dálnice, Silnice
Voda
Studna
Převod do OV

Kontaktovat makléře

Máte zájem o tento dům?

Tímto, v souladu s nařízením Evropského parlamentu a Rady (EU) 2016/679, v platném znění, prohlašuji, že mi je alespoň 16 let a uděluji tak svůj souhlas se zpracováním zadaných údajů (jméno, telefon, e-mail, ip adresa) společnosti B3 Technology, s.r.o., IČ: 07330600, se sídlem Novostavby 126/23, 435 11 Lom (správce dat), za účelem předání dotazu z tohoto formuláře Vámi vybranému inzerentovi a zpětného kontaktování mé osoby. Osobní údaje bude správce zpracovávat manuálně i automaticky přímo prostřednictvím svých zaměstnanců. Informace předané tímto formulářem budou uloženy v databázi správce maximálně po dobu 10 let. Odvolání souhlasu s uložením a zpracováním poskytnutých dat lze e-mailem na info@videobydleni.cz. V případě podezření na neoprávněné použití Vámi poskytnutých údajů máte právo předat podnět k šetření Úřadu pro ochranu osobních údajů. Více informací
Chystáte se prodat nemovitost?
Pomůžeme Vám!

Inzerát si prohlédlo 1 lidí

Prodejce

Tomáš Vaněk

Tomáš Vaněk

Hlídací pes

Chcete dostávat emailem podobné nabídky prodeje rodinných domů v Křižínkově?

Podobné nemovitosti


Nevyhovuje Vám typ domu? Podívejte se na jiné kategorie domů.


Vybrané články z našeho blogu