Prodej rodinného domu, Nymburk, Eliščina třída, 123 m2 (ID: 4252126)

Eliščina třída, Nymburk

7 200 000 Kč /za nemovitost HYPOTÉKA od 32 180 Kč /za měsíc
Prémioví partneři v Nymburku

Informace k domu

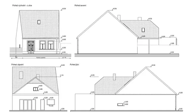
Ve výhradním zastoupení majitelky nabízíme částečně podsklepený (historický klenutý strop) rodinný dům s dispozicí 3+1 s další možností půdní vestavby, Eliščina třída, Nymburk. Dům se nachází v blízkosti centra města nedaleko od náměstí Přemyslovců. Dispozičně je členěn na vstupní chodbu s přímými vstupy do všech obytných místností, koupelny a toalety. Dům je napojen na plynovod, obecní vodovod a kanalizaci, elektro 230/380V. Rozvod ústředního topení bez zdroje tepla. V zadní části pozemku je umístěna vedlejší stavba (dřevěný domek s napojením na inženýrské sítě), která je majitelkou celoročně užívána.
Město Nymburk každoročně nabízí benefit v případě rekonstrukce starších domů. Vypisuje grant na podporu oprav budov v soukromém vlastnictví až do výše 2 mil. korun (výše dle vkladu majitele, 500.000 majitel + město přispěje stejnou částkou, až do výše 2 mil.)
Výhodou je, že tento grant není problém kombinovat např. s dotacemi krajskými, či státními, které lze na tento dům také čerpat (oprav dům po babičce, zelená úsporám apod.), což výrazně sníží náklady na případnou rekonstrukci domu.
V okolí veškerá občanská vybavenost. Břehy blízkého Labe nabízí krásné cyklostezky, ale i možnost příjemných procházek.
Nabízenou nemovitost lze po úpravách i komerčně pronajímat. Koupě domu je možné financovat hypotékou, kterou vám bezplatně zajistíme. Možnost prohlídky nebo další informace vám rádi poskytneme.

Parametry domu

Cena
7 200 000 Kč /za nemovitost Spočítat hypotéku
Aktualizováno
27. 4. 2026
Adresa
Eliščina třída, Nymburk
ID
002677
Stavba
Cihlová
Stav objektu
Dobrý
Druh objektu
Samostatný
Lokalita objektu
Centrum obce
Užitná plocha
123 m2
Podlahová plocha
145 m2
Plocha pozemku
435 m2
Třída energetické náročnosti
G - Mimořádně nehospodárná
Elektřina
230V
Plyn
Plynovod
Odpad
Veřejná kanalizace
Telekomunikace
Internet
Doprava
MHD
Voda
Vodovod
Sklep

Kontaktovat makléře

Máte zájem o tento dům?

Tímto, v souladu s nařízením Evropského parlamentu a Rady (EU) 2016/679, v platném znění, prohlašuji, že mi je alespoň 16 let a uděluji tak svůj souhlas se zpracováním zadaných údajů (jméno, telefon, e-mail, ip adresa) společnosti B3 Technology, s.r.o., IČ: 07330600, se sídlem Novostavby 126/23, 435 11 Lom (správce dat), za účelem předání dotazu z tohoto formuláře Vámi vybranému inzerentovi a zpětného kontaktování mé osoby. Osobní údaje bude správce zpracovávat manuálně i automaticky přímo prostřednictvím svých zaměstnanců. Informace předané tímto formulářem budou uloženy v databázi správce maximálně po dobu 10 let. Odvolání souhlasu s uložením a zpracováním poskytnutých dat lze e-mailem na info@videobydleni.cz. V případě podezření na neoprávněné použití Vámi poskytnutých údajů máte právo předat podnět k šetření Úřadu pro ochranu osobních údajů. Více informací
Chystáte se prodat nemovitost?
Pomůžeme Vám!

Inzerát si prohlédlo 1 lidí

Prodejce

Martin Kovář

Martin Kovář

Hlídací pes

Chcete dostávat emailem podobné nabídky prodeje rodinných domů v Nymburku?

Podobné nemovitosti


Nevyhovuje Vám typ domu? Podívejte se na jiné kategorie domů.


Vybrané články z našeho blogu