Pronájem bytu 3+kk, Sušice - Sušice II, Nádražní, 69 m2

Nádražní, Sušice II

10 000 Kč /za měsíc Získejte výhodnou HYPOTÉKU

(+ zálohy na energie (elektřina (odečtová), vodné, stočné, teplo cca 5.000,-Kč/2os.), internet jako pevná složka. Vratná kauce 20.000,-Kč. Provize za služby 9.000,-Kč.)

Prémioví partneři v Sušici

Stěhovací služby

Informace k bytu

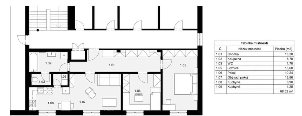
Nabízíme k pronájmu zděný, modernizovaný byt 3+kk (rekonstrukce v roce 2019) v klidném zděném domě na okraji města Sušice. Byt o celkové ploše 68,5 m² se nachází ve 3. NP a jeho největší předností je výborné dispoziční řešení se všemi pokoji neprůchozími, což zajišťuje maximální soukromí pro všechny členy domácnosti.
Vnitřní dispozice: prostorná obývací kuchyně ( 20.76 m²) s moderní linkou a elektrickým sporákem propojená s obývacím prostorem, spíž 1,25m2. Dvě samostatné ložnice (15,6 m² a 10,2 m²). Koupelna 5,79m2 s vanou, umyvadlem, topným žebříkem, připojením k pračce a samostatné WC. K bytu dále náleží komora/sklep v přízemí domu.
Byt se pronajímá nezařízený, připravený k vybavení podle vašeho vkusu.
Vytápění je řešeno centrálně (ústředním topením kotlem na tuhá paliva). El. energie s odečtovými měřiči. Parkování je bezproblémové přímo u domu.
Měsíční platby spojené s užíváním bytu: 10.000,-Kč + zálohy na energie (elektřina (odečtová), vodné, stočné, teplo cca 5.000,-Kč/2os.), internet jako pevná složka. Vratná kauce 20.000,-Kč.
Dům má strategickou polohu – jen 150 m od řeky, ideální na procházky, koupání s nově vybudovaným kempem s občerstvením v letní sezoně a 200 m od nádraží i autobusových spojů. Veškerá občanská vybavenost je v centru Sušice.
PENB ve třídě G. Volné od 1.5.2026.

Parametry bytu

Cena
10 000 Kč /za měsíc
Poznámka k ceně
+ zálohy na energie (elektřina (odečtová), vodné, stočné, teplo cca 5.000,-Kč/2os.), internet jako pevná složka. Vratná kauce 20.000,-Kč. Provize za služby 9.000,-Kč.
Aktualizováno
28. 4. 2026
Adresa
Nádražní, Sušice II
ID
PR283
Stavba
Cihlová
Stav objektu
Velmi dobrý
Patro
3. z 3
Vybaveno
Částečně
Typ objektu
Patrový
Lokalita objektu
Okraj obce
Vlastnictví
Osobní
Užitná plocha
69 m2
Podlahová plocha
69 m2
Třída energetické náročnosti
G - Mimořádně nehospodárná
Elektřina
230V, 400V
Odpad
Veřejná kanalizace
Topení
Ústřední tuhá paliva
Komunikace
Asfaltová
Telekomunikace
Internet, Kabelové rozvody
Doprava
Vlak, Silnice, MHD, Autobus
Voda
Vodovod
Topné těleso
Radiátory, Kotel na tuhá paliva
Zdroj topení
Centrální dálkové
Zdroj teplé vody
Bojler - elektro
Sklep
Výtah
Bezbarierový přístup
Převod do OV
Parkování

Kontaktovat makléře

Máte zájem o tento byt?

Tímto, v souladu s nařízením Evropského parlamentu a Rady (EU) 2016/679, v platném znění, prohlašuji, že mi je alespoň 16 let a uděluji tak svůj souhlas se zpracováním zadaných údajů (jméno, telefon, e-mail, ip adresa) společnosti B3 Technology, s.r.o., IČ: 07330600, se sídlem Novostavby 126/23, 435 11 Lom (správce dat), za účelem předání dotazu z tohoto formuláře Vámi vybranému inzerentovi a zpětného kontaktování mé osoby. Osobní údaje bude správce zpracovávat manuálně i automaticky přímo prostřednictvím svých zaměstnanců. Informace předané tímto formulářem budou uloženy v databázi správce maximálně po dobu 10 let. Odvolání souhlasu s uložením a zpracováním poskytnutých dat lze e-mailem na info@videobydleni.cz. V případě podezření na neoprávněné použití Vámi poskytnutých údajů máte právo předat podnět k šetření Úřadu pro ochranu osobních údajů. Více informací
Chystáte se prodat nemovitost?
Pomůžeme Vám!

Inzerát si prohlédlo 0 lidí

Prodejce

Marcela Staňková

Marcela Staňková

Hlídací pes

Chcete dostávat emailem podobné nabídky pronájmu bytů 3+kk v Sušici (okr. Klatovy)?

Podobné nemovitosti


Nevyhovuje Vám typ bytu? Podívejte se na jiné kategorie bytů.


Vybrané články z našeho blogu