Prodej rodinného domu, Jeřmanice, 181 m2 (ID: 4253231)

Jeřmanice

11 537 000 Kč /za nemovitost HYPOTÉKA od 51 563 Kč /za měsíc

(včetně DPH, včetně provize)

Prémioví partneři v Jeřmanicích

Rekonstrukce

Úklidové služby

Informace k domu

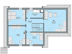
Prodám nízkoenergetický rodinný dům o dispozici 6+1+garáž s podlahovou plochou 181 m².

Dům bude za uvedenou cenu kompletně dokončen a vybaven (včetně krbového komínu) a připraven k okamžitému nastěhování. Vnější i vnitřní provedení domu provedeme dle Vašeho individuálního výběru.

Jeho předností je půdorysné řešení do tvaru L s integrovanou garáží. Charakterizuje ho netradiční studio nad garáží, které může sloužit i jako ateliér nebo jako samostatná bytová jednotka, zejména pokud se garáž rozšíří pro 2 automobily. Harmonie poskytuje nadstandardní prostor i velké vícečlenné rodině a nabízí velké množství dispozičních variant.

V celkové ceně nejsou zahrnuty domovní přípojky inženýrských sítí.

Uvedená cena je včetně pozemku, typové základové desky a DPH. Doba výstavby 4 - 5 měsíců od vydání stavebního povolení.

K patě pozemku jsou přivedeny tyto inženýrské sítě: rozvody NN, splašková kanalizace a vodovod.

Obec Jeřmanice se nachází jen cca 6 -10 minut od Liberce. Nabízí základní občanskou vybavenost a příjemné komunitní zázemí – k dispozici je obecní úřad, knihovna, kulturní zázemí i sportovní hřiště.

Velkou výhodou je výborná dopravní dostupnost (rychlostní komunikace i železnice) a blízkost Liberce, kde je kompletní občanská vybavenost – školy, zdravotnictví, obchody i služby. Okolí obce nabízí široké možnosti pro aktivní trávení volného času – turistika, cyklotrasy, běžky i lyžování v nedalekých horách.

Parametry domu

Cena
11 537 000 Kč /za nemovitost Spočítat hypotéku
Poznámka k ceně
včetně DPH, včetně provize
Aktualizováno
28. 4. 2026
Adresa
Jeřmanice
ID
01527
Stavba
Cihlová
Stav objektu
Projekt
Druh objektu
Samostatný
Užitná plocha
181 m2
Plocha pozemku
1999 m2
Třída energetické náročnosti
B - Velmi úsporná
Ukazatel energetické náročnosti
115 kWh/m2 za rok

Kontaktovat makléře

Realitní kancelář

CANABA a.s.

Štětkova 1001/5, Praha, Nusle

Chystáte se prodat nemovitost?
Pomůžeme Vám!

Máte zájem o tento dům?

Tímto, v souladu s nařízením Evropského parlamentu a Rady (EU) 2016/679, v platném znění, prohlašuji, že mi je alespoň 16 let a uděluji tak svůj souhlas se zpracováním zadaných údajů (jméno, telefon, e-mail, ip adresa) společnosti B3 Technology, s.r.o., IČ: 07330600, se sídlem Novostavby 126/23, 435 11 Lom (správce dat), za účelem předání dotazu z tohoto formuláře Vámi vybranému inzerentovi a zpětného kontaktování mé osoby. Osobní údaje bude správce zpracovávat manuálně i automaticky přímo prostřednictvím svých zaměstnanců. Informace předané tímto formulářem budou uloženy v databázi správce maximálně po dobu 10 let. Odvolání souhlasu s uložením a zpracováním poskytnutých dat lze e-mailem na info@videobydleni.cz. V případě podezření na neoprávněné použití Vámi poskytnutých údajů máte právo předat podnět k šetření Úřadu pro ochranu osobních údajů. Více informací
Chystáte se prodat nemovitost?
Pomůžeme Vám!

Inzerát si prohlédlo 0 lidí

Prodejce

Kryštof Wotawa

Kryštof Wotawa

Hlídací pes

Chcete dostávat emailem podobné nabídky prodeje rodinných domů v Jeřmanicích?

Podobné nemovitosti


Nevyhovuje Vám typ domu? Podívejte se na jiné kategorie domů.


Vybrané články z našeho blogu