Prodej rodinného domu, Uherský Brod, 134 m2

Uherský Brod

Cena na vyžádání /za nemovitost Získejte výhodnou HYPOTÉKU
Prémioví partneři v Uherském Brodu

Informace k domu

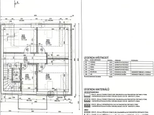
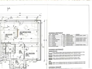
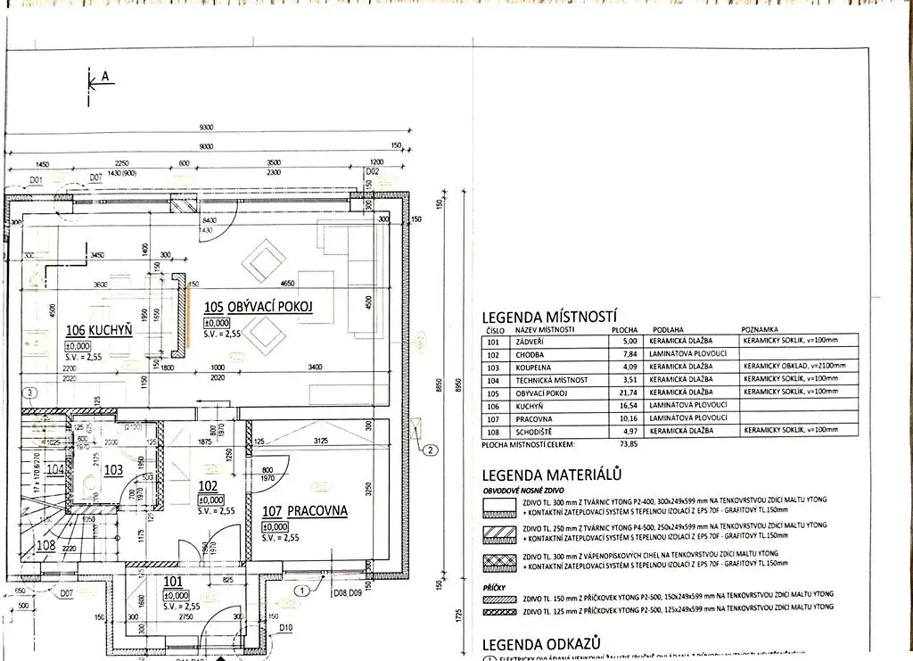
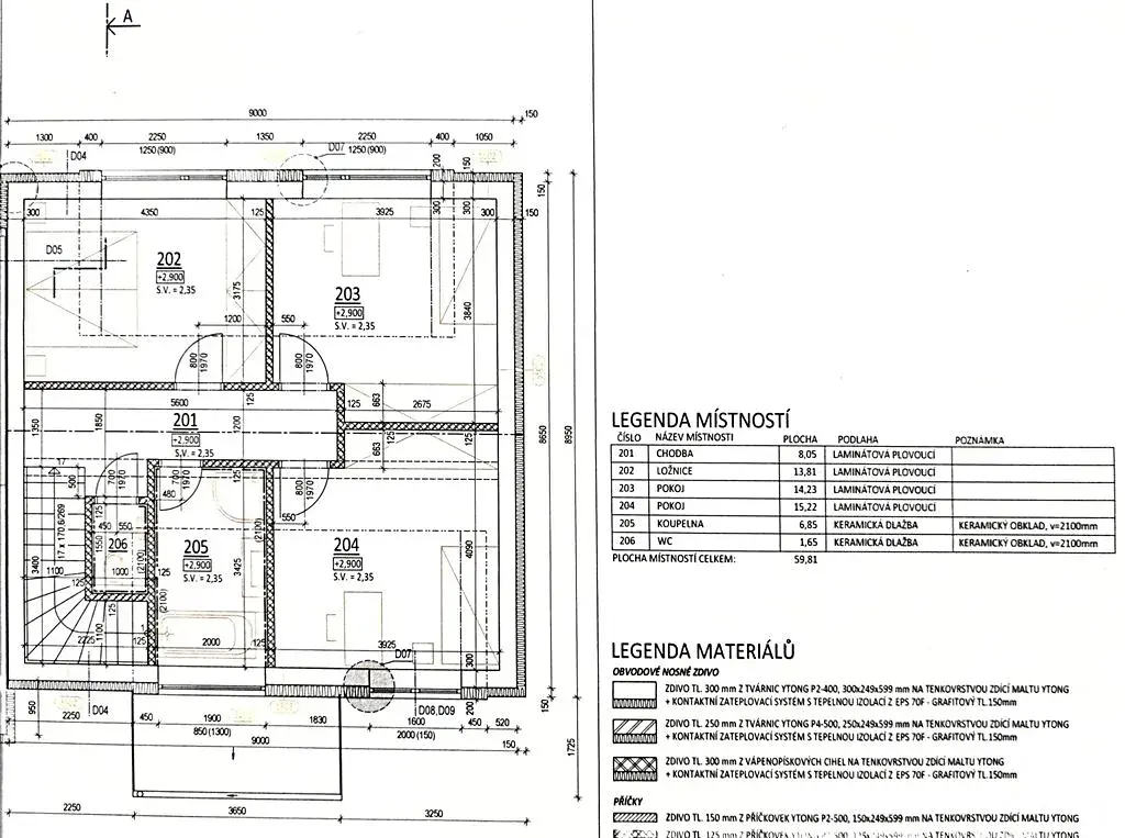
Prodej moderního domu o velikosti 5+kk, který se nachází v klidné části Uherského Brodu - Újezdec u Luhačovic. Jedná se o pohodové bydlení pro rodinu, která se může rovnou nastěhovat bez nutnosti dalších investic. Dispozičně se jedná o vstupní chodbu s vestavěnou skříní, pracovnu a prostorný obývací pokoj propojený s kuchyní se vstupem na terasu. Zde je nádherný nerušivý výhled přes prosklený portál na okolní krajinu. Dále koupelna se sprchovým koutem, toaletou a technickým zázemím. Na chodbě je vestavěná skříň s pračkou, sušičkou a úložnými prostory. V 2.NP se nabízí dva dětské pokoje, ložnice, koupelna s vanou, sprchovým koutem a samostatné WC. V každém pokoji jsou vestavěné skříně a tím se nabízí dostatek úložného prostoru. Dům je napojen na obecní kanalizaci, vodovod, elektřinu 220 V, ohřev vody je řešen solárnímy panely, podlahové teplovodní vytápění tepelným čerpadlem a neustálý přísun čerstvého vzduchu bez nutnosti větrání zajišťuje rekuperace. Dům je krásně prosvětlený a stínění je regulováno elektrickými venkovními žaluziemi. Na dům navazuje terasa z tropického tvrdého dřeva Massaranduba a hliníková pergola s osvětlením. Na pozemku se nachází zahradní domek a retenční nádrž. Před domem jsou tři parkovací místa a průjez brankou do zahrady. Před domem je dětské hřiště a vynikající sousedi. Jedná se o bydlení s nízkými měsíčními náklady s dobrou dostupností do přírody a zároveň v dobré dojezdnosti do Uherského Brodu.

Parametry domu

Cena
Cena na vyžádání Spočítat hypotéku
Aktualizováno
28. 4. 2026
Adresa
Uherský Brod
Stavba
Cihlová
Stav objektu
Novostavba
Užitná plocha
134 m2
Plocha pozemku
458 m2
Třída energetické náročnosti
B - Velmi úsporná
Elektřina
230V
Topné těleso
Podlahové vytápění
Zdroj topení
Tepelné čerpadlo
Parkování

Kontaktovat makléře

Máte zájem o tento dům?

Tímto, v souladu s nařízením Evropského parlamentu a Rady (EU) 2016/679, v platném znění, prohlašuji, že mi je alespoň 16 let a uděluji tak svůj souhlas se zpracováním zadaných údajů (jméno, telefon, e-mail, ip adresa) společnosti B3 Technology, s.r.o., IČ: 07330600, se sídlem Novostavby 126/23, 435 11 Lom (správce dat), za účelem předání dotazu z tohoto formuláře Vámi vybranému inzerentovi a zpětného kontaktování mé osoby. Osobní údaje bude správce zpracovávat manuálně i automaticky přímo prostřednictvím svých zaměstnanců. Informace předané tímto formulářem budou uloženy v databázi správce maximálně po dobu 10 let. Odvolání souhlasu s uložením a zpracováním poskytnutých dat lze e-mailem na info@videobydleni.cz. V případě podezření na neoprávněné použití Vámi poskytnutých údajů máte právo předat podnět k šetření Úřadu pro ochranu osobních údajů. Více informací
Chystáte se prodat nemovitost?
Pomůžeme Vám!

Inzerát si prohlédlo 0 lidí

Prodejce

Blanka Lišková

Blanka Lišková

Hlídací pes

Chcete dostávat emailem podobné nabídky prodeje rodinných domů v Uherském Brodu?

Podobné nemovitosti


Nevyhovuje Vám typ domu? Podívejte se na jiné kategorie domů.


Vybrané články z našeho blogu