Prodej bytu 1+kk, Brno, Elgartova, 30 m2 (ID: 4253550)

Elgartova, Brno, Husovice

4 399 000 Kč /za nemovitost HYPOTÉKA od 19 661 Kč /za měsíc

(Konečná cena včetně právního servisu. Prodej přímo od majitele. Neplatíte provizi ani dph., včetně poplatků, včetně provize, včetně právního servisu)

Prémioví partneři v Brně

Informace k bytu

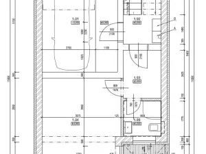
Nabízíme do prodeje moderní přízemní byt v novostavbě na ulici Elgartova.

Klidná ulice na samém okraji Husovic.
Velký, nově rekonstruovaný park jen 50 metrů od domu a rychlé spojení do centra.

Jednotka se nachází v přízemí novostavby cihlového domu o třech jednotkách, na každém patře jedna.
Disponuje 30m² podlahové plochy a vlastním 5m² dvorkem.

Dispozičně 1+KK, ideální pro jednotlivce nebo na investici.
Obývací část s přípravou na kuchyň (dodáváme standardně bez kuchyňské linky) a vstupem na terasu. Předsíňka s prostorem pro pračku a úložné prostory a koupelna se sprchovým koutem.
Dokončeny budou samozřejmě i vstupní a interierové dveře, zábradlí, podlahy atp.
Kolaudace cca 07/2026.

Vytápění a ohřev vody zajišťuje společný plynový kondenzační kotel Baxi a podlahové vytápění po celém bytě.
Díky izolačním trojsklům a energetické třídě B tak nabízí nízké provozní náklady.
Podružná měřidla má každá jednotka samostatná.

Je možnost přikoupit právo výhradního užívání garážového stání o výměře 14m² (vrata a vchodové dveře Lomax).

Jakékoliv dotazy Vám rád zodpovím po telefonu, nebo osobně na prohlídce.

Parametry bytu

Cena
4 399 000 Kč /za nemovitost Spočítat hypotéku
Poznámka k ceně
Konečná cena včetně právního servisu. Prodej přímo od majitele. Neplatíte provizi ani dph., včetně poplatků, včetně provize, včetně právního servisu
Aktualizováno
28. 4. 2026
Adresa
Elgartova, Brno, Husovice
ID
00418
Stavba
Cihlová
Stav objektu
Novostavba
Patro
1. z 3
Vybaveno
Ne
Lokalita objektu
Klidná část obce
Vlastnictví
Osobní
Užitná plocha
30 m2
Třída energetické náročnosti
B - Velmi úsporná
Ukazatel energetické náročnosti
92 kWh/m2 za rok
Elektřina
230V
Plyn
Plynovod
Odpad
Veřejná kanalizace
Komunikace
Asfaltová
Telekomunikace
Internet, Kabelová televize
Voda
Vodovod
Topné těleso
Podlahové vytápění
Zdroj topení
Plynový kondenzační kotel
Zdroj teplé vody
Plynový kondenzační kotel
Terasa
Výtah

Kontaktovat makléře

Máte zájem o tento byt?

Tímto, v souladu s nařízením Evropského parlamentu a Rady (EU) 2016/679, v platném znění, prohlašuji, že mi je alespoň 16 let a uděluji tak svůj souhlas se zpracováním zadaných údajů (jméno, telefon, e-mail, ip adresa) společnosti B3 Technology, s.r.o., IČ: 07330600, se sídlem Novostavby 126/23, 435 11 Lom (správce dat), za účelem předání dotazu z tohoto formuláře Vámi vybranému inzerentovi a zpětného kontaktování mé osoby. Osobní údaje bude správce zpracovávat manuálně i automaticky přímo prostřednictvím svých zaměstnanců. Informace předané tímto formulářem budou uloženy v databázi správce maximálně po dobu 10 let. Odvolání souhlasu s uložením a zpracováním poskytnutých dat lze e-mailem na info@videobydleni.cz. V případě podezření na neoprávněné použití Vámi poskytnutých údajů máte právo předat podnět k šetření Úřadu pro ochranu osobních údajů. Více informací
Chystáte se prodat nemovitost?
Pomůžeme Vám!

Inzerát si prohlédlo 0 lidí

Prodejce

Adam Stuchlík

Adam Stuchlík

Hlídací pes

Chcete dostávat emailem podobné nabídky prodeje bytů 1+kk v Brně?

Podobné nemovitosti


Nevyhovuje Vám typ bytu? Podívejte se na jiné kategorie bytů.


Vybrané články z našeho blogu