Pronájem bytu 2+kk, Praha - Vršovice, Finská, 42 m2

Finská, Praha, Vršovice

22 500 Kč /za měsíc Získejte výhodnou HYPOTÉKU

(Poplatek RK: 22 500,-Kč / vč. DPH Cena nájmu činí měsíčně: 22 500,- Kč + služby Vratná kauce ve výši nájmu : 22 500,-Kč + služby)

Prémioví partneři v Praze 10

Stěhovací služby

Výkup a prodej starého nábytku

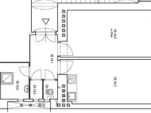
Informace k bytu

Byt je k dispozici od 1.6.2026 a prohlídky jsou možné po dohodě se současným nájemníkem. Neváhejte nás kontaktovat, těšíme se na setkání s Vámi!


Nabízíme byt 2+kk v 5.podlaží s výtahem o rozloze 42,13m², který se nachází v cihlovém domě na Praze 10 – Vršovice, ulice Finská. Výhodou je dostupnost MHD, kdy jste do 3min na zastávce bus Slovinská (135, 101). Nejbližší stanice metra - náměstí Míru (trasa A). Tato vyhledávaná lokalita se nachází na rozhraní Vinohrad a Vršovic v těsné blízkosti Heroldových a nedaleko Havličkových sadů (Grébovky).

Okna bytu jsou orientována do klidného vnitrobloku. Byt se pronajímá částečně zařízený a vybaven kuchyňskou linkou se spotřebiči (horkovzdušná el. trouba, varná deska, myčka, odsavač par, kombinovaná lednice s mrazákem). V bytě není nábytek a pračka (v koupelně je připravena přípojka) z důvodu, aby si mohl nový nájemník, vybavit byt , dle svého vkusu. Koupelna disponuje vanou, umyvadlem a otopným žebříkem. Toaleta je samostatně. K bytu nenáleží sklep. Součástí bytu je však úložný prostor/komora. Na podlahách byla použita plovoucí podlaha, dlažba. Bonusem bydlení je také zahradu u domu, kterou nájemník může využívat k relaxaci. V okolí veškerá občanská vybavenost – Tesco expres 1 min. v docházkové vzdálenosti, restaurace, kavárny, ZŠ, mateřská škola, nedaleko nákupní centrum Eden , nemocnice Královské Vinohrady.


Poplatek RK: 22 500,-Kč / vč.DPH

Cena nájmu činí měsíčně: 22 500,- Kč + služby

pro 1 osobu: 22 500,- Kč + 5 500,-Kč
pro 2 osoby: 22 500,- Kč + 6 400,-Kč


Měsíční poplatky rozpis (nepřevádí se na nájemce):
Elektřina: 1 800,- Kč / byt, 1 800,- Kč topení / byt, 900,- Kč voda / osoba
Paušál - nezúčtovatelné poplatky 1 000,- Kč/byt (Úhrady za plnění spojená s užíváním Bytu jako jsou úklid společných prostor; odvoz komunálního odpadu; osvětlení společných prostor; provoz a čištění komínů; provoz výtahu; údržbu zeleně; revize spotřebičů atd.)



Vratná kauce stanovena ve výši nájmu : 22 500,-Kč + služby

Parametry bytu

Cena
22 500 Kč /za měsíc
Poznámka k ceně
Poplatek RK: 22 500,-Kč / vč. DPH Cena nájmu činí měsíčně: 22 500,- Kč + služby Vratná kauce ve výši nájmu : 22 500,-Kč + služby
Náklady na bydlení
5500
Aktualizováno
29. 4. 2026
Adresa
Finská, Praha, Vršovice
Stavba
Cihlová
Stav objektu
Po rekonstrukci
Patro
5. z 6
Vybaveno
Částečně
Vlastnictví
Osobní
Užitná plocha
42 m2
Třída energetické náročnosti
E - Nehospodárná
Elektřina
230V
Výtah
Bezbarierový přístup

Kontaktovat makléře

Máte zájem o tento byt?

Tímto, v souladu s nařízením Evropského parlamentu a Rady (EU) 2016/679, v platném znění, prohlašuji, že mi je alespoň 16 let a uděluji tak svůj souhlas se zpracováním zadaných údajů (jméno, telefon, e-mail, ip adresa) společnosti B3 Technology, s.r.o., IČ: 07330600, se sídlem Novostavby 126/23, 435 11 Lom (správce dat), za účelem předání dotazu z tohoto formuláře Vámi vybranému inzerentovi a zpětného kontaktování mé osoby. Osobní údaje bude správce zpracovávat manuálně i automaticky přímo prostřednictvím svých zaměstnanců. Informace předané tímto formulářem budou uloženy v databázi správce maximálně po dobu 10 let. Odvolání souhlasu s uložením a zpracováním poskytnutých dat lze e-mailem na info@videobydleni.cz. V případě podezření na neoprávněné použití Vámi poskytnutých údajů máte právo předat podnět k šetření Úřadu pro ochranu osobních údajů. Více informací
Chystáte se prodat nemovitost?
Pomůžeme Vám!

Inzerát si prohlédlo 1 lidí

Prodejce

Jana Haeringová

Jana Haeringová

Hlídací pes

Chcete dostávat emailem podobné nabídky pronájmu bytů 2+kk v Praze 10?

Podobné nemovitosti


Nevyhovuje Vám typ bytu? Podívejte se na jiné kategorie bytů.


Vybrané články z našeho blogu