Prodej bytu 3+1, Hradec Králové, Skupova, 71 m2

Skupova, Hradec Králové

6 490 000 Kč /za nemovitost HYPOTÉKA od 29 006 Kč /za měsíc

(včetně poplatků, včetně provize, včetně právního servisu)

Prémioví partneři v Hradci Králové

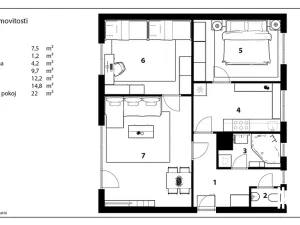
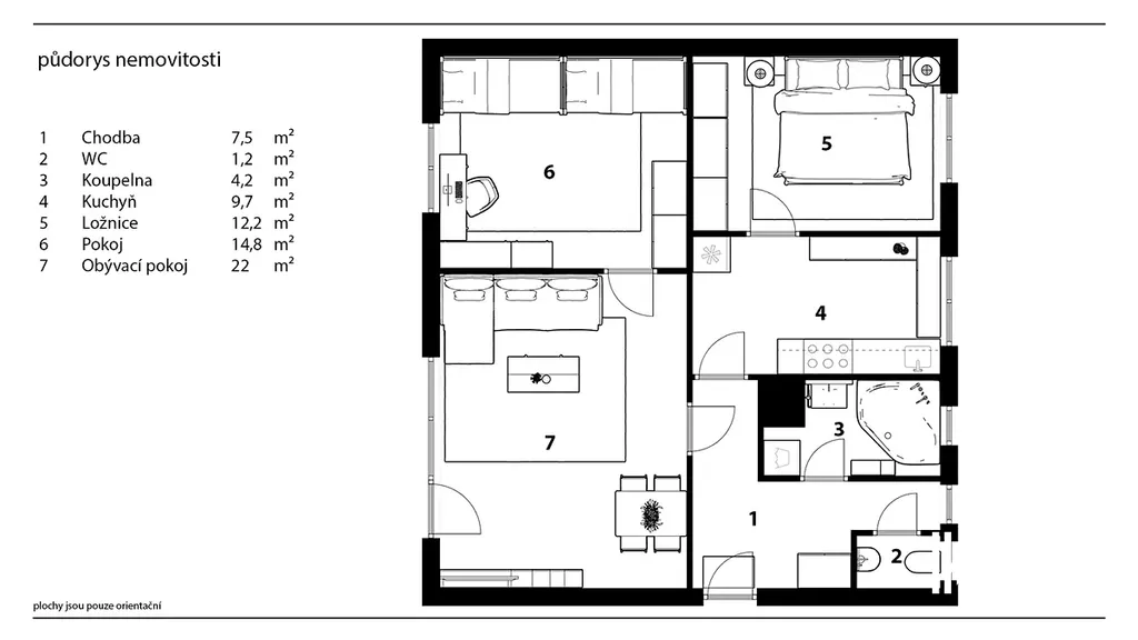
Informace k bytu

Hledáte domov, který nabízí prostor pro rodinu, hotové bydlení bez starostí a místo, kam se budete rádi vracet každý den?

Nabízím vám byt 3+1 o ploše cca 71 m2. Nachází se v pátém nadzemním podlaží zděného domu bez výtahu, který prošel kompletní revitalizací a dnes působí velmi udržovaně a příjemně. Nová fasáda, střecha i okna dávají jistotu, že o dům je dlouhodobě dobře postaráno. Vytápění i ohřev vody jsou řešeny centrálně dálkově, což přináší komfort bez nutnosti řešit vlastní zdroj tepla. Samotný byt prošel rekonstrukcí v roce 2020 a je připraven k okamžitému nastěhování.

Srdcem bytu je severozápadně orientovaná kuchyně, která je umístěna centrálně a přirozeně propojuje celý prostor. Kuchyňská linka do tvaru L nabízí velkorysou pracovní plochu i množství úložných skříněk a je vybavena vestavěnými spotřebiči včetně trouby, mikrovlnky, plynového sporáku a myčky. Nechybí ani místo pro pračku nebo sušičku. Je to prostor, kde se bude odehrávat každodenní život – od rychlých snídaní po víkendové vaření.

Na kuchyni navazuje obývací pokoj orientovaný na jihovýchod, kam proudí příjemné denní světlo. Francouzské okno prostor krásně otevírá a dodává mu vzdušnost. Obývací část nabízí dostatek místa pro jídelní stůl i odpočinkovou zónu s pohovkou – místo, kde se bude scházet celá rodina a kde má domov své centrum. Z obývacího pokoje se vstupuje do dalšího pokoje, který dnes slouží jako dětský. Je světlý, příjemný a díky své návaznosti na obývací část ideální právě pro děti – máte je přirozeně na dosah, ale zároveň mají svůj vlastní prostor. Třetí pokoj se nachází za kuchyní a je orientován na severozápad, stejně jako samotná kuchyně. Aktuálně slouží jako ložnice a působí klidně a útulně – ideální místo pro odpočinek po dlouhém dni. Koupelna je řešena s důrazem na komfort – najdete zde velkou rohovou vanu, která vybízí k večernímu relaxu. Toaleta je samostatná, což je praktické řešení pro rodinné bydlení. Vše propojuje vstupní chodba, která tvoří přirozené zázemí a nabízí prostor pro úložné řešení, takže každodenní fungování rodiny zůstává přehledné a praktické.

Celý byt působí velmi funkčně, čistě a příjemně. Kombinuje moderní rekonstrukci s dispozičním řešením, které dává smysl a umožňuje přirozené fungování domácnosti bez kompromisů. Měsíční náklady na bydlení dle předpisu SVJ pro 4 osoby činí 7 140 Kč (z toho fond oprav 2 250 Kč), dále elektřina a plyn dle spotřeby.

Ulice Skupova se nachází na Slezském Předměstí. Jedná se o širší centrum Hradce Králové, kde máte všechno důležité na dosah – obchody, služby, školy, školky, lékaře i sportoviště. Jen pár minut pěšky vás dělí od oblíbených Šimkových sadů, které nabízejí prostor pro procházky, dětské hry i odpočinek v zeleni. Parkování je bezproblémové přímo u domu a díky blízké zastávce Průmyslová škola máte snadné spojení MHD do všech částí města. Ať už jedete kamkoliv, tady jste vždy dobře napojeni.

Tento byt je ideální volbou pro rodinu, která hledá hotové bydlení v lokalitě, kde je všechno na dosah. Nabízí dostatek prostoru, praktickou dispozici, revitalizovaný dům i skvělou dostupnost. Zároveň představuje jistotu i z pohledu investice – ať už pro vlastní bydlení, nebo jako dlouhodobé uložení hodnoty. Pokud hledáte místo, které bude fungovat nejen dnes, ale i za několik let, ozvěte se mi a přijďte se podívat osobně.

Parametry bytu

Cena
6 490 000 Kč /za nemovitost Spočítat hypotéku
Poznámka k ceně
včetně poplatků, včetně provize, včetně právního servisu
Aktualizováno
29. 4. 2026
Adresa
Skupova, Hradec Králové
ID
00261
Stavba
Cihlová
Stav objektu
Velmi dobrý
Patro
5. z 5
Vybaveno
Ne
Lokalita objektu
Centrum obce
Vlastnictví
Osobní
Užitná plocha
71 m2
Podlahová plocha
75 m2
Třída energetické náročnosti
D - Méně úsporná
Ukazatel energetické náročnosti
113 kWh/m2 za rok
Elektřina
230V
Plyn
Plynovod
Odpad
Veřejná kanalizace
Doprava
Silnice, MHD, Autobus
Voda
Vodovod
Topné těleso
Radiátory
Zdroj topení
Centrální dálkové
Zdroj teplé vody
Centrální dálkový ohřev
Sklep
Výtah

Kontaktovat makléře

Realitní kancelář

FIRST HOLD INVEST s.r.o.

Za Pasáží 1429, Pardubice, Zelené Předměstí

Chystáte se prodat nemovitost?
Pomůžeme Vám!

Máte zájem o tento byt?

Tímto, v souladu s nařízením Evropského parlamentu a Rady (EU) 2016/679, v platném znění, prohlašuji, že mi je alespoň 16 let a uděluji tak svůj souhlas se zpracováním zadaných údajů (jméno, telefon, e-mail, ip adresa) společnosti B3 Technology, s.r.o., IČ: 07330600, se sídlem Novostavby 126/23, 435 11 Lom (správce dat), za účelem předání dotazu z tohoto formuláře Vámi vybranému inzerentovi a zpětného kontaktování mé osoby. Osobní údaje bude správce zpracovávat manuálně i automaticky přímo prostřednictvím svých zaměstnanců. Informace předané tímto formulářem budou uloženy v databázi správce maximálně po dobu 10 let. Odvolání souhlasu s uložením a zpracováním poskytnutých dat lze e-mailem na info@videobydleni.cz. V případě podezření na neoprávněné použití Vámi poskytnutých údajů máte právo předat podnět k šetření Úřadu pro ochranu osobních údajů. Více informací
Chystáte se prodat nemovitost?
Pomůžeme Vám!

Inzerát si prohlédlo 0 lidí

Prodejce

Kryštof Kalhous

Kryštof Kalhous

Hlídací pes

Chcete dostávat emailem podobné nabídky prodeje bytů 3+1 v Hradci Králové?

Podobné nemovitosti


Nevyhovuje Vám typ bytu? Podívejte se na jiné kategorie bytů.


Vybrané články z našeho blogu