Prodej bytu 2+1, Pardubice, Jana Palacha, 70 m2

Jana Palacha, Pardubice, Zelené Předměstí

6 490 000 Kč /za nemovitost HYPOTÉKA od 29 006 Kč /za měsíc

(včetně poplatků, včetně provize, včetně právního servisu)

Prémioví partneři v Pardubicích

Informace k bytu

Z ulice Jana Palacha máte všechno důležité doslova na dosah ruky. Centrum Pardubic je v docházkové vzdálenosti, stejně jako nejrůznější obchody, služby, restaurace, školy i další občanská vybavenost. Jen pár kroků od domu se nachází autobusová zastávka, díky které je pohyb po městě rychlý a jednoduchý. Lokalita tak nabízí ideální rovnováhu mezi dostupností a každodenním komfortem.

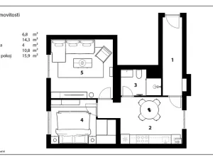
Byt se nachází ve druhém nadzemním podlaží činžovního domu, který prošel v roce 2015 rozsáhlou modernizací. Ta zahrnovala nejen viditelné prvky, ale i klíčové technické části budovy. Nová fasáda, střecha a okna dávají domu svěží a udržovaný vzhled, zároveň byla realizována nová přípojka do domu, kompletně vyměněny stoupačky vody a odpadů i rozvody elektřiny a modernizován hydrantový systém. Celek tak působí nejen esteticky velmi dobře, ale zároveň nabízí technické zázemí odpovídající současným standardům a dlouhodobou jistotu bez nutnosti dalších zásadních zásahů. Z pohledu energetické náročnosti se pyšní třídou C – úsporná. Samotný byt má výměru cca 69,8 m² a taktéž v roce 2015 prošel kompletní rekonstrukcí včetně všech rozvodů, takže je připraven k okamžitému nastěhování bez nutnosti dalších úprav. Celý interiér působí sjednoceně, vzdušně a připraveně k okamžitému užívání. O vytápění i ohřev vody se stará vlastní plynový kondenzační kotel.

Chodba vás přivede do kuchyně, která je orientovaná na jih do klidného vnitrobloku. Díky tomu působí příjemně světlým a zároveň klidným dojmem. Kuchyňská linka je moderní a funkční, vybavená plynovým sporákem s digestoří a nabízí dostatek prostoru pro vytvoření jídelního koutu. Je to místo, kde může vzniknout přirozené centrum bytu – prostor pro společná jídla i každodenní chvíle. Z kuchyně se byt dále otevírá do dvou samostatných pokojů orientovaných do ulice na sever. Větší z nich může bez problémů sloužit jako hlavní obytný pokoj nebo ložnice, podle vašich potřeb. Druhý pokoj je komornější, ale velmi prakticky doplněný o vlastní šatní kout s otevřeným úložným systémem a zatahovacími roletami, což z něj dělá ideální prostor pro ložnici nebo pracovnu. Koupelna je společná s toaletou a nabízí prostorný walk-in sprchový kout, který podtrhuje moderní a čistý charakter celého bytu. Po vstupu do bytu vás přivítá dlouhá chodba, která tvoří páteř celého prostoru a propojuje jej s dalšími místnostmi. Najdete zde botník i malou komoru, která může sloužit jako šatní prostor pro svrchní oblečení nebo třeba zázemí pro úklidové potřeby. Je to praktický detail, který v každodenním fungování dává velký smysl.

Měsíční náklady na bydlení činí:
fond oprav 907 Kč
zálohy na vodu a domovní služby 1 093 Kč
elektřina dle spotřeby, doposud průměrně 900 Kč
plyn dle spotřeby, doposud průměrně 1 300 Kč

Tento byt je ideální volbou pro pár, menší rodinu nebo jako investice k pronájmu. Nabízí dostatek prostoru, funkční dispozici, moderní stav i výbornou lokalitu v docházkové vzdálenosti od centra. Je to místo, které funguje v každodenním životě a zároveň nabízí příjemné zázemí, kam se budete rádi vracet. Pokud hledáte byt v Pardubicích, který kombinuje prostor, stav i polohu bez kompromisů, ozvěte se mi a přijďte se podívat osobně.

Parametry bytu

Cena
6 490 000 Kč /za nemovitost Spočítat hypotéku
Poznámka k ceně
včetně poplatků, včetně provize, včetně právního servisu
Aktualizováno
29. 4. 2026
Adresa
Jana Palacha, Pardubice, Zelené Předměstí
ID
00262
Stavba
Cihlová
Stav objektu
Velmi dobrý
Patro
2. z 3
Vybaveno
Ne
Lokalita objektu
Centrum obce
Vlastnictví
Osobní
Užitná plocha
70 m2
Třída energetické náročnosti
C - Úsporná
Ukazatel energetické náročnosti
268 kWh/m2 za rok
Elektřina
230V
Plyn
Plynovod
Odpad
Veřejná kanalizace
Komunikace
Asfaltová
Doprava
Silnice, MHD, Autobus
Voda
Vodovod
Topné těleso
Radiátory
Zdroj topení
Plynový kondenzační kotel
Zdroj teplé vody
Plynový kondenzační kotel
Sklep
Výtah

Kontaktovat makléře

Realitní kancelář

FIRST HOLD INVEST s.r.o.

Za Pasáží 1429, Pardubice, Zelené Předměstí

Chystáte se prodat nemovitost?
Pomůžeme Vám!

Máte zájem o tento byt?

Tímto, v souladu s nařízením Evropského parlamentu a Rady (EU) 2016/679, v platném znění, prohlašuji, že mi je alespoň 16 let a uděluji tak svůj souhlas se zpracováním zadaných údajů (jméno, telefon, e-mail, ip adresa) společnosti B3 Technology, s.r.o., IČ: 07330600, se sídlem Novostavby 126/23, 435 11 Lom (správce dat), za účelem předání dotazu z tohoto formuláře Vámi vybranému inzerentovi a zpětného kontaktování mé osoby. Osobní údaje bude správce zpracovávat manuálně i automaticky přímo prostřednictvím svých zaměstnanců. Informace předané tímto formulářem budou uloženy v databázi správce maximálně po dobu 10 let. Odvolání souhlasu s uložením a zpracováním poskytnutých dat lze e-mailem na info@videobydleni.cz. V případě podezření na neoprávněné použití Vámi poskytnutých údajů máte právo předat podnět k šetření Úřadu pro ochranu osobních údajů. Více informací
Chystáte se prodat nemovitost?
Pomůžeme Vám!

Inzerát si prohlédlo 0 lidí

Prodejce

Kryštof Kalhous

Kryštof Kalhous

Hlídací pes

Chcete dostávat emailem podobné nabídky prodeje bytů 2+1 v Pardubicích?

Podobné nemovitosti


Nevyhovuje Vám typ bytu? Podívejte se na jiné kategorie bytů.


Vybrané články z našeho blogu