Pronájem bytu 5+kk, Brno, Slámova, 150 m2 (ID: 4254807)

Slámova, Brno-Černovice

35 900 Kč /za měsíc Získejte výhodnou HYPOTÉKU

(+ zálohy za služby a energie 2.000 Kč, + zálohy za plyn a el. energii, + vratná kauce 70.000 Kč, + rezervační poplatek)

Prémioví partneři v Brně

Informace k bytu

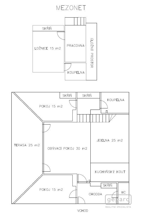
Ve výhradním zastoupení majitele vám nabízíme k pronájmu prostorný mezonetový byt o dispozici 5+kk a podlahové ploše 125 m². K bytu náleží také terasa o velikosti 25 m² a sklep o ploše 6 m².

Byt byl vybudován v roce 1993 jako nadstavba cihlového domu a nachází se ve 4. a 5. nadzemním podlaží. Klidná lokalita brněnské městské části Černovice nabízí příjemné bydlení obklopené zelení a parky, ideální pro odpočinek od ruchu velkoměsta.

Po vstupu do bytu vás zaujme velkorysý a prakticky řešený prostor, který si můžete detailně prohlédnout i prostřednictvím 3D virtuální prohlídky. Dispozice bytu je následující:
• podlaží: vstupní předsíň, dva samostatné pokoje, prostorný obývací pokoj propojený s jídelnou a kuchyní o výměře téměř 60 m², koupelna s vanou a samostatná toaleta.
• podlaží: pracovna, ložnice a koupelna se sprchovým koutem a toaletou.

Z obývacího pokoje je přímý vstup na západně orientovanou terasu, která nabízí příjemné posezení s výhledem do zeleně. Při západu slunce si zde můžete vychutnat sklenku vína a navíc se pokochat i výhledem na dominantu města – hrad Špilberk.

Další informace:
• vlastní plynový kotel (vytápění a ohřev vody)
• zateplený bytový dům
• orientace oken na východ a západ
• klimatizační jednotky v obou podlažích
• dům není vybaven výtahem
• bezproblémové parkování přímo před domem
Samozřejmostí je kompletní občanská vybavenost v docházkové vzdálenosti.

Podmínky pronájmu:
• nájemné: 35.900 Kč / měsíc
• zálohy na služby: 2.000 Kč / měsíc (vodné a stočné, úklid společných prostor, správa domu, komíny, STA, společná elektřina)
• elektřina a plyn budou převedeny na nájemce
• vratná kauce 70.000 Kč
• rezervační poplatek ve výši jednoho nájmu
Byt je k dispozici od 1. 7. 2026.

Pokud vás tato nabídka zaujala, neváhejte mě kontaktovat a domluvte si termín osobní prohlídky.

Parametry bytu

Cena
35 900 Kč /za měsíc
Poznámka k ceně
+ zálohy za služby a energie 2.000 Kč, + zálohy za plyn a el. energii, + vratná kauce 70.000 Kč, + rezervační poplatek
Aktualizováno
30. 4. 2026
Adresa
Slámova, Brno-Černovice
ID
12327
Stavba
Cihlová
Stav objektu
Velmi dobrý
Patro
4. z 5
Vybaveno
Částečně
Lokalita objektu
Klidná část obce
Vlastnictví
Osobní
Užitná plocha
150 m2
Podlahová plocha
125 m2
Třída energetické náročnosti
D - Méně úsporná
Ukazatel energetické náročnosti
118 kWh/m2 za rok
Elektřina
230V
Plyn
Plynovod
Odpad
Veřejná kanalizace
Komunikace
Asfaltová
Doprava
Vlak, Dálnice, Silnice, MHD, Autobus
Voda
Vodovod
Sklep
Terasa

Kontaktovat makléře

Máte zájem o tento byt?

Tímto, v souladu s nařízením Evropského parlamentu a Rady (EU) 2016/679, v platném znění, prohlašuji, že mi je alespoň 16 let a uděluji tak svůj souhlas se zpracováním zadaných údajů (jméno, telefon, e-mail, ip adresa) společnosti B3 Technology, s.r.o., IČ: 07330600, se sídlem Novostavby 126/23, 435 11 Lom (správce dat), za účelem předání dotazu z tohoto formuláře Vámi vybranému inzerentovi a zpětného kontaktování mé osoby. Osobní údaje bude správce zpracovávat manuálně i automaticky přímo prostřednictvím svých zaměstnanců. Informace předané tímto formulářem budou uloženy v databázi správce maximálně po dobu 10 let. Odvolání souhlasu s uložením a zpracováním poskytnutých dat lze e-mailem na info@videobydleni.cz. V případě podezření na neoprávněné použití Vámi poskytnutých údajů máte právo předat podnět k šetření Úřadu pro ochranu osobních údajů. Více informací
Chystáte se prodat nemovitost?
Pomůžeme Vám!

Inzerát si prohlédlo 0 lidí

Prodejce

BEM. Ivana Gašpar (Žďánská)

BEM. Ivana Gašpar (Žďánská)

Hlídací pes

Chcete dostávat emailem podobné nabídky pronájmu bytů 5+kk v Brně?

Podobné nemovitosti


Nevyhovuje Vám typ bytu? Podívejte se na jiné kategorie bytů.


Vybrané články z našeho blogu