Prodej rodinného domu, Trubín, Na Vyhlídce, 121 m2

Na Vyhlídce, Trubín

10 480 000 Kč HYPOTÉKA od 46 839 Kč /za měsíc

(Včetně provize a právního servisu)

Prémioví partneři v Trubíně

Informace k domu

Prodej rodinného domu 121 m and sup2 , pozemek 499 m and sup2 , Na Vyhlídce, Trubín - okres Beroun

KLIDNÉ RODINNÉ BYDLENÍ SE ZAHRADOU, TERASOU, GARÁŽÍ, DVĚMA KOUPELNAMI A SKVĚLOU DOSTUPNOSTÍ DO BEROUNA I PRAHY. TO VŠE V OBKLOPENÍ KRÁSNÉ PŘÍRODY ČESKÉHO KRASU A KŘIVOKLÁTSKA.

Tato nemovitost o dispozici 4+1 nabízí komfortní rodinné bydlení v naprosto klidném prostředí. Do Berouna se dostanete za 8 minut a do Prahy na Zličín za 17 minut. To vše v obci Trubín, obklopené krásnou přírodou Českého krasu a Křivoklátska.

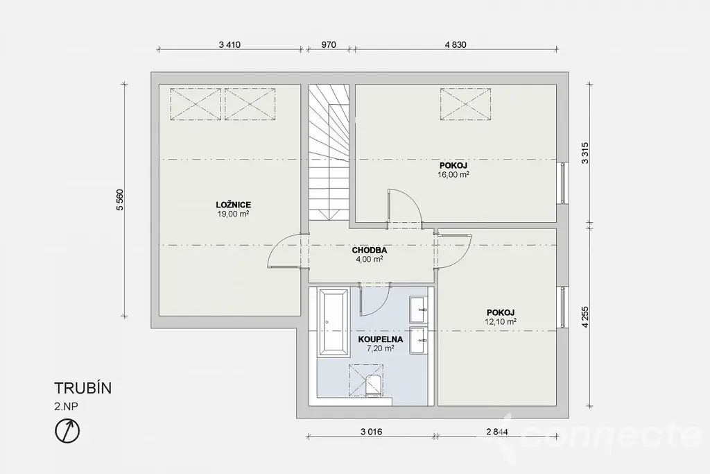
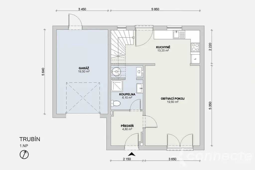
Dispozice je řešena velmi prakticky. V přízemí se nachází obývací pokoj, kuchyň, jídelní kout a první koupelna s toaletou. Z obývacího pokoje je přímý vstup na zastřešenou terasu a vlastní zahradu, což vytváří příjemné propojení vnitřního a venkovního prostoru. V podkroví pak najdete další 3 obytné místnosti, druhou koupelnu a praktický půdní úložný prostor. K parkování poslouží uzamykatelná garáž se 400 V zásuvkou, například pro nabíjení elektromobilu, a prostor před garáží pro další 2 vozidla.

Rodinný komfort je zde opravdu znát. Ráno si můžete v klidu vychutnat snídani na terase, přes den nechat děti hrát na zahradě a večer si užít příjemný klid, který dnes bývá čím dál vzácnější. Dvě koupelny navíc přinášejí pohodlnější a klidnější fungování celé domácnosti. Praktickou stránku každodenního života pak doplňuje i nové obchodní centrum Litavka, vzdálené pouhé 4 minuty od domova.

A samotnou nemovitostí to nekončí. Velkou přidanou hodnotou je také krásná příroda v okolí. V dosahu máte krásnou přírodu Českého krasu a Křivoklátska, tedy oblíbená místa pro procházky, výlety, sport a odpočinek. Pokud tedy hledáte bydlení, které nabízí více prostoru a klidu, vlastní zahradu s terasou, garáž a ideální spojení přírody s dostupností města, pak je tohle místo přesně pro Vás.

Vše výše zmíněné se jen velmi těžko přenáší přes displej. Mnohem lepší je osobní zážitek. Proto mi zavolejte a domluvte si osobní prohlídku ještě dnes. Pokud navíc chcete koupi této nemovitosti financovat prodejem té vlastní, určitě najdeme cestu, jak toho dosáhnout. Samozřejmostí je také zajištění financování.

--

Pozn:
Poslední zpracovaný PENB řadil nemovitost do energetické třídy C, nový PENB bude doplněn v nejbližší možné době.

Parametry domu

Cena
10 480 000 Kč Spočítat hypotéku
Poznámka k ceně
Včetně provize a právního servisu
Aktualizováno
30. 4. 2026
Adresa
Na Vyhlídce, Trubín
ID
180
Stavba
Dřevěná
Vybaveno
Ne
Druh objektu
V bloku
Vlastnictví
Osobní
Užitná plocha
121 m2
Zastavěná plocha
91 m2
Plocha pozemku
499 m2
Třída energetické náročnosti
C - Úsporná

Kontaktovat makléře

Máte zájem o tento dům?

Tímto, v souladu s nařízením Evropského parlamentu a Rady (EU) 2016/679, v platném znění, prohlašuji, že mi je alespoň 16 let a uděluji tak svůj souhlas se zpracováním zadaných údajů (jméno, telefon, e-mail, ip adresa) společnosti B3 Technology, s.r.o., IČ: 07330600, se sídlem Novostavby 126/23, 435 11 Lom (správce dat), za účelem předání dotazu z tohoto formuláře Vámi vybranému inzerentovi a zpětného kontaktování mé osoby. Osobní údaje bude správce zpracovávat manuálně i automaticky přímo prostřednictvím svých zaměstnanců. Informace předané tímto formulářem budou uloženy v databázi správce maximálně po dobu 10 let. Odvolání souhlasu s uložením a zpracováním poskytnutých dat lze e-mailem na info@videobydleni.cz. V případě podezření na neoprávněné použití Vámi poskytnutých údajů máte právo předat podnět k šetření Úřadu pro ochranu osobních údajů. Více informací
Chystáte se prodat nemovitost?
Pomůžeme Vám!

Inzerát si prohlédlo 0 lidí

Prodejce

Stanislav Pavel

Stanislav Pavel

Hlídací pes

Chcete dostávat emailem podobné nabídky prodeje rodinných domů v Trubíně?

Podobné nemovitosti


Nevyhovuje Vám typ domu? Podívejte se na jiné kategorie domů.


Vybrané články z našeho blogu