Prodej rodinného domu, Praha - Kunratice, Poběžovická, 221 m2

Poběžovická, Praha, Kunratice

27 499 000 Kč /za nemovitost HYPOTÉKA od 122 904 Kč /za měsíc
Prémioví partneři v Praze 4

Stěhovací služby

Výkup a prodej starého nábytku

Informace k domu

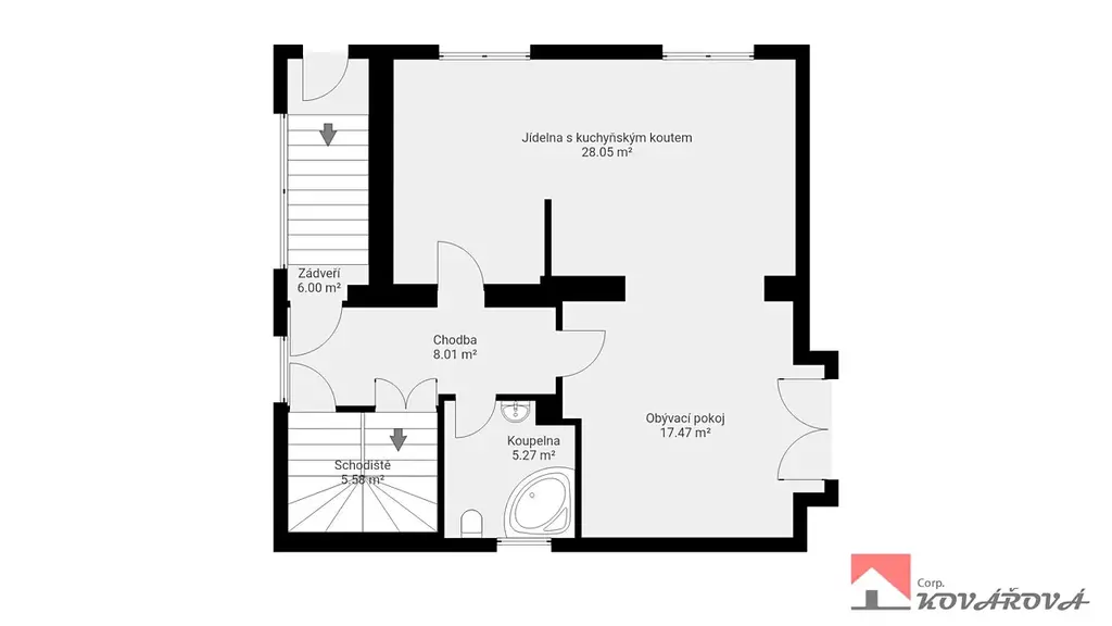
Nabízíme k prodeji výjimečný rodinný dům o dispozici 5+kk s krásnou, pečlivě udržovanou zahradou o výměře 900 m², situovaný v prestižní a klidné rezidenční části Praha Kunratice, ulice Pobežovická.

Tato nemovitost je ideální volbou pro náročnější klienty, kteří hledají kombinaci soukromí, prostoru a rychlé dostupnosti do centra města.

Dominantou domu je velkorysý obývací prostor propojený s kuchyní a jídelnou, který přirozeně navazuje na terasu a upravenou zahradu. Ta poskytuje dokonalé zázemí pro relaxaci, rodinné chvíle i reprezentativní setkání s přáteli či obchodními partnery.

Dispozičně dům nabízí:

* vstupní halu a prostornou chodbu
* obývací pokoj s jídelnou a vstupem na terasu
* kuchyňský kout
* koupelnu a WC v přízemí
* tři samostatné pokoje v patře domu
* druhou koupelnu a WC
* vstup na půdu

Velkým benefitem je kompletní podsklepení domu, které výrazně rozšiřuje užitnou hodnotu nemovitosti. Nachází se zde prostorná prádelna, komora, zkušebna a další místnosti s velkým množstvím úložného prostoru. Sklepní prostory jsou navíc prosvětleny okny, což zvyšuje jejich komfort a variabilitu využití (např. hobby zázemí, fitness, dílna či domácí kancelář).

Dům prošel rekonstrukcí v roce 2011 a je ve velmi dobrém technickém stavu:

* plastová okna
* zateplená fasáda
* pálená střešní krytina, zateplená půda
* rozvody elektřiny, vody, odpadu a topení
* dva komíny (jeden s nerezovou vložkou)
* vytápění a ohřev vody plynem
* napojení na městskou vodu a kanalizaci
* vlastní studna na pozemku
* optický internet

Na zahradě se nachází garáž a dostatek prostoru pro další využití dle Vašich představ.

Provozní náklady:

* voda: cca 2.000,- Kč + stočné
* elektřina: cca 4.000,- Kč (přeplatek cca 15.000,- Kč)
* plyn: cca 6.000,- Kč (přeplatek cca 10.000,- Kč)

Lokalita:
Kunratice dlouhodobě patří mezi nejvyhledávanější rezidenční lokality v Praze. Nabízí klidné bydlení v zeleni s výbornou dostupností do centra.

V těsné blízkosti se nachází Kunratický les, ideální pro každodenní relaxaci, běh či rodinné procházky. Samozřejmostí je kompletní občanská vybavenost kvalitní školy, školky, obchody, restaurace i zdravotní služby.

Tato nemovitost osloví zejména klienty, kteří hledají reprezentativní, ale zároveň praktické rodinné bydlení s dostatkem prostoru, soukromí a možností variabilního využití.

PENB je momentálně uveden ve třídě G (průkaz energetické náročnosti budovy je ve zpracování).

V případě zájmu Vám rádi zajistíme financování na míru.

Těšíme se na osobní prohlídku tohoto výjimečného domu.

Parametry domu

Cena
27 499 000 Kč /za nemovitost Spočítat hypotéku
Aktualizováno
30. 4. 2026
Adresa
Poběžovická, Praha, Kunratice
ID
190
Stavba
Cihlová
Stav objektu
Velmi dobrý
Vybaveno
Částečně
Druh objektu
Samostatný
Užitná plocha
221 m2
Zastavěná plocha
100 m2
Podlahová plocha
221 m2
Plocha pozemku
898 m2
Plocha zahrady
818 m2
Třída energetické náročnosti
G - Mimořádně nehospodárná
Elektřina
230V, 400V
Plyn
Plynovod
Odpad
Veřejná kanalizace
Topení
Ústřední plynové
Komunikace
Asfaltová
Telekomunikace
Telefon, Internet
Doprava
Silnice, Autobus
Voda
Studna
Zdroj teplé vody
Plynový kotel
Sklep
Bezbarierový přístup
Parkování

Kontaktovat makléře

Máte zájem o tento dům?

Tímto, v souladu s nařízením Evropského parlamentu a Rady (EU) 2016/679, v platném znění, prohlašuji, že mi je alespoň 16 let a uděluji tak svůj souhlas se zpracováním zadaných údajů (jméno, telefon, e-mail, ip adresa) společnosti B3 Technology, s.r.o., IČ: 07330600, se sídlem Novostavby 126/23, 435 11 Lom (správce dat), za účelem předání dotazu z tohoto formuláře Vámi vybranému inzerentovi a zpětného kontaktování mé osoby. Osobní údaje bude správce zpracovávat manuálně i automaticky přímo prostřednictvím svých zaměstnanců. Informace předané tímto formulářem budou uloženy v databázi správce maximálně po dobu 10 let. Odvolání souhlasu s uložením a zpracováním poskytnutých dat lze e-mailem na info@videobydleni.cz. V případě podezření na neoprávněné použití Vámi poskytnutých údajů máte právo předat podnět k šetření Úřadu pro ochranu osobních údajů. Více informací
Chystáte se prodat nemovitost?
Pomůžeme Vám!

Inzerát si prohlédlo 2 lidí

Prodejce

GABRIELA KOVÁŘOVÁ

GABRIELA KOVÁŘOVÁ

Hlídací pes

Chcete dostávat emailem podobné nabídky prodeje rodinných domů v Praze 4?

Podobné nemovitosti


Nevyhovuje Vám typ domu? Podívejte se na jiné kategorie domů.


Vybrané články z našeho blogu