Prodej rodinného domu, Moravská Třebová, 350 m2 (ID: 3679267)

Moravská Třebová, okres svitavy

13 870 000 Kč /za nemovitost HYPOTÉKA od 61 991 Kč /za měsíc
Prémioví partneři v Moravské Třebové

Informace k domu

V blízkosti města Moravská Třebová nabízíme k prodeji exklusivní nemovitost ve stylu staré zemanské tvrze, při modernizaci citlivě udrženou v původním duchu zachováním dobových prvků, stylu. V klidném místě stojící patrová precizně rekonstruovaná stavba se zastavěnou plochou asi 260 m2 se rozkládá na pozemcích o celkové výměře 4.300 m2. Komplex se nachází v okrajové části obce, v tichém klidném místě bez provozu, obklopen zelení. Objekt je dobře přístupný, přitom odloučen od dění v obci, soukromí chráněno okolními pozemky.

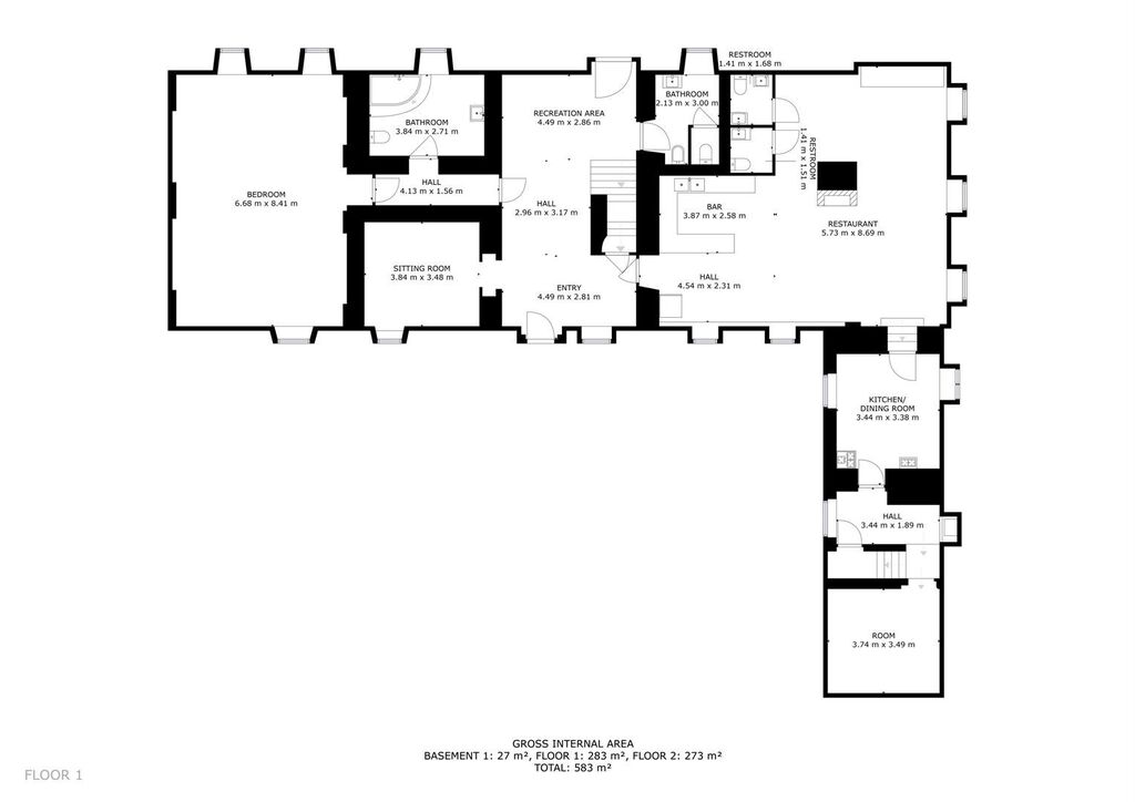
Ve víceúčelovém prostorném domě s úžasnou atmosférou, který po rekonstrukci působící jako šlechtické sídlo, malý zámeček, je veškeré zázemí k využití jak pro rekreační účely, tak i pro trvalé bydlení větší rodiny, společenství. V dispozičně prakticky řešeném dobře prosvětleném domě jsou pokoje ubytovací i velké společenské prostory, v přízemí vše připraveno pro velkou jídelnu, kavárnu, s úpravami využitelnou i jako restauraci. Prostoru pro kavárnu, restauraci, dominuje otevřený renovovaný krb, připravený i na možné vsazení dvouplášťové krbové vložky.

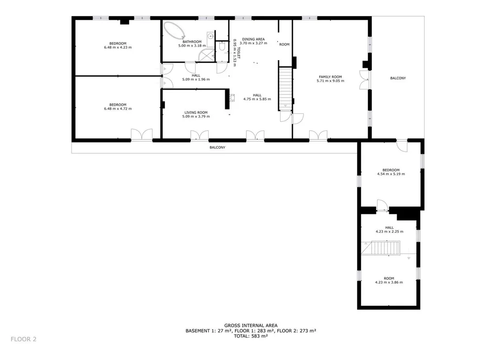
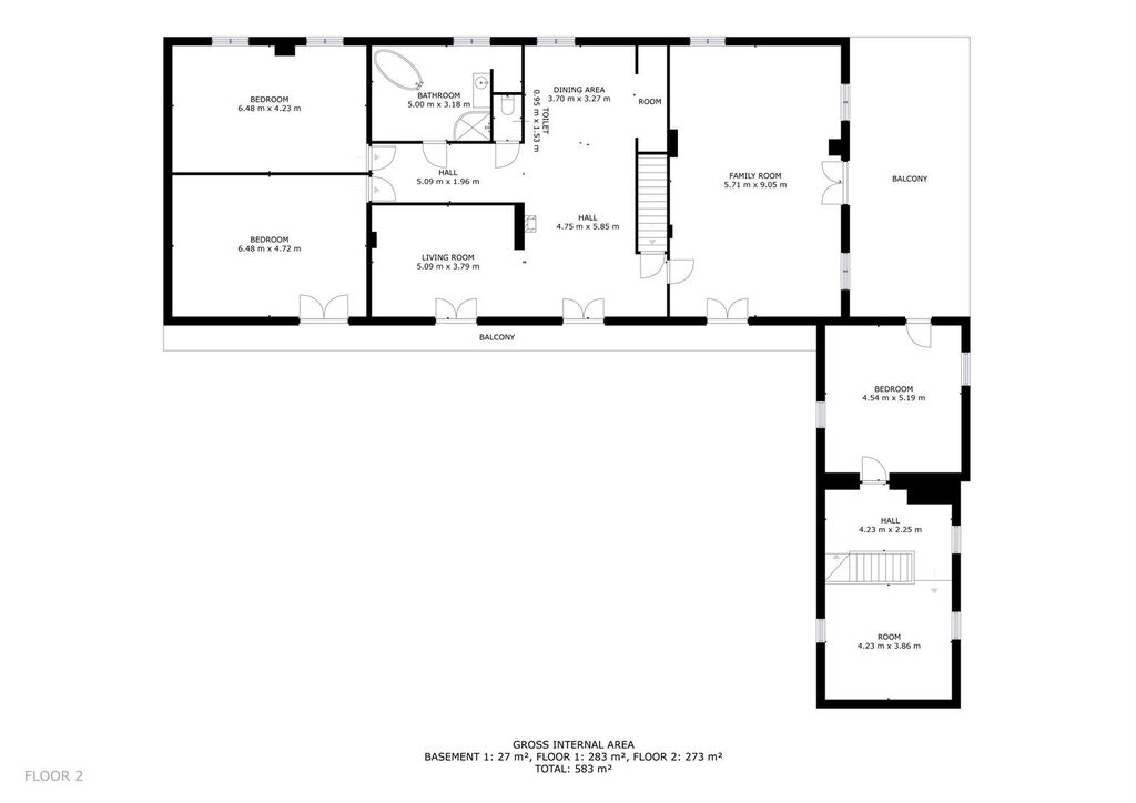
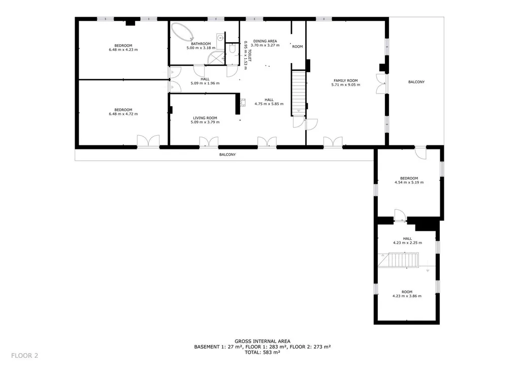
Rozložení prostor v domě umožňuje vícegenerační bydlení v několika oddělitelných částech, samostatných bytech. Pro jednotlivé části jsou zbudovány samostatné okruhy ústředního topení s plynovými kotli, v objektu i další krbová kamna pro dotvoření atmosféry i přitápění. Uspořádání vnitřních prostor je patrné z přiložených půdorysů.

V průběhu uplynulých let byla provedena kompletní rekonstrukce všech částí objektu, počínaje obnovou přípojek, zbudováním nových rozvodů, instalací, od obnovení a prohloubení sklepení, rozsáhlou renovací podlah, omítek, opravy střechy, až po v současnosti dokončovanou opravu velké venkovní terasy v patře domu. Vše prováděno velmi pečlivě, s využitím nejvhodnějších technologií a materiálů, zároveň citlivě, se zachováním původního vzhledu, dobového stylu.

Stávající stavba ve tvaru „L“ má okna do dvora orientována jihozápadně s výhledy do volné přírody, velká zastřešená terasa v patře domu je orientována jihovýchodně. Na pozemku vydatná studna, ve dvoře se dle senzibilů setkávají zóny pozitivních energií.

Ve dvoře na půdorysu původně stojících stájí lze dostavět další objekt, zázemí pro dům a zahradu, vytvořit wellness zónu, o tyto prostory možno rozšířit využití komplexu o další ubytovací kapacity, případně zde možno zbudovat garáže apod. V místě původního obezdění dvora jsou dostavovány kamenné zdi, které po dokončení uzavřou dvůr a vytvoří tak dokonalé soukromí.

Na vyžádání Vám zašleme podrobné informace s detailním popisem provedených rekonstrukcí. Větší počet fotografií pošleme na vyžádání, případně možno shlédnout na stránkách ERA-reality. Cena nemovitostí 13.790.000,- Kč + provize RK.

V případě zájmu o bližší informace či sjednání prohlídky telefonicky kontaktujte makléře.

Parametry domu

Cena
13 870 000 Kč /za nemovitost Spočítat hypotéku
Aktualizováno
25. 10. 2025
Adresa
Moravská Třebová, okres svitavy
ID
003N057609
Stavba
Smíšená
Stav objektu
Po rekonstrukci
Vybaveno
Částečně
Typ objektu
Patrový
Druh objektu
Samostatný
Vlastnictví
Osobní
Užitná plocha
400 m2
Zastavěná plocha
260 m2
Podlahová plocha
350 m2
Plocha pozemku
4364 m2
Třída energetické náročnosti
G - Mimořádně nehospodárná
Elektřina
400V
Plyn
Plynovod
Odpad
Veřejná kanalizace
Topení
Ústřední plynové
Doprava
Vlak, Silnice, MHD, Autobus
Voda
Vodovod
Balkon
Sklep
Lodžie
Terasa
Parkování

Kontaktovat makléře

Realitní kancelář

Logo ERA RealPatria

ERA RealPatria

Fanderlíkova 381/10, Prostějov

Chystáte se prodat nemovitost?
Pomůžeme Vám!

Máte zájem o tento dům?

Tímto, v souladu s nařízením Evropského parlamentu a Rady (EU) 2016/679, v platném znění, prohlašuji, že mi je alespoň 16 let a uděluji tak svůj souhlas se zpracováním zadaných údajů (jméno, telefon, e-mail, ip adresa) společnosti B3 Technology, s.r.o., IČ: 07330600, se sídlem Novostavby 126/23, 435 11 Lom (správce dat), za účelem předání dotazu z tohoto formuláře Vámi vybranému inzerentovi a zpětného kontaktování mé osoby. Osobní údaje bude správce zpracovávat manuálně i automaticky přímo prostřednictvím svých zaměstnanců. Informace předané tímto formulářem budou uloženy v databázi správce maximálně po dobu 10 let. Odvolání souhlasu s uložením a zpracováním poskytnutých dat lze e-mailem na info@videobydleni.cz. V případě podezření na neoprávněné použití Vámi poskytnutých údajů máte právo předat podnět k šetření Úřadu pro ochranu osobních údajů. Více informací
Chystáte se prodat nemovitost?
Pomůžeme Vám!

Inzerát si prohlédlo 373 lidí

Prodejce

Stanislav Šamšula

Stanislav Šamšula

Hlídací pes

Chcete dostávat emailem podobné nabídky prodeje rodinných domů v Moravské Třebové?

Podobné nemovitosti


Nevyhovuje Vám typ domu? Podívejte se na jiné kategorie domů.


Vybrané články z našeho blogu