Prodej bytu 2+kk, Praha - Holešovice, Tovární, 61 m2

Tovární, Praha 7, Holešovice

5 800 000 Kč /za nemovitost HYPOTÉKA od 25 922 Kč /za měsíc
Prémioví partneři v Praze 7

Stěhovací služby

Výkup a prodej starého nábytku

Informace k bytu

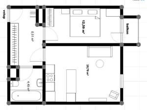
Exkluzivně nabízíme k prodeji nebytový prostor v osobním vlastnictví o dispozici 2+KK s rozlohou 61 m2 v netypickém cihlovém domě z roku 1920 na lukrativním místě Praha 7 - Holešovice. Jedná se o nebytový prostor, který je využíván jako byt. Po vstupu do jednotky se nachází prostorná předsíň s kuchyňským koutem, z předsíně je vstup do koupelny, wc, komory a obytné místnosti ze které je následně přístup do ložnice. Tato jednotka byla částečně upravena v roce 2015. Standard jednotky je patrný z fotografií. Vnitřní omítky jsou štukové s výmalbou, podlahové krytiny tvořeny kombinací dlažby a PVC. Okna dřevěná typu euro s dvojsklem, interiérové dveře původní dřevěné. Součástí vybavení je kuchyňská linka. Ohřev teplé vody je zajištěn elektrickým boilerem, topení lokálními přímotopy na elektřinu. Jednotka s východní a západní orientací je situovaná do prvního podzemního podlaží (pod jednotkou jsou sklepní prostory) z celkových šesti podlaží klidného cihlového domu. Dům pochází z dvacátých let minulého století a byl v roce 2010 kompletně revitalizován a v dalších následujících letech bude potřebovat jen běžnou údržbu. Průkaz energetické hodnoty byl vypočten na hodnotu D. K dispozici optické připojení k internetu. Veškerá občanská vybavenost v sousedství domu, dopravní obslužnost zajištěna MHD. V případě dotazů či se zájmem o prohlídku nás neváhejte kontaktovat.

Parametry bytu

Cena
5 800 000 Kč /za nemovitost Spočítat hypotéku
Aktualizováno
11. 9. 2025
Adresa
Tovární, Praha 7, Holešovice
ID
1024
Stavba
Cihlová
Stav objektu
Velmi dobrý
Patro
1. z 6
Typ objektu
Patrový
Vlastnictví
Osobní
Užitná plocha
61 m2
Podlahová plocha
61 m2
Třída energetické náročnosti
D - Méně úsporná
Elektřina
230V, 400V
Odpad
Veřejná kanalizace
Topení
Lokální elektrické
Komunikace
Asfaltová
Telekomunikace
Telefon, Internet, Kabelová televize
Doprava
Vlak, Dálnice, Silnice, MHD, Autobus
Voda
Vodovod
Topné těleso
Přímotop
Zdroj topení
Přímotop
Bezbarierový přístup

Kontaktovat makléře

Máte zájem o tento byt?

Tímto, v souladu s nařízením Evropského parlamentu a Rady (EU) 2016/679, v platném znění, prohlašuji, že mi je alespoň 16 let a uděluji tak svůj souhlas se zpracováním zadaných údajů (jméno, telefon, e-mail, ip adresa) společnosti B3 Technology, s.r.o., IČ: 07330600, se sídlem Novostavby 126/23, 435 11 Lom (správce dat), za účelem předání dotazu z tohoto formuláře Vámi vybranému inzerentovi a zpětného kontaktování mé osoby. Osobní údaje bude správce zpracovávat manuálně i automaticky přímo prostřednictvím svých zaměstnanců. Informace předané tímto formulářem budou uloženy v databázi správce maximálně po dobu 10 let. Odvolání souhlasu s uložením a zpracováním poskytnutých dat lze e-mailem na info@videobydleni.cz. V případě podezření na neoprávněné použití Vámi poskytnutých údajů máte právo předat podnět k šetření Úřadu pro ochranu osobních údajů. Více informací
Chystáte se prodat nemovitost?
Pomůžeme Vám!

Inzerát si prohlédlo 88 lidí

Prodejce

Michal Němeček

Michal Němeček

Hlídací pes

Chcete dostávat emailem podobné nabídky prodeje bytů 2+kk v Praze 7?

Podobné nemovitosti


Nevyhovuje Vám typ bytu? Podívejte se na jiné kategorie bytů.


Vybrané články z našeho blogu