Prodej rodinného domu, Veleň - Mírovice, Fr. Pokorného, 199 m2

Fr. Pokorného, Veleň, Mírovice

12 900 000 Kč /za nemovitost HYPOTÉKA od 57 655 Kč /za měsíc
Prémioví partneři v Veleni

Informace k domu

Nabízím k prodeji dům 5+1 s velkou zahradou, dílnou se skladem a garáží, na klidném místě v obci Veleň – Mírovice. Poloha domu na konci ulice, ničím nerušené bydlení nedaleko Prahy.

Aktuálně je dům oddělený vnitřní příčkou na dvě samostatné jednotky, s možností opětovného propojení.

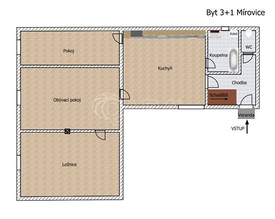
Dispozice částečně podsklepeného domu. Samostatná jednotka 3+1 o velikosti 81,22 m2, s vlastním vchodem: vstupní chodba, kuchyně, obývací pokoj, ložnice, menší pokoj aktuálně sloužící jako pracovna, koupelna se sprchovým koutem a samostatné WC.

Druhá jednotka o dispozici 2+kk a velikosti 50,53 m2: vstupní chodba, obývací pokoj s kuchyňským koutem a vstupem do zahrady, ložnice, šatna, koupelna se sprchovým koutem a WC.

U domu garáž pro dvě auta (39 m2), dílna s kuchyňkou a WC (28,65 m2). Pozemek o celkové velikosti 1092 m2. Dům je napojen na všechny IS: elektřina, vodovod, plyn, kanalizace a studna.

Dům prošel v roce 2017 rekonstrukcí: zateplení včetně fasády, nová okna, rozvody. Každá jednotka má svůj plynový kotel na vytápění a svoje měřidla.

Veleň leží na hranicích hlavního města Prahy, v těsné blízkosti pražské městské části Čakovice a tedy na dosah veškeré občanské vybavenosti. Na nemovitosti nevázne žádné zástavní právo, ani jiná překážka rychlého prodeje. Možnost financování hypotečním úvěrem, se kterým Vám rádi pomůžeme. Více informací na níže uvedené kontaktu.

Parametry domu

Cena
12 900 000 Kč /za nemovitost Spočítat hypotéku
Aktualizováno
21. 8. 2025
Adresa
Fr. Pokorného, Veleň, Mírovice
ID
15116
Stavba
Smíšená
Stav objektu
Velmi dobrý
Vybaveno
Částečně
Typ objektu
Přízemní
Druh objektu
Řadový
Lokalita objektu
Klidná část obce
Užitná plocha
132 m2
Zastavěná plocha
240 m2
Podlahová plocha
199 m2
Plocha pozemku
1092 m2
Třída energetické náročnosti
G - Mimořádně nehospodárná
Elektřina
230V
Plyn
Plynovod
Odpad
Veřejná kanalizace
Voda
Vodovod, Studna
Garáž
Převod do OV

Kontaktovat makléře

Realitní kancelář

Logo QARA, s.r.o.

QARA, s.r.o.

Šafaříkova 201/17, Praha

Chystáte se prodat nemovitost?
Pomůžeme Vám!

Máte zájem o tento dům?

Tímto, v souladu s nařízením Evropského parlamentu a Rady (EU) 2016/679, v platném znění, prohlašuji, že mi je alespoň 16 let a uděluji tak svůj souhlas se zpracováním zadaných údajů (jméno, telefon, e-mail, ip adresa) společnosti B3 Technology, s.r.o., IČ: 07330600, se sídlem Novostavby 126/23, 435 11 Lom (správce dat), za účelem předání dotazu z tohoto formuláře Vámi vybranému inzerentovi a zpětného kontaktování mé osoby. Osobní údaje bude správce zpracovávat manuálně i automaticky přímo prostřednictvím svých zaměstnanců. Informace předané tímto formulářem budou uloženy v databázi správce maximálně po dobu 10 let. Odvolání souhlasu s uložením a zpracováním poskytnutých dat lze e-mailem na info@videobydleni.cz. V případě podezření na neoprávněné použití Vámi poskytnutých údajů máte právo předat podnět k šetření Úřadu pro ochranu osobních údajů. Více informací
Chystáte se prodat nemovitost?
Pomůžeme Vám!

Inzerát si prohlédlo 30 lidí

Prodejce

Jan Mistoler

Jan Mistoler

Hlídací pes

Chcete dostávat emailem podobné nabídky prodeje rodinných domů v Veleni?

Podobné nemovitosti


Nevyhovuje Vám typ domu? Podívejte se na jiné kategorie domů.


Vybrané články z našeho blogu