Božetěchova, Brno-Královo Pole
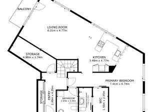
Nabízíme jedinečnou příležitost stát se majitelem prostorného a světlého mezonetového bytu o dispozici 5+kk, který poskytne dostatek místa i pohodlí pro větší rodinu nebo náročnější pár. Byt o užitné ploše 190,4 m² se nachází v oblíbené lokalitě Brno-Královo Pole, na klidné ulici Božetěchova. K bytu náleží dva příjemné balkony o celkové ploše 10 m² a také sklep o velikosti 3 m². Parkování je možné na soukromém pozemku u domu.
Byt byl zkolaudován v roce 2009 a v roce 2016 prošel částečnou rekonstrukcí spodního patra. Právě zde se nachází srdce celého domova – prostorný obývací pokoj propojený s kuchyní, otevřená ložnice, šatna, vlastní koupelna a oddělená toaleta s technickou místností. Všechny prostory působí velmi příjemně a vzdušně. Vstupní chodba do bytu, která nabízí velkou šatnu a pohodlný přístup do obou pater bytu.
Díky novým dřevěným oknům s trojskly a předokenním žaluziím je byt nejen tichý, ale i velmi útulný. Dřevěná podlaha navozuje pocit tepla a domáckosti.
Horní patro nabízí čtyři samostatné ložnice, koupelnu s vanou a oddělenou toaletu. Tato část bytu zůstala v původním stavu a skýtá možnost případné budoucí modernizace dle vlastních představ.
Poloha domu je ideální pro každodenní život – v docházkové vzdálenosti je veškerá občanská vybavenost včetně škol, školek, obchodů i zdravotní péče. MHD je snadno dostupná (tramvajová zastávka Tylova, Královopolské nádraží), stejně jako rychlé napojení na městský okruh nebo silnici I/43.
Náklady na bydlení jsou nízké, což spolu s výjimečným prostorem dělá z tohoto bytu skvělou volbu nejen pro současnost, ale i budoucnost.
Pokud hledáte místo, kde se budete opravdu cítit jako doma, kde každý člen rodiny najde své zázemí a přitom budete mít na dosah všechno, co potřebujete – přijďte se podívat. Tento byt má svůj charakter, příběh a může být začátkem i toho vašeho.
Máte zájem o tento byt?
Inzerát si prohlédlo 14 lidí
 
                                Ing. Jan Kuděla
Chcete dostávat emailem podobné nabídky prodeje bytů 5+kk v Brně?