Prodej rodinného domu, Praha - Modřany, Nad soutokem, 105 m2

Nad soutokem, Praha 12, Praha 4, Modřany

16 900 000 Kč /za nemovitost HYPOTÉKA od 75 533 Kč /za měsíc

(vč. provize RK, právního servisu)

Prémioví partneři v Praze 4

Stěhovací služby

Výkup a prodej starého nábytku

Informace k domu

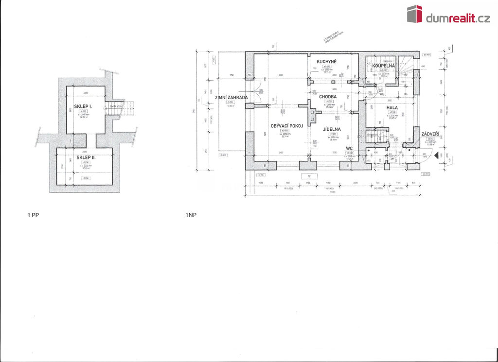
prodej rodinného domu 5+1, 105m², P4 Modřany, ul. Nad Soutokem, se zahradou 712 m², garáží 33m² a bazénem. Jedná se o polovinu dvojdomu. Dům je částečně podsklepený, v 1PP se nachází dva sklepy, dále v 1NP se nachází zádveří, toaleta, hala (se vstupem do sklepa a 2 NP), koupelna, kuchyň, chodba, jídelna a obývací pokoj (se vstupem do zimní zahrady). Ve 2NP se nachází chodba, koupelna, toaleta, čtyři ložnice (jedna se vstupem na terasu). Okna jsou převážně plastová, zasklená izolačním trojsklem. Na garáži je umístěno 54 fotovoltaických panelů o celkovém výkonu 4 kWp. Jednotka FVE je umístěna v 1 PP. Primárním zdrojem vytápění je tepelné čerpadlo vzduch – voda. Venkovní jednotka TČ je umístěna v 1NP. Vnitřní jednotka TČ je umístěna v podzemním podlaží. Sekundárním zdrojem vytápění je krbová vložka umístěna v 1NP. Ohřev TUV je zajištěn zásobníkem TUV v podzemním podlaží. Zásobník TUV je napojen na rozvody TČ a rovněž na 2x solární panel umístěné na střeše domu. Dům s příjemnou dispozicí je připraven k rekonstrukci. Na pozemku se nachází vrtaná studna, která je určena primárně pro zálivku zahrady, dále krytý bazén a skleník. Pozemek je mírně svažitý s jihozápadní orientací, vzrostlými stromy, keři (např. fíkovník, kiwi apod.) množstvím květin a nabízí klid a výjimečný pohled do okolí. Ulice je tichá, lokalita s množstvím zeleně, kompletní sítí služeb a vynikající dopravní dostupností (mj. nájezd na Pražský okruh). Atraktivní místo, doporučuji osobní prohlídku. Ev. číslo: 651587.

Parametry domu

Cena
16 900 000 Kč /za nemovitost Spočítat hypotéku
Poznámka k ceně
vč. provize RK, právního servisu
Aktualizováno
14. 11. 2025
Adresa
Nad soutokem, Praha 12, Praha 4, Modřany
ID
652201
Stavba
Cihlová
Stav objektu
Před rekonstrukcí
Typ objektu
Patrový
Druh objektu
Samostatný
Lokalita objektu
Klidná část obce
Užitná plocha
105 m2
Zastavěná plocha
105 m2
Podlahová plocha
105 m2
Plocha pozemku
850 m2
Třída energetické náročnosti
G - Mimořádně nehospodárná
Garáž
Sklep
Lodžie
Parkování
Bazén

Kontaktovat makléře

Máte zájem o tento dům?

Tímto, v souladu s nařízením Evropského parlamentu a Rady (EU) 2016/679, v platném znění, prohlašuji, že mi je alespoň 16 let a uděluji tak svůj souhlas se zpracováním zadaných údajů (jméno, telefon, e-mail, ip adresa) společnosti B3 Technology, s.r.o., IČ: 07330600, se sídlem Novostavby 126/23, 435 11 Lom (správce dat), za účelem předání dotazu z tohoto formuláře Vámi vybranému inzerentovi a zpětného kontaktování mé osoby. Osobní údaje bude správce zpracovávat manuálně i automaticky přímo prostřednictvím svých zaměstnanců. Informace předané tímto formulářem budou uloženy v databázi správce maximálně po dobu 10 let. Odvolání souhlasu s uložením a zpracováním poskytnutých dat lze e-mailem na info@videobydleni.cz. V případě podezření na neoprávněné použití Vámi poskytnutých údajů máte právo předat podnět k šetření Úřadu pro ochranu osobních údajů. Více informací
Chystáte se prodat nemovitost?
Pomůžeme Vám!

Inzerát si prohlédlo 9 lidí

Prodejce

Iveta Neumahrová

Iveta Neumahrová

Hlídací pes

Chcete dostávat emailem podobné nabídky prodeje rodinných domů v Praze 4?

Podobné nemovitosti


Nevyhovuje Vám typ domu? Podívejte se na jiné kategorie domů.


Vybrané články z našeho blogu