Remax Monarcha

Prodej rodinného domu, Olomouc, U panelárny, 134 m2 (ID: 4013937)

U panelárny, Olomouc

12 600 000 Kč /za nemovitost HYPOTÉKA od 56 314 Kč /za měsíc

(uvedená cena je včetně právních služeb a provize RK)

Prémioví partneři v Olomouci

Informace k domu

Byla zahájena výstavba 1. etapy RD Chválkovice, kde se již realizuje výstavba prvních šest moderních domů kompletně dokončených a připravených k nastěhování "na klíč".

Hledáte nový domov v krajském městě Olomouc s výbornou dopravní dostupností a občanskou vybaveností?

Představujeme Vám projekt nové výstavby 16 moderních rodinných domů v městské části Olomouc - Chválkovice. Projekt RD Chválkovice nabízí ideální kombinaci moderního bydlení s využitím zahrady, kterou si vytvoříte dle vlastních představ, a dvěma zastřešenými parkovacími stáními. Lokalita výstavby nových rodinných domů se nachází nedaleko přírody a možných sportovních aktivit ne jen podél řeky Bystřice.

Nových 16 stavebních pozemků nabízí různé celkové výměry od 260 m² do 554 m² a všechny shodně nabízejí zastavěnou plochu rodinného domu 128 m².

Vytápění všech domů bude zajištěné tepelnými čerpadly.

Konkrétně, tento nabízený stavební pozemek má výměru 260 m² a je v inzerovaném situačním plánku RD Chválkovice ,,NABÍDKA DOMŮ,, pracovně označen č. 2.

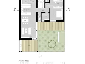
Jednopodlažní dům s obytným podkrovím o celkové užitné ploše 134,4 m² a dispozicí 5+kk je situovaný na rovinatém terénu. Dům se prodává postavený "na klíč". To zahrnuje základovou desku, hydroizolaci a tepelnou izolaci, stavbu z keramických pálených cihel o minimální tloušťce zdiva 440 mm včetně překladů a věnce, kompletní zastřešení pálenou keramickou taškou, klempířské prvky, hliníkové okenní rámy s trojsklem, dále oplocení, pergolu, finální fasádu, bílou omítkovinu a kompletní dřevěné prvky. Pro další informace ohledně standardů kontaktujte makléře nabídky. Vnitřní uspořádání je navrženo tak, aby charakter navrženého domu maximalizoval možnosti využití celého pozemku.

V přízemí domu se nachází zádveří (2,3 m²), šatna (2,9 m²), technická místnost /prádelna (3,1 m²), spíž/sklad (6,3 m²), prostor pro popelnici - odpad (1,3 m²), ložnice (13 m²), pracovna (11 m²), koupelna (5,2 m²), dále schodiště do podkroví domu s chodbou (4,8 m²), kuchyně (8 m²), jídelna (12 m²), obývací pokoj (17,9 m²), WC (2,1 m²), chodba (7,9 m²), krytá terasa (18,4 m²), terasa (19,9 m²). V podkroví domu se nachází chodba (4,1 m²), dva samostatné pokoje (12,2 m² a 13 m²) a koupelna s WC (7,3 m²). Vše najdete u projektu v kartě domu u projektu RD Chválkovice.

Uvedená cena zahrnuje pozemek včetně kompletně zrealizované stavby domu připraveného k nastěhování, právních služeb a provize RK.

Výstavba byla zahájena 3/2024. Plánované dokončení staveb v rámci první etapy šesti domů je v 1. polovině roku 2027. V rámci projektu pro vás připravujeme a rádi vám nabídneme zvýhodněné úvěrování, které je připravené tomuto projektu na míru naším finančním poradcem po konzultaci a upřesnění vstupních informací s jednotlivými zájemci o koupi.

Více informací získáte u prodejce projektu RD Chválkovice a následně na naší společné osobní schůzce. Prodávající si vyhrazuje právo vybrat kupujícího na základě jím zvolených kritérií.

Parametry domu

Cena
12 600 000 Kč /za nemovitost Spočítat hypotéku
Poznámka k ceně
uvedená cena je včetně právních služeb a provize RK
Aktualizováno
21. 4. 2026
Adresa
U panelárny, Olomouc
ID
160-NP02764
Stavba
Cihlová
Stav objektu
Projekt
Vybaveno
Ne
Typ objektu
Patrový
Druh objektu
Řadový
Lokalita objektu
Okraj obce
Užitná plocha
134 m2
Zastavěná plocha
128 m2
Plocha pozemku
260 m2
Plocha zahrady
70 m2
Třída energetické náročnosti
B - Velmi úsporná
Elektřina
230V, 400V
Odpad
Veřejná kanalizace
Komunikace
Asfaltová
Doprava
Vlak, Dálnice, Silnice, MHD, Autobus
Voda
Místní zdroj vody, Vodovod
Převod do OV
Parkování

Kontaktovat makléře

Realitní kancelář

Logo RE/MAX MONARCHA

RE/MAX MONARCHA

Masarykova třída 105/29, Olomouc

Chystáte se prodat nemovitost?
Pomůžeme Vám!

Máte zájem o tento dům?

Tímto, v souladu s nařízením Evropského parlamentu a Rady (EU) 2016/679, v platném znění, prohlašuji, že mi je alespoň 16 let a uděluji tak svůj souhlas se zpracováním zadaných údajů (jméno, telefon, e-mail, ip adresa) společnosti B3 Technology, s.r.o., IČ: 07330600, se sídlem Novostavby 126/23, 435 11 Lom (správce dat), za účelem předání dotazu z tohoto formuláře Vámi vybranému inzerentovi a zpětného kontaktování mé osoby. Osobní údaje bude správce zpracovávat manuálně i automaticky přímo prostřednictvím svých zaměstnanců. Informace předané tímto formulářem budou uloženy v databázi správce maximálně po dobu 10 let. Odvolání souhlasu s uložením a zpracováním poskytnutých dat lze e-mailem na info@videobydleni.cz. V případě podezření na neoprávněné použití Vámi poskytnutých údajů máte právo předat podnět k šetření Úřadu pro ochranu osobních údajů. Více informací
Chystáte se prodat nemovitost?
Pomůžeme Vám!

Inzerát si prohlédlo 27 lidí

Prodejce

Karel Pazdera

Karel Pazdera

Hlídací pes

Chcete dostávat emailem podobné nabídky prodeje rodinných domů v Olomouci?

Podobné nemovitosti


Nevyhovuje Vám typ domu? Podívejte se na jiné kategorie domů.


Vybrané články z našeho blogu