Prodej bytu 3+1, Praha - Lhotka, Novodvorská, 75 m2 (ID: 4059406)

Novodvorská, Praha 4

6 950 000 Kč /za nemovitost HYPOTÉKA od 31 062 Kč /za měsíc

(Cena včetně provize a právního servisu.)

Prémioví partneři v Praze 4

Stěhovací služby

Výkup a prodej starého nábytku

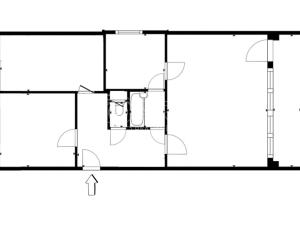
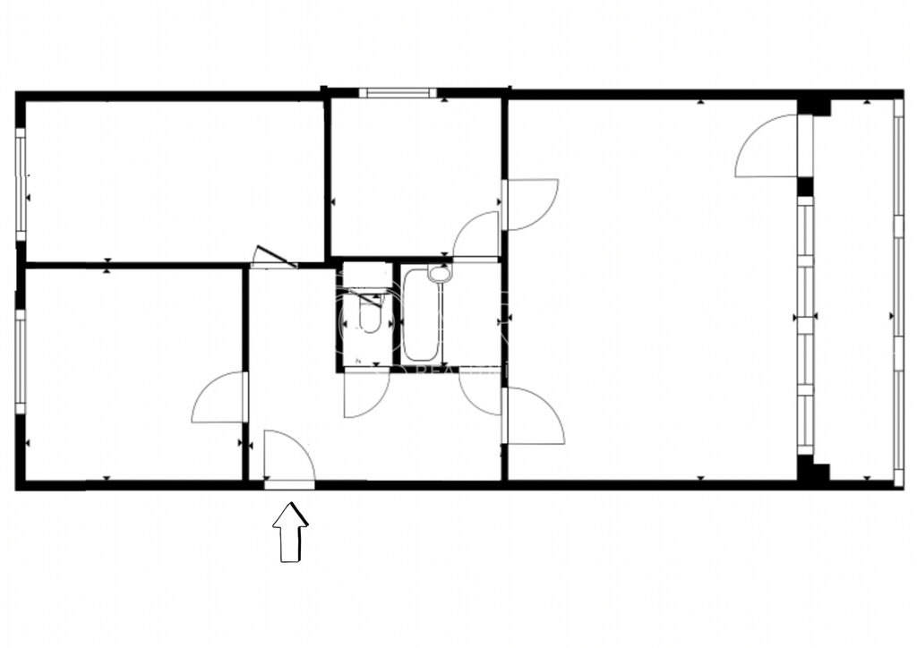
Informace k bytu

Byt 3+1 o velikosti 75 m² ve 3. patře revitalizovaného panelového domu nabízí velkorysý prostor a naprostou volnost při úpravách.
V bytě nenajdete žádné nosné příčky – všechny jsou z lehké konstrukce. Díky tomu můžete celou dispozici libovolně upravit, ať už chcete propojit kuchyň s obývákem, vytvořit další pokoj nebo zvětšit koupelnu.
Součástí bytu je lodžie o rozloze 6,96 m² přímo u obývacího pokoje a samostatná komora, která se nachází naproti vstupu do bytu – ideální na úložné prostory, sportovní vybavení nebo veškerých věcí, o které nechcete zakopávat v bytě.
Dům prochází postupnou revitalizací – má novou střechu, zateplení, nová okna, výtah a elektroinstalaci.
Lokalita:
Byt se nachází na Praze 4, ul. Novodvorská. Tato lokalita potěší především rodiny s dětmi - v docházkové vzdálenosti je koupaliště Lhotka, mateřská i základní škola, gymnázium, obchody (Albert, Penny) i zastávky MHD.
Další informace:
- Družstvo má naspořeno cca 820.000 Kč.
- Převod do OV se zatím neuvažuje, možnost financovat úvěrem pouze se zástavou jiné nemovitosti.
- Byt je ihned k dispozici, vyklizený a připravený na Vaší rekonstrukci.

Více informací naleznete ve videu a webové stránce nemovitosti.

Parametry bytu

Cena
6 950 000 Kč /za nemovitost Spočítat hypotéku
Poznámka k ceně
Cena včetně provize a právního servisu.
Aktualizováno
24. 10. 2025
Adresa
Novodvorská, Praha 4
ID
17464
Stavba
Panelová
Stav objektu
Před rekonstrukcí
Patro
4. z 8
Vybaveno
Ne
Vlastnictví
Družstevní
Užitná plocha
75 m2
Zastavěná plocha
241 m2
Podlahová plocha
75 m2
Třída energetické náročnosti
D - Méně úsporná
Elektřina
230V, 400V
Plyn
Plynovod
Odpad
Veřejná kanalizace
Komunikace
Betonová
Telekomunikace
Telefon, Internet
Voda
Vodovod
Sklep
Lodžie
Výtah
Převod do OV

Kontaktovat makléře

Realitní kancelář

Logo QARA, s.r.o.

QARA, s.r.o.

Šafaříkova 201/17, Praha

Chystáte se prodat nemovitost?
Pomůžeme Vám!

Máte zájem o tento byt?

Tímto, v souladu s nařízením Evropského parlamentu a Rady (EU) 2016/679, v platném znění, prohlašuji, že mi je alespoň 16 let a uděluji tak svůj souhlas se zpracováním zadaných údajů (jméno, telefon, e-mail, ip adresa) společnosti B3 Technology, s.r.o., IČ: 07330600, se sídlem Novostavby 126/23, 435 11 Lom (správce dat), za účelem předání dotazu z tohoto formuláře Vámi vybranému inzerentovi a zpětného kontaktování mé osoby. Osobní údaje bude správce zpracovávat manuálně i automaticky přímo prostřednictvím svých zaměstnanců. Informace předané tímto formulářem budou uloženy v databázi správce maximálně po dobu 10 let. Odvolání souhlasu s uložením a zpracováním poskytnutých dat lze e-mailem na info@videobydleni.cz. V případě podezření na neoprávněné použití Vámi poskytnutých údajů máte právo předat podnět k šetření Úřadu pro ochranu osobních údajů. Více informací
Chystáte se prodat nemovitost?
Pomůžeme Vám!

Inzerát si prohlédlo 59 lidí

Prodejce

Miroslav Unger

Miroslav Unger

Hlídací pes

Chcete dostávat emailem podobné nabídky prodeje bytů 3+1 v Praze 4?

Podobné nemovitosti


Nevyhovuje Vám typ bytu? Podívejte se na jiné kategorie bytů.


Vybrané články z našeho blogu