Prodej zemědělské usedlosti, Kojice, 218 m2

Kojice

4 599 031 Kč /za nemovitost HYPOTÉKA od 20 555 Kč /za měsíc

(Cena zahrnuje veškerý právní servis)

Prémioví partneři v Kojicích

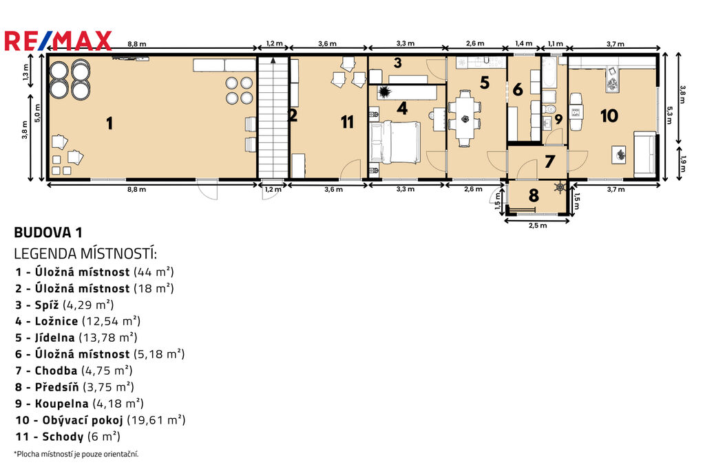
Informace k domu

Hledáte místo, kde se snoubí klid venkova, čisté ovzduší a potenciál pro bydlení, rekreaci i hospodaření?
Za výhodnou cenu můžete mít tradiční zemědělskou usedlost s velkým potenciálem přestavby v malebné obci Kojice, nedaleko řeky Labe a místních rybníků.

Na rozlehlém slunném pozemku o celkové výměře 2 446 m² se nachází dvě obytné budovy, prostorná stodola a samostatný sklípek ve svahu. Celá usedlost je obklopena úrodnou půdou a ovocným sadem, který poskytuje nejen krásné prostředí, ale i možnost vlastní úrody a chovu zvířat se zázemím.

Hlavní přednosti:
Dvě obytné budovy, první ihned obyvatelná s novou elektřinou a plynovým topením, vše s možností další rekonstrukce dle vlastních představ
Ideální prostředí a dostatek místa i pro chovná a domácí zvířata
Velké půdní prostory (165 m2+32 m2) vhodné k vestavbě či rozšíření obytné plochy
Stodola – ideální pro hospodářské využití, skladování nebo přestavbu na ateliér či dílnu
Vinný sklípek – autentický prvek s atmosférou, vhodný pro uchování vína či potravin i posezení s výhledem
Ovocný sad, zahrada a úrodná půda – možnost pěstování, zahradničení nebo drobného hospodaření
Vlastní studna – nezávislý zdroj vody, obecní přípojka vody u domu
Plyn a elektřina – kompletní inženýrské sítě zavedeny, internet vzduchem
Klidná lokalita s čistým ovzduším, ideální pro rodinný život i odpočinek

Obec Kojice leží v malebném prostředí Polabí, s výbornou dostupností autem (obchvat) i vlakem do Pardubic, Kolína i Prahy. Díky okolní přírodě, rybníkům a blízkosti Labe je to skvělé místo pro milovníky klidu, rybaření, myslivosti, cykloturistiky i procházky v přírodě. Potraviny, hřiště s hospodou, MŠ na místě, vše ostatní v blízkém okolí, viz web obce.

Možnosti využití:
Rodinné bydlení s velkou zahradou a hospodářským zázemím pro zvířata
Rekreační usedlost pro víkendové pobyty a odpočinek
Investiční příležitost – přestavba na penzion, agroturistiku, vícegenerační bydlení nebo jiný druh podnikání

Tato usedlost v Kojicích nabízí jedinečnou kombinaci tradiční atmosféry, velkého pozemku a širokých možností využití. Je ideální pro ty, kteří hledají klidné místo k životu, chtějí hospodařit, nebo hledají zajímavou investici s potenciálem - viz také vizualizace mezi fotkami...

Nenechte si uniknout tuto unikátní příležitost!
S případnou hypotékou vám rádi pomůžeme
Pište či volejte pro více informací a termín prohlídky.
Díky a budu se těšit

Parametry domu

Cena
4 599 031 Kč /za nemovitost Spočítat hypotéku
Poznámka k ceně
Cena zahrnuje veškerý právní servis
Aktualizováno
18. 11. 2025
Adresa
Kojice
ID
285-NP00308
Stavba
Smíšená
Stav objektu
Před rekonstrukcí
Vybaveno
Ne
Typ objektu
Patrový
Druh objektu
Samostatný
Lokalita objektu
Okraj obce
Užitná plocha
218 m2
Zastavěná plocha
218 m2
Plocha pozemku
2446 m2
Elektřina
230V, 400V
Plyn
Plynovod
Odpad
Septik
Komunikace
Asfaltová
Telekomunikace
Internet, Satelit
Doprava
Vlak, Dálnice, Silnice, Autobus
Voda
Studna
Garáž
Převod do OV
Parkování

Kontaktovat makléře

Máte zájem o tento dům?

Tímto, v souladu s nařízením Evropského parlamentu a Rady (EU) 2016/679, v platném znění, prohlašuji, že mi je alespoň 16 let a uděluji tak svůj souhlas se zpracováním zadaných údajů (jméno, telefon, e-mail, ip adresa) společnosti B3 Technology, s.r.o., IČ: 07330600, se sídlem Novostavby 126/23, 435 11 Lom (správce dat), za účelem předání dotazu z tohoto formuláře Vámi vybranému inzerentovi a zpětného kontaktování mé osoby. Osobní údaje bude správce zpracovávat manuálně i automaticky přímo prostřednictvím svých zaměstnanců. Informace předané tímto formulářem budou uloženy v databázi správce maximálně po dobu 10 let. Odvolání souhlasu s uložením a zpracováním poskytnutých dat lze e-mailem na info@videobydleni.cz. V případě podezření na neoprávněné použití Vámi poskytnutých údajů máte právo předat podnět k šetření Úřadu pro ochranu osobních údajů. Více informací
Chystáte se prodat nemovitost?
Pomůžeme Vám!

Inzerát si prohlédlo 15 lidí

Prodejce

Bc. Petr Kubášek

Bc. Petr Kubášek

Hlídací pes

Chcete dostávat emailem podobné nabídky prodeje zemědělských usedlostí v Kojicích?

Podobné nemovitosti


Nevyhovuje Vám typ domu? Podívejte se na jiné kategorie domů.


Vybrané články z našeho blogu