Prodej restaurace, Ústí nad Labem, Pod Parkem, 82 m2 (ID: 4078036)

Pod Parkem, Ústí nad Labem

4 499 000 Kč /za nemovitost HYPOTÉKA od 20 108 Kč /za měsíc
Prémioví partneři v Ústí nad Labem

Okna a dveře

Informace k nemovitosti

Na prodej: Zavedený bar s více jak dvacetiletou tradicí – Severní Terasa, Ústí nad Labem.

V zastoupení majitele Vám nabízíme investiční příležitost v žádané lokalitě. Nabízíme k prodeji plně vybavený bar, který je připraven k okamžitému provozu. Objekt je kolaudován pro provoz bar/pivnice a nachází se v městské části sídliště Severní Terasa s výbornou dopravní dostupností.

Dispozice a vybavení:
• Dvě hlavní místnosti s působivým dřevěným obložením
• Zázemí pro bar, personální část, dámské a pánské toalety
• Elektrokotel s rozvodem do radiátorů + klimatizace
• Ohřev vody zajišťuje boiler
• Bezbariérový vstup z veřejného prostoru – objekt je v úrovni terénu
• Kapacita až 30 - 45 hostů
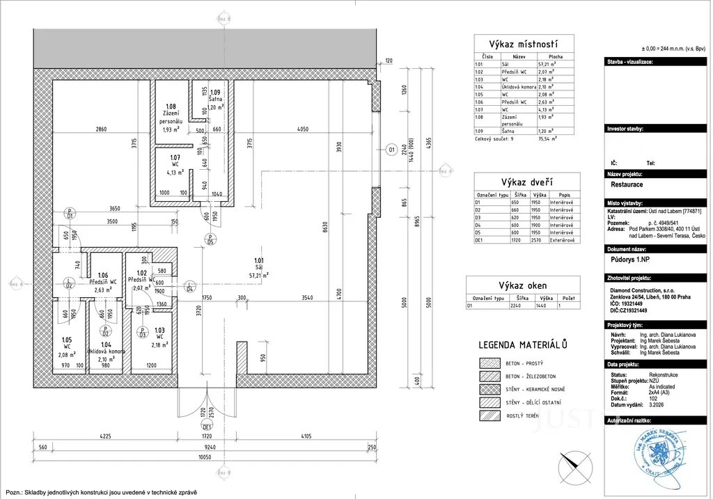
• Půdorysy k dispozici ve fotogalerii

Součástí prodeje:
• Kompletní vybavení a provozní technologie
• Zavedený provoz s více jak 20letou historií a klientelou

Bar je stále v provozu. Stačí převzít klíče a pokračovat v podnikání!

Nemovitost je v dobrém stavu a bez nutných investic. Střecha je opravena v roce 2023 a zcela je oplocena a uzavřena.

Neváhejte nás kontaktovat pro více informací nebo sjednání prohlídky.

Tato nabídka je ideální pro podnikatele, kteří chtějí navázat na provoz v atraktivní lokalitě.

Chcete se přijít podívat? Přijďte se podívat na prohlídkový den, dne 3.2.2026 v čase od 12h - 15h. Prohlídka je možná po předchozí domluvě.

Parametry nemovitosti

Cena
4 499 000 Kč /za nemovitost Spočítat hypotéku
Aktualizováno
7. 4. 2026
Adresa
Pod Parkem, Ústí nad Labem
ID
J11107
Stavba
Panelová
Stav objektu
Dobrý
Patro
1.
Vybaveno
Ano
Typ objektu
Přízemní
Druh objektu
V bloku
Lokalita objektu
Sídliště
Vlastnictví
Osobní
Užitná plocha
82 m2
Podlahová plocha
93 m2
Třída energetické náročnosti
G - Mimořádně nehospodárná
Ukazatel energetické náročnosti
413 kWh/m2 za rok
Elektřina
230V
Odpad
Veřejná kanalizace
Topení
Lokální elektrické, Ústřední elektrické
Komunikace
Asfaltová
Doprava
Silnice, MHD, Autobus
Voda
Vodovod
Topné těleso
Radiátory, Přímotop
Zdroj topení
Elektrokotel
Bezbarierový přístup
Parkování

Kontaktovat makléře

Realitní kancelář

Logo JUSTO Česká republika

JUSTO Česká republika

Korunní 2569/108, Vinohrady, Praha

Chystáte se prodat nemovitost?
Pomůžeme Vám!

Máte zájem o tuto nemovistost?

Tímto, v souladu s nařízením Evropského parlamentu a Rady (EU) 2016/679, v platném znění, prohlašuji, že mi je alespoň 16 let a uděluji tak svůj souhlas se zpracováním zadaných údajů (jméno, telefon, e-mail, ip adresa) společnosti B3 Technology, s.r.o., IČ: 07330600, se sídlem Novostavby 126/23, 435 11 Lom (správce dat), za účelem předání dotazu z tohoto formuláře Vámi vybranému inzerentovi a zpětného kontaktování mé osoby. Osobní údaje bude správce zpracovávat manuálně i automaticky přímo prostřednictvím svých zaměstnanců. Informace předané tímto formulářem budou uloženy v databázi správce maximálně po dobu 10 let. Odvolání souhlasu s uložením a zpracováním poskytnutých dat lze e-mailem na info@videobydleni.cz. V případě podezření na neoprávněné použití Vámi poskytnutých údajů máte právo předat podnět k šetření Úřadu pro ochranu osobních údajů. Více informací
Chystáte se prodat nemovitost?
Pomůžeme Vám!

Inzerát si prohlédlo 49 lidí

Prodejce

Pavel Hoferica

Pavel Hoferica

Hlídací pes

Chcete dostávat emailem podobné nabídky prodeje restaurací v Ústí nad Labem?

Podobné nemovitosti


Nevyhovuje Vám typ nemovitosti? Podívejte se na jiné kategorie komerčních.


Vybrané články z našeho blogu