Prodej rodinného domu, Žernov, 220 m2 (ID: 4080552)

Žernov

6 900 000 Kč /za nemovitost HYPOTÉKA od 30 839 Kč /za měsíc
Prémioví partneři v Žernově

Informace k domu

Nabízíme k prodeji jedinečný soubor nemovitostí v obci Žernov, který spojuje kouzlo venkovského života s praktickými možnostmi pro moderní bydlení, podnikání nebo rekreační využití.
Součástí komplexu je:
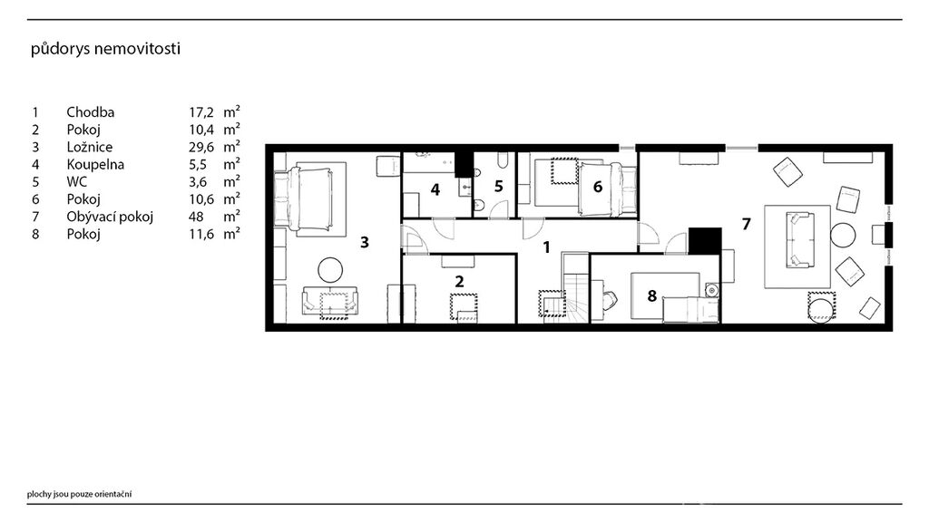
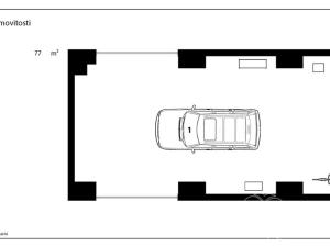
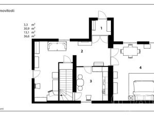
- Rodinný dům 6+1 o užitné ploše 220 m2
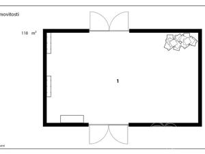
- Prostorná stodola
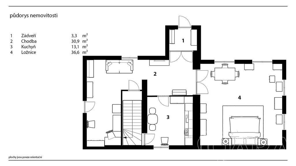
- Další hospodářská stavení
- Pozemek o celkové výměře 1.828 m2
Dům je po rekonstrukci k okamžitému užívání.
Možnosti ostatních staveb a pozemku dávají prostor k chovu domácích zvířat i k možnostem podnikání.
Lokalita je oceňována jako atraktivní, s dobrou dostupností do Náchoda 7 km (kde je momentálně dálnice ve výstavbě), České Skalice a přehradě Rozkoš a Červeného Kostelce.
Obec se nachází v krásné přírodní krajině na vyvýšenině nad řekou Úpa a Babiččiným údolím Ratibořice. Skvělá volba zdravého životního stylu.
Pro více informací volejte makléře.
Na prohlídkách se na vás budeme těšit.

Parametry domu

Cena
6 900 000 Kč /za nemovitost Spočítat hypotéku
Aktualizováno
25. 10. 2025
Adresa
Žernov
ID
17034
Stavba
Smíšená
Stav objektu
Dobrý
Vybaveno
Ano
Druh objektu
Samostatný
Lokalita objektu
Centrum obce
Užitná plocha
220 m2
Zastavěná plocha
174 m2
Plocha pozemku
1828 m2
Třída energetické náročnosti
G - Mimořádně nehospodárná
Odpad
Trativod
Komunikace
Asfaltová
Doprava
Silnice, Autobus
Voda
Vodovod
Topné těleso
Přímotop, Krbová kamna
Sklep
Parkování

Kontaktovat makléře

Máte zájem o tento dům?

Tímto, v souladu s nařízením Evropského parlamentu a Rady (EU) 2016/679, v platném znění, prohlašuji, že mi je alespoň 16 let a uděluji tak svůj souhlas se zpracováním zadaných údajů (jméno, telefon, e-mail, ip adresa) společnosti B3 Technology, s.r.o., IČ: 07330600, se sídlem Novostavby 126/23, 435 11 Lom (správce dat), za účelem předání dotazu z tohoto formuláře Vámi vybranému inzerentovi a zpětného kontaktování mé osoby. Osobní údaje bude správce zpracovávat manuálně i automaticky přímo prostřednictvím svých zaměstnanců. Informace předané tímto formulářem budou uloženy v databázi správce maximálně po dobu 10 let. Odvolání souhlasu s uložením a zpracováním poskytnutých dat lze e-mailem na info@videobydleni.cz. V případě podezření na neoprávněné použití Vámi poskytnutých údajů máte právo předat podnět k šetření Úřadu pro ochranu osobních údajů. Více informací
Chystáte se prodat nemovitost?
Pomůžeme Vám!

Inzerát si prohlédlo 5 lidí

Prodejce

Jana Štěpánová

Jana Štěpánová

Hlídací pes

Chcete dostávat emailem podobné nabídky prodeje rodinných domů v Žernově (okr. Náchod)?

Podobné nemovitosti


Nevyhovuje Vám typ domu? Podívejte se na jiné kategorie domů.


Vybrané články z našeho blogu