Prodej domu na klíč, Liteň, Pacovského, 143 m2

Pacovského, Liteň

8 750 000 Kč /za nemovitost HYPOTÉKA od 39 107 Kč /za měsíc

(dokončení domu na klíč není zahrnuto v ceně)

Prémioví partneři v Litni

Informace k domu

Klidná lokalita, moderní technologie a okolní příroda to vše nabízí tato novostavba rodinného domu v městysi Liteň. Dům je aktuálně ve fázi dokončené hrubé stavby, takže si ho můžete dokončit přesně podle svých představ.

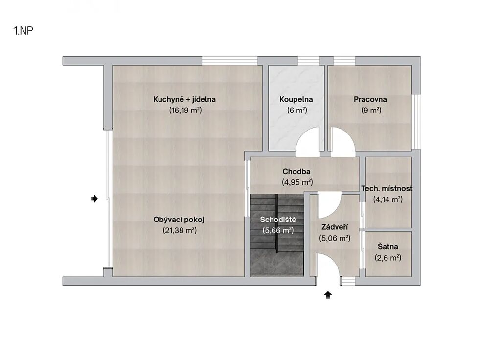
Nabízíme Vám moderní rodinný dům v městysi Liteň (okres Beroun), který je ve fázi dokončené hrubé stavby. Tento dvoupodlažní dům (přízemí + podkroví) je postaven z kvalitního zdicího systému Porotherm a má celkovou zastavěnou plochu 110 m2 s celkovou užitnou plochu 146 m2. Vytápění je navrženo jako teplovodní podlahové topení s využitím tepelného čerpadla, což zaručí komfortní teplo a nízké provozní náklady. Dům je napojen na veřejný vodovod, kanalizaci i elektřinu; navíc je připraven rozvod pro využití dešťové vody například na zalévání zahrady. Budoucí majitel ocení také energetickou úspornost budovy dům spadá do energetické třídy B. Dokončení interiérů a fasád lze zajistit na klíč osvědčenou stavební firmou, takže nové bydlení si můžete dotvořit přesně podle svých představ a bez starostí, předpokládaný náklad na dokončení je 2,5 mil až 3.0 mil.

Dům se nachází na pozemku o výměře 451 m2 v klidné okrajové části Litně, na konci slepé ulice. Tato poloha poskytuje maximální klid, soukromí a minimum provozu ideální prostředí pro rodinné bydlení. Městys Liteň má charakter příjemné menší obce obklopené zelení. Můžete relaxovat na zahradě, pořádat grilování nebo vytvořit dětské hřiště zahrada nabízí dostatek prostoru pro volný čas i zahradničení. Díky připravenému systému pro zachytávání dešťovky bude péče o zeleň ekonomická a ekologická. Užijete si zde kombinaci venkovského klidu a zároveň blízkosti potřebných služeb.

Liteň je městys v okrese Beroun s přibližně 1 300 obyvateli, který nabízí veškerou základní občanskou vybavenost pro pohodlný život. Přímo v obci se nachází mateřská škola a devítiletá základní škola (1.9. třída) ideální pro rodiny s dětmi. Nechybí zde ani základní zdravotní péče: ordinace dětského lékaře, praktického lékaře pro dospělé a také zubní ordinace. Pro denní nákupy a služby je k dispozici několik obchodů a provozoven. Namátkou uvádíme:
Obchody a služby: tři prodejny potravin, obchod s dalším smíšeným zbožím, květinářství, kadeřnictví, pošta a čerpací stanice.
Stravování: dvě příjemné hospody (restaurace) v obci.
Další služby: obecní knihovna a kino v místním kulturním domě (pravidelné sobotní promítání), Muzeum Svatopluka Čecha a Jarmily Novotné ve faře, a také řada aktivních spolků.

Liteň má výborné dopravní spojení jak individuální, tak hromadnou dopravou. Několik autobusových linek zajišťuje pravidelné spojení obce s nedalekým Berounem (v Litni se nachází celkem 5 autobusových zastávek). Přímo přes Liteň vede také lokální železniční trať (LochoviceZadní Třebaň), která se v Zadní Třebani napojuje na hlavní dvoukolejnou trať BerounPraha. Vlakem se tak pohodlně dostanete až do Prahy (ve špičce jezdí přímé spoje ze Zadní Třebaně v krátkých intervalech). Autem je Liteň snadno dostupná do centra Prahy je to cca 42 km a do okresního města Beroun asi 15 km.

Liteň žije bohatým kulturním a sportovním životem. Působí zde fotbalový klub a jednota Sokol Liteň, kteří se starají o sportovní vyžití mládeže i dospělých[9]. Aktivní jsou také různé spolky (zahrádkáři, včelaři, myslivci aj.), jež pořádají během roku pestré akce pro veřejnost. V roce 1989 byl otevřen moderní kulturní dům s knihovnou a kinem, které promítá jednou týdně[5]. Návštěvníky i místní potěší Muzeum Svatopluka Čecha a Jarmily Novotné v budově fary[6], připomínající odkaz slavného spisovatele a operní pěvkyně spjatých s Litní. Nechybí ani historické památky přímo v obci stojí barokní zámek s parkem (aktuálně nepřístupný veřejnosti) a gotický kostel sv. Petra a Pavla.

Okolí obce je doslova rájem pro milovníky přírody a výletů. Liteň leží částečně na území Chráněné krajinné oblasti Český kras, takže je obklopena malebnou krajinou vápencových kopců, luk a lesů s jedinečnou flórou i faunou. Pouhých 4,5 km odtud se nachází světoznámý hrad Karlštejn impozantní dominanta kraje a oblíbený cíl výletníků. Přímo přes Liteň prochází turistická trasa spojující Koněpruské jeskyně a Karlštejn, takže na výlet se můžete vydat doslova od prahu domu. V blízkém okolí lákají také unikátní zatopené vápencové lomy Velká Amerika a další Ameriky nedaleko Mořiny s tyrkysově čistou vodou patří k nejkrásnějším přírodním zajímavostem regionu. Ať už dáváte přednost sportu, turistice nebo poznávání historie, v Litni a okolí vždy najdete vhodnou příležitost k aktivnímu odpočinku.

Parametry domu

Cena
8 750 000 Kč /za nemovitost Spočítat hypotéku
Poznámka k ceně
dokončení domu na klíč není zahrnuto v ceně
Aktualizováno
8. 12. 2025
Adresa
Pacovského, Liteň
ID
DDR252
Stavba
Cihlová
Stav objektu
Novostavba
Druh objektu
Samostatný
Užitná plocha
143 m2
Zastavěná plocha
110 m2
Podlahová plocha
143 m2
Plocha pozemku
451 m2
Plocha zahrady
341 m2
Třída energetické náročnosti
B - Velmi úsporná
Ukazatel energetické náročnosti
58 kWh/m2 za rok
Elektřina
120V, 400V
Topení
Ústřední elektrické
Komunikace
Zpevněná
Doprava
Vlak, Silnice, Autobus
Voda
Místní zdroj vody, Retenční nádrž na dešt’ovou vodu
Topné těleso
Podlahové vytápění, Krb
Zdroj topení
Tepelné čerpadlo
Zdroj teplé vody
Tepelné čerpadlo
Bezbarierový přístup

Kontaktovat makléře

Realitní kancelář

D&D reality

K Třešňovce 1091, Karlík

Chystáte se prodat nemovitost?
Pomůžeme Vám!

Máte zájem o tento dům?

Tímto, v souladu s nařízením Evropského parlamentu a Rady (EU) 2016/679, v platném znění, prohlašuji, že mi je alespoň 16 let a uděluji tak svůj souhlas se zpracováním zadaných údajů (jméno, telefon, e-mail, ip adresa) společnosti B3 Technology, s.r.o., IČ: 07330600, se sídlem Novostavby 126/23, 435 11 Lom (správce dat), za účelem předání dotazu z tohoto formuláře Vámi vybranému inzerentovi a zpětného kontaktování mé osoby. Osobní údaje bude správce zpracovávat manuálně i automaticky přímo prostřednictvím svých zaměstnanců. Informace předané tímto formulářem budou uloženy v databázi správce maximálně po dobu 10 let. Odvolání souhlasu s uložením a zpracováním poskytnutých dat lze e-mailem na info@videobydleni.cz. V případě podezření na neoprávněné použití Vámi poskytnutých údajů máte právo předat podnět k šetření Úřadu pro ochranu osobních údajů. Více informací
Chystáte se prodat nemovitost?
Pomůžeme Vám!

Inzerát si prohlédlo 14 lidí

Prodejce

Dvořák Petr

Dvořák Petr

Hlídací pes

Chcete dostávat emailem podobné nabídky prodeje domů na klíč v Litni?


Nevyhovuje Vám typ domu? Podívejte se na jiné kategorie domů.


Vybrané články z našeho blogu