Pronájem bytu 2+kk, České Budějovice, 28 m2 (ID: 4086019)

České Budějovice 2

14 200 Kč /za měsíc Získejte výhodnou HYPOTÉKU
Prémioví partneři v Českých Budějovicích

Informace k bytu

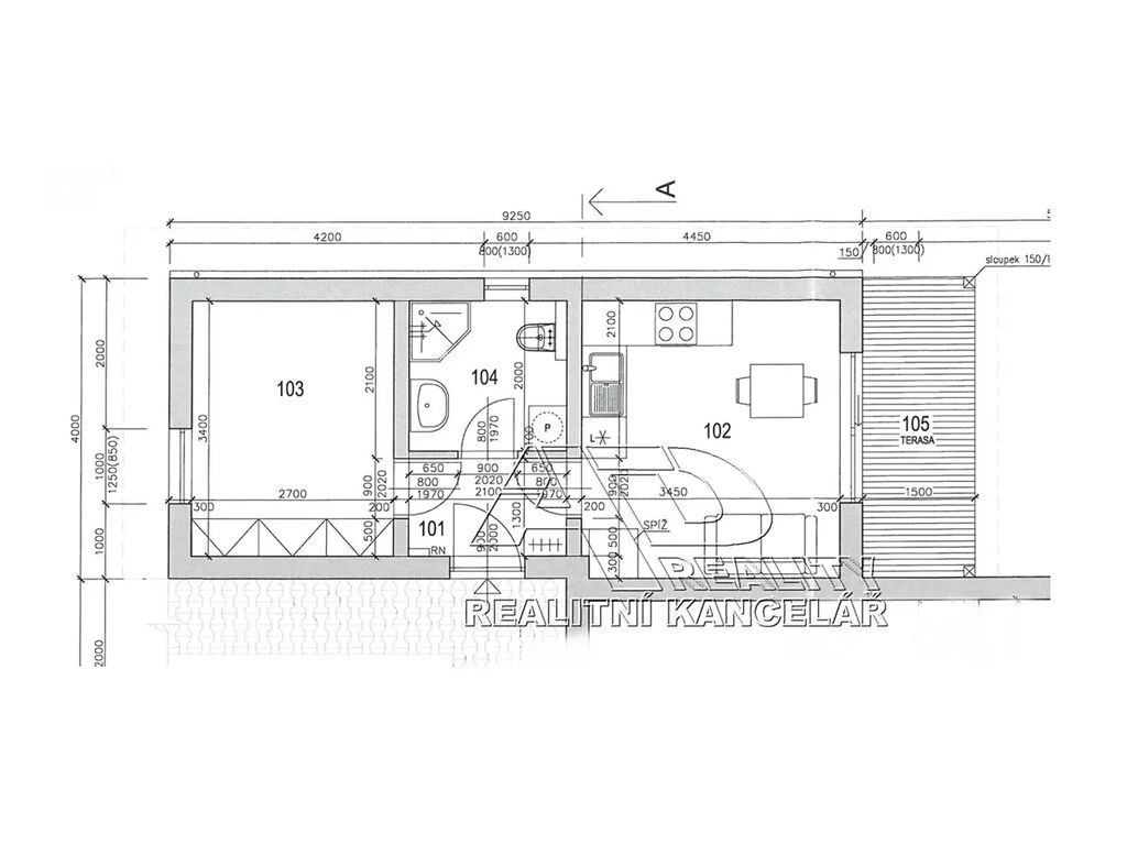
Nabízíme k pronájmu novostavbu (2022) bytu velikosti 2+kk s terasou , v lokalitě Čtyři Dvory v Českých Budějovicích.
Byt je součástí menšího rodinného domu (pouze 2 byty), má samostatný vstup, se druhým bytem společný pouze vjezd na pozemek.
Byt je minimálně užívanou novostavbou dřevostavby (kolaudace 2022), nadstandardně vybavenou v perfektním stavu. Byt je k dispozici se základním vybavením, základní vybavení nábytkem. K dispozici kuchyňská linka včetně zabudovaných spotřebičů.
Celková plocha bytu 35m2, podlahová plocha [28m2] + terasa [7m2].
Dispozice: předsíň [3.1m2], obytná kuchyně [12m2] s přístupem na terasu, ložnice / pokoj [9.2m2] a koupelna/WC [3.8m2]. Orientace obýváku / terasy na jih do zahrady, ložnice na sever.
Terasa je přístupná z obytné místnosti přes velké francouzské okno a je orientována na jih do menší komorní vzrostlé (zatravněné) zahrady a je předurčena k relaxaci a odpočinku.
Vybavení bytu: kuchyňská linka tvaru „L“ včetně vestavěných spotřebičů (sklokeramická varná deska (indukce), horkovzdušná trouba, myčka nádobí, digestoř, lednice s mrazákem), spížní skříň. V obývacím pokoji pohovka a konferenční stolek. V koupelně sprchový kout s prosklenou zástěnou, závěsné WC, umyvadlo vč. koupelnového nábytku, přípojka pračky. Vytápění bytu v kombinaci s klimatizací napájené tepelným čerpadlem, podlahové topení v koupelně a předsíni, ohřev TUV elektrický boiler, samostatné měření spotřeby studené vody (vodoměr) a elektřiny (elektroměr). V bytě je možno připojit internet (Starnet), TV-STA. S pronájmem uvedené bytu souvisí i pronájem 1x parkovacího místa pro osobní automobil na uzavřeném dlážděném pozemku před domem.
Občanská vybavenost a Parkování: Veškerá občanská vybavenost včetně MHD je v těsné blízkosti. Parkování před domem. Vzdálenost do centra (náměstí) 30min pěšky.
Energetická náročnost budovy – [A].
Požadavky / preference majitele bytu: Byt je vhodný pro bydlení max. 2 osob (max. 2 dospělí, bez dětí, nekuřáci, bez domácích mazlíčků. Majitel bytu si vyhrazuje právo výběru nájemce na základě jím zvolených kritérií!
Byt je k dispozici: od listopad_2025 – byt je určen ke dlouhodobému pronájmu.
Nájemné: 14.200,-Kč/MĚS + ENergie a služby | záloha na byt cca 2.500,-Kč až 3.000,-Kč/měs – podle počtu osob.
Bytová Jistina / Kauce: 30.000,-Kč |vratná při ukončení nájmu.
Provize RK: za zprostředkování pronájmu a sepsání nájemní smlouvy: 15.500,-Kč.
Pro bližší informace a termíny prohlídky volejte makléře tel. +420 602 557 912.
Zakázka výhradně v nabídce realitní kanceláře AD-reality České Budějovice.

Parametry bytu

Cena
14 200 Kč /za měsíc
Náklady na bydlení
2.500,-Kč až 3.000,-Kč/měs - podle počtu osob
Aktualizováno
25. 10. 2025
Adresa
České Budějovice 2
ID
AD-2738-2025
Stavba
Dřevěná
Stav objektu
Novostavba
Patro
1.
Vybaveno
Částečně
Lokalita objektu
Klidná část obce
Vlastnictví
Osobní
Užitná plocha
28 m2
Podlahová plocha
35 m2
Třída energetické náročnosti
A - Mimořádně úsporná
Elektřina
230V
Odpad
Veřejná kanalizace
Komunikace
Dlážděná
Doprava
MHD
Voda
Vodovod
Topné těleso
Podlahové vytápění, Klimatizace
Zdroj topení
Tepelné čerpadlo
Zdroj teplé vody
Tepelné čerpadlo
Terasa

Kontaktovat makléře

Realitní kancelář

AD reality CB

Dr. Stejskala 108/7, České Budějovice

Chystáte se prodat nemovitost?
Pomůžeme Vám!

Máte zájem o tento byt?

Tímto, v souladu s nařízením Evropského parlamentu a Rady (EU) 2016/679, v platném znění, prohlašuji, že mi je alespoň 16 let a uděluji tak svůj souhlas se zpracováním zadaných údajů (jméno, telefon, e-mail, ip adresa) společnosti B3 Technology, s.r.o., IČ: 07330600, se sídlem Novostavby 126/23, 435 11 Lom (správce dat), za účelem předání dotazu z tohoto formuláře Vámi vybranému inzerentovi a zpětného kontaktování mé osoby. Osobní údaje bude správce zpracovávat manuálně i automaticky přímo prostřednictvím svých zaměstnanců. Informace předané tímto formulářem budou uloženy v databázi správce maximálně po dobu 10 let. Odvolání souhlasu s uložením a zpracováním poskytnutých dat lze e-mailem na info@videobydleni.cz. V případě podezření na neoprávněné použití Vámi poskytnutých údajů máte právo předat podnět k šetření Úřadu pro ochranu osobních údajů. Více informací
Chystáte se prodat nemovitost?
Pomůžeme Vám!

Inzerát si prohlédlo 1 lidí

Prodejce

Václava Drábová

Václava Drábová

Hlídací pes

Chcete dostávat emailem podobné nabídky pronájmu bytů 2+kk v Českých Budějovicích?

Podobné nemovitosti


Nevyhovuje Vám typ bytu? Podívejte se na jiné kategorie bytů.


Vybrané články z našeho blogu