Prodej rodinného domu, Podolí I, 111 m2 (ID: 4096577)

Podolí I

8 300 000 Kč /za nemovitost HYPOTÉKA od 37 096 Kč /za měsíc
Prémioví partneři v Podolí I

Výkup a prodej starého nábytku

Informace k domu

Hledáte nový domov, kde se snoubí klid, komfort a moderní styl? Nabízíme k prodeji atraktivní přízemní bungalov 4+kk o celkové ploše 138 m² v malebné obci Podolí I, pouhých 10 minut od Písku. Dům je ideální volbou pro rodinu, která chce bydlet v novostavbě bez starostí, s velkým pozemkem a nízkými provozními náklady.

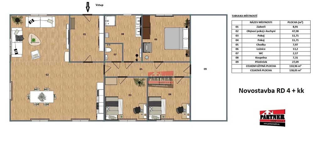
Tento světlý a útulný bungalov nabízí promyšlenou dispozici – prostorné zádveří, velký obývací pokoj s kuchyňským koutem a přímým vstupem na terasu, tři samostatné pokoje, koupelnu se sprchovým koutem, samostatné WC a chodbu s druhým vstupem do domu. Kvalitní vinylové podlahy podtrhují moderní a příjemnou atmosféru interiéru. K domu náleží přístřešek (27 m²), zahradní domek (19 m²) a rozlehlý pozemek o velikosti 1 404 m², který je kompletně oplocený a opatřený elektrickou vjezdovou bránou.

Dům je napojen na vodovod i kanalizaci, vytápění a ohřev vody zajišťuje tepelné čerpadlo, připraven je také komín pro krbová kamna. Energetická třída B zaručuje nízké provozní náklady a úsporný provoz.

Podolí I je vyhledávaná lokalita obklopená přírodou s výbornou dostupností do Písku, ideální pro rodiny s dětmi, sportovce i všechny, kdo hledají klidné a bezpečné bydlení blízko města, ale s dostatkem soukromí a prostoru.

Dům lze financovat hypotečním úvěrem – nabízíme také pomoc se zajištěním výhodného financování na míru.

V případě zájmu o bližší informace nebo sjednání prohlídky nás neváhejte kontaktovat – budeme se těšit na osobní setkání a rádi vám tuto nemovitost osobně ukážeme.

Parametry domu

Cena
8 300 000 Kč /za nemovitost Spočítat hypotéku
Aktualizováno
18. 12. 2025
Adresa
Podolí I
ID
592025
Stavba
Cihlová
Stav objektu
Novostavba
Druh objektu
Samostatný
Lokalita objektu
Okraj obce
Užitná plocha
111 m2
Zastavěná plocha
168 m2
Podlahová plocha
138 m2
Plocha pozemku
1404 m2
Plocha zahrady
1217 m2
Třída energetické náročnosti
B - Velmi úsporná
Odpad
Veřejná kanalizace
Topení
Podlahové
Komunikace
Zpevněná
Doprava
Silnice
Voda
Vodovod
Topné těleso
Podlahové vytápění
Zdroj topení
Tepelné čerpadlo
Zdroj teplé vody
Tepelné čerpadlo
Výtah
Bezbarierový přístup

Kontaktovat makléře

Máte zájem o tento dům?

Tímto, v souladu s nařízením Evropského parlamentu a Rady (EU) 2016/679, v platném znění, prohlašuji, že mi je alespoň 16 let a uděluji tak svůj souhlas se zpracováním zadaných údajů (jméno, telefon, e-mail, ip adresa) společnosti B3 Technology, s.r.o., IČ: 07330600, se sídlem Novostavby 126/23, 435 11 Lom (správce dat), za účelem předání dotazu z tohoto formuláře Vámi vybranému inzerentovi a zpětného kontaktování mé osoby. Osobní údaje bude správce zpracovávat manuálně i automaticky přímo prostřednictvím svých zaměstnanců. Informace předané tímto formulářem budou uloženy v databázi správce maximálně po dobu 10 let. Odvolání souhlasu s uložením a zpracováním poskytnutých dat lze e-mailem na info@videobydleni.cz. V případě podezření na neoprávněné použití Vámi poskytnutých údajů máte právo předat podnět k šetření Úřadu pro ochranu osobních údajů. Více informací
Chystáte se prodat nemovitost?
Pomůžeme Vám!

Inzerát si prohlédlo 7 lidí

Prodejce

Petra Smetanová

Petra Smetanová

Hlídací pes

Chcete dostávat emailem podobné nabídky prodeje rodinných domů v Podolí I?

Podobné nemovitosti


Nevyhovuje Vám typ domu? Podívejte se na jiné kategorie domů.


Vybrané články z našeho blogu