Prodej rodinného domu, Podolí I, 111 m2 (ID: 4127020)

Podolí I

7 990 000 Kč /za nemovitost HYPOTÉKA od 35 710 Kč /za měsíc
Prémioví partneři v Podolí I

Výkup a prodej starého nábytku

Informace k domu

Nabízíme k prodeji krásný přízemní bungalov v malebné obci Podolí I, pouhých pár minut od Písku. Tato novostavba rodinného domu o dispozici 4+kk splní představy i náročnějších zájemců hledajících komfortní bydlení v klidném prostředí s vynikající dostupností.

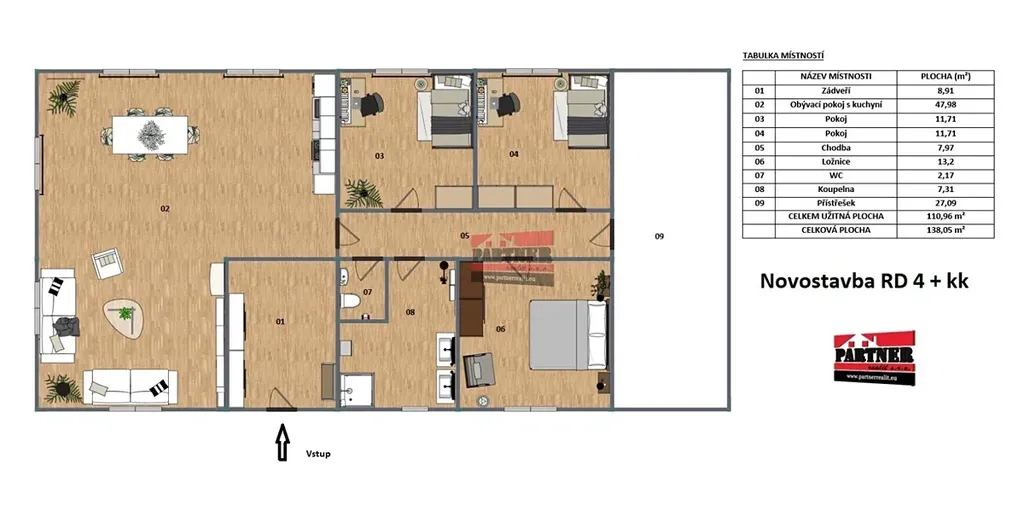
Dům nabízí celkovou plochu 138,08 m². Dispozice je prakticky řešená: prostorné zádveří (8,91 m²), světlý obývací pokoj s kuchyňským koutem (47,98 m²) a přímým vstupem na terasu, tři samostatné pokoje (11,71 m², 11,71 m² a 13,2 m²), praktická chodba (7,97 m²) s druhým vstupem do domu, koupelna se sprchovým koutem (7,31 m²) a samostatná toaleta (2,17 m²). Kvalitní vinylové podlahy podtrhují moderní a příjemnou atmosféru interiéru. Součástí domu je také přístřešek o velikosti 27,09 m² a zahradní domek o výměře 19 m². Celý pozemek o rozloze 1 332 m² je kompletně oplocený a opatřený elektrickou vjezdovou bránou.

Technické řešení domu odpovídá dnešním nárokům na moderní a úsporné bydlení – vytápění a ohřev vody zajišťuje tepelné čerpadlo, připraven je i komín pro instalaci krbových kamen. Dům je napojen na veřejný vodovod a kanalizaci a je zařazen do energetické třídy B – velmi úsporný.

Podolí I je vyhledávaná lokalita pro svou krásnou přírodu, příjemnou komunitu a výbornou dostupnost do Písku (cca 10 minut autem). Jde o ideální místo pro rodiny s dětmi, sportovce i všechny, kdo hledají klidné bydlení blízko města, a přitom s dostatkem soukromí a prostoru.

Mezi hlavní výhody této nemovitosti patří moderní novostavba bez nutnosti dalších investic, velký pozemek s možností realizace zahrady snů, energeticky úsporné řešení a klidné a bezpečné místo pro život.

Neváhejte a přijďte se podívat na svůj nový domov v srdci Jihočeského kraje a domluvte si prohlídku ještě dnes.

Tento dům lze financovat hypotečním úvěrem. Zájemcům v rámci našich služeb nabízíme výhodné financování vytvořené na míru pro tuto nemovitost.

Parametry domu

Cena
7 990 000 Kč /za nemovitost Spočítat hypotéku
Aktualizováno
19. 1. 2026
Adresa
Podolí I
ID
622025
Stavba
Cihlová
Stav objektu
Novostavba
Druh objektu
Samostatný
Lokalita objektu
Okraj obce
Užitná plocha
111 m2
Zastavěná plocha
170 m2
Podlahová plocha
138 m2
Plocha pozemku
1332 m2
Plocha zahrady
1162 m2
Třída energetické náročnosti
B - Velmi úsporná
Odpad
Veřejná kanalizace
Topení
Podlahové
Komunikace
Zpevněná
Doprava
Silnice
Voda
Vodovod
Topné těleso
Podlahové vytápění
Zdroj topení
Tepelné čerpadlo
Zdroj teplé vody
Tepelné čerpadlo
Výtah
Bezbarierový přístup

Kontaktovat makléře

Máte zájem o tento dům?

Tímto, v souladu s nařízením Evropského parlamentu a Rady (EU) 2016/679, v platném znění, prohlašuji, že mi je alespoň 16 let a uděluji tak svůj souhlas se zpracováním zadaných údajů (jméno, telefon, e-mail, ip adresa) společnosti B3 Technology, s.r.o., IČ: 07330600, se sídlem Novostavby 126/23, 435 11 Lom (správce dat), za účelem předání dotazu z tohoto formuláře Vámi vybranému inzerentovi a zpětného kontaktování mé osoby. Osobní údaje bude správce zpracovávat manuálně i automaticky přímo prostřednictvím svých zaměstnanců. Informace předané tímto formulářem budou uloženy v databázi správce maximálně po dobu 10 let. Odvolání souhlasu s uložením a zpracováním poskytnutých dat lze e-mailem na info@videobydleni.cz. V případě podezření na neoprávněné použití Vámi poskytnutých údajů máte právo předat podnět k šetření Úřadu pro ochranu osobních údajů. Více informací
Chystáte se prodat nemovitost?
Pomůžeme Vám!

Inzerát si prohlédlo 7 lidí

Prodejce

Petra Smetanová

Petra Smetanová

Hlídací pes

Chcete dostávat emailem podobné nabídky prodeje rodinných domů v Podolí I?

Podobné nemovitosti


Nevyhovuje Vám typ domu? Podívejte se na jiné kategorie domů.


Vybrané články z našeho blogu