Prodej rodinného domu, Děpoltovice - Nivy, 155 m2 (ID: 4096856)

Děpoltovice, Nivy

6 990 000 Kč /za nemovitost HYPOTÉKA od 31 241 Kč /za měsíc
Prémioví partneři v Děpoltovicích

Informace k domu

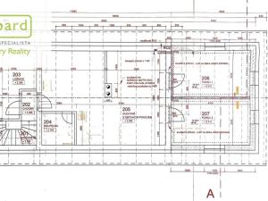
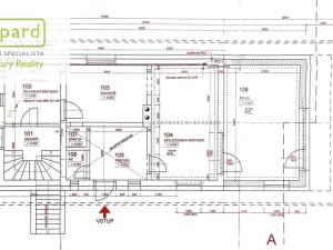
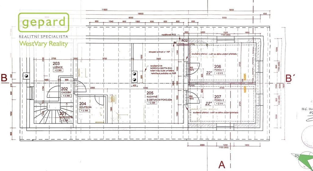
Toužíte-li po klidném bydlení, rádi Vám zprostředkujeme prodej rodinného domu v obci Nivy. Předmětem prodeje je dvoupodlažní dům s obytným podkrovím o obytné ploše 155 m2. Dům prošel kompletní rekonstrukcí a před třemi lety byl stávající dům rozšířen o přístavbu. Dům má dva samostatné vchody a je zde možnost ho využívat jako dvougenerační. V přízemí (74,7 m2) se nachází zádveří, ze kterého je přístup do technické místnosti. Dále se v přízemí nachází kuchyně, dvě místnosti, z níž jedna disponuje vstupem na terasu. Dále je zde koupelna se sprchou a samostatné WC. Z jedné místnosti je vstup do předsíně a z té druhý vstup do domu. Pod předsíní se nachází sklep, který je přístupný schodištěm zvenku. Točitým schodištěm proti vstupu do technické místnosti se dostaneme do druhého nadzemního podlaží domu (80 m2). Zde se nachází ložnice, obývací pokoj s kuchyňským koutem, dva samostatné dětské pokoje a koupelna s WC. V části domu je položeno podlahové vytápění, zbytek je řešen radiátory. Vše je zajištěno tepelným čerpadlem, jako doplňkový zdroj tepla slouží krbová kamna v obývacím pokoji. Pro ohřev teplé vody je v technické místnosti umístěn bojler a dále akumulační nádoba sloužící k ohřevu vody pro vytápění. Dům je zateplen a má novou fasádu. Elektřina je v mědi, rozvody vody v plastu. Přípojka plynu ani kanalizace zde není. Užitková a pitná voda je řešena studnou a 300 l zásobníkem na pitnou vodu. Zahrada nabízí místo odpočinku s krásným výhledem do přírody na okolní lesy. Parkování je možné jak přímo u domu, tak před domem. Dojezdová vzdálenost do okolních obcí, jak Nové Role, tak Karlových Varů je velice dobrá. Prohlídku domu Vám rádi zprostředkujeme, s financováním dokážeme pomoci. Více informací u makléře pod ID nabídky 11722.

Parametry domu

Cena
6 990 000 Kč /za nemovitost Spočítat hypotéku
Aktualizováno
3. 11. 2025
Adresa
Děpoltovice, Nivy
ID
11722
Stavba
Cihlová
Stav objektu
Velmi dobrý
Vybaveno
Částečně
Typ objektu
Přízemní
Druh objektu
Samostatný
Lokalita objektu
Klidná část obce
Užitná plocha
155 m2
Zastavěná plocha
96 m2
Podlahová plocha
155 m2
Plocha pozemku
96 m2
Plocha zahrady
656 m2
Třída energetické náročnosti
B - Velmi úsporná
Elektřina
120V, 230V
Odpad
Septik, Jímka
Komunikace
Asfaltová
Doprava
Silnice, Autobus
Voda
Místní zdroj vody, Studna
Převod do OV

Kontaktovat makléře

Realitní kancelář

GEPARD REALITY/WestVary Reality

Jaltská 906/1, Karlovy Vary 360 01, Karlovy Vary

Chystáte se prodat nemovitost?
Pomůžeme Vám!

Máte zájem o tento dům?

Tímto, v souladu s nařízením Evropského parlamentu a Rady (EU) 2016/679, v platném znění, prohlašuji, že mi je alespoň 16 let a uděluji tak svůj souhlas se zpracováním zadaných údajů (jméno, telefon, e-mail, ip adresa) společnosti B3 Technology, s.r.o., IČ: 07330600, se sídlem Novostavby 126/23, 435 11 Lom (správce dat), za účelem předání dotazu z tohoto formuláře Vámi vybranému inzerentovi a zpětného kontaktování mé osoby. Osobní údaje bude správce zpracovávat manuálně i automaticky přímo prostřednictvím svých zaměstnanců. Informace předané tímto formulářem budou uloženy v databázi správce maximálně po dobu 10 let. Odvolání souhlasu s uložením a zpracováním poskytnutých dat lze e-mailem na info@videobydleni.cz. V případě podezření na neoprávněné použití Vámi poskytnutých údajů máte právo předat podnět k šetření Úřadu pro ochranu osobních údajů. Více informací
Chystáte se prodat nemovitost?
Pomůžeme Vám!

Inzerát si prohlédlo 1 lidí

Prodejce

Hana Löbelová

Hana Löbelová

Hlídací pes

Chcete dostávat emailem podobné nabídky prodeje rodinných domů v Děpoltovicích?

Podobné nemovitosti


Nevyhovuje Vám typ domu? Podívejte se na jiné kategorie domů.


Vybrané články z našeho blogu