Prodej rodinného domu, Zlín, Podvesná XIV, 68 m2

Podvesná XIV, Zlín

4 597 000 Kč /za nemovitost HYPOTÉKA od 20 546 Kč /za měsíc
Prémioví partneři v Zlíně

Informace k domu

Teď zaplatíte 3,5 mil. Kč a zbylou část 1,1 mil. Kč si jednoduše převezmete formou výhodného hypotečního úvěru se sazbou 1,89 % a fixací do 7/2028.
To znamená výraznou úsporu oproti dnešním úrokovým sazbám a velmi zajímavou příležitost, jak pořídit dům za výhodných podmínek.

Buď je milujete, nebo nenávidíte – řeč je o typických baťovských půldomcích, které jsou neodmyslitelnou součástí Zlína. A právě jeden z nich teď nabízím v oblíbené lokalitě Podvesná.

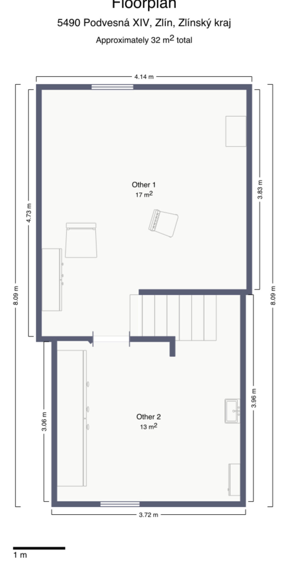
Dům s dispozicí 3+1 má obytnou plochu 68 m² a k tomu velkorysé zázemí – sklep o velikosti 32 m² a garážovou dílnu, kterou lze přestavět na prostornou přístavbu.

Hlavní předností je velká zahrada, která je dlouhodobě zajištěna městskou výpůjčkou. Na pozemku pohodlně zaparkujete dvě / tři auta, v zadní části zahrady najdete pergolu k posezení a bezpečné místo pro dětské hry.

Dům je napojen na veškeré inženýrské sítě, má plastová okna a plynový kotel. Je však potřeba počítat s tím, že stav domu je vhodný ke rekonstrukci.

Lokalita Podvesná nabízí klidné rodinné prostředí a zároveň skvělou dostupnost – pěšky jste za pár minut u nemocnice, na cyklostezce nebo v centru města.

Pokud hledáte dům s potenciálem, ve výborné lokalitě a s možností převzít velmi výhodný úvěr, je tato nabídka ideální kombinací ceny, polohy a budoucí hodnoty.

Zaujalo vás to? Zavolejte mi a domluvíme prohlídku. Rád vám dům osobně ukážu, poradím s možnostmi rekonstrukce i rozdělení a moji kolegové vám následně pomohou i s financováním.

Průkaz energetické náročnosti budovy nebyl předložen – dle platné legislativy uvádíme energetickou třídu G.

Neváhejte mě kontaktovat! 


Váš zlínský makléř, Tomáš
KONIOR & Partners | Real Estate

Parametry domu

Cena
4 597 000 Kč /za nemovitost Spočítat hypotéku
Aktualizováno
30. 11. 2025
Adresa
Podvesná XIV, Zlín
ID
N00117
Stavba
Cihlová
Stav objektu
Před rekonstrukcí
Vybaveno
Ne
Typ objektu
Patrový
Druh objektu
Rohový
Lokalita objektu
Klidná část obce
Vlastnictví
Osobní
Užitná plocha
68 m2
Zastavěná plocha
50 m2
Plocha pozemku
300 m2
Třída energetické náročnosti
G - Mimořádně nehospodárná
Elektřina
230V
Plyn
Individuální, Plynovod
Odpad
Veřejná kanalizace
Topení
Lokální plynové
Telekomunikace
Telefon, Internet, Kabelová televize, Kabelové rozvody
Doprava
Vlak, Silnice, MHD, Autobus
Voda
Vodovod
Garáž
Sklep
Bezbarierový přístup
Parkování

Kontaktovat makléře

Máte zájem o tento dům?

Tímto, v souladu s nařízením Evropského parlamentu a Rady (EU) 2016/679, v platném znění, prohlašuji, že mi je alespoň 16 let a uděluji tak svůj souhlas se zpracováním zadaných údajů (jméno, telefon, e-mail, ip adresa) společnosti B3 Technology, s.r.o., IČ: 07330600, se sídlem Novostavby 126/23, 435 11 Lom (správce dat), za účelem předání dotazu z tohoto formuláře Vámi vybranému inzerentovi a zpětného kontaktování mé osoby. Osobní údaje bude správce zpracovávat manuálně i automaticky přímo prostřednictvím svých zaměstnanců. Informace předané tímto formulářem budou uloženy v databázi správce maximálně po dobu 10 let. Odvolání souhlasu s uložením a zpracováním poskytnutých dat lze e-mailem na info@videobydleni.cz. V případě podezření na neoprávněné použití Vámi poskytnutých údajů máte právo předat podnět k šetření Úřadu pro ochranu osobních údajů. Více informací
Chystáte se prodat nemovitost?
Pomůžeme Vám!

Inzerát si prohlédlo 28 lidí

Prodejce

Tomáš Konior

Tomáš Konior

Hlídací pes

Chcete dostávat emailem podobné nabídky prodeje rodinných domů v Zlíně?

Podobné nemovitosti


Nevyhovuje Vám typ domu? Podívejte se na jiné kategorie domů.


Vybrané články z našeho blogu