Prodej bytu 4+kk, Praha - Michle, Ohradní, 138 m2

Ohradní, Praha, Michle

21 990 000 Kč /za nemovitost HYPOTÉKA od 98 282 Kč /za měsíc

(cena k jednání)

Prémioví partneři v Praze

Stěhovací služby

Výkup a prodej starého nábytku

Informace k bytu

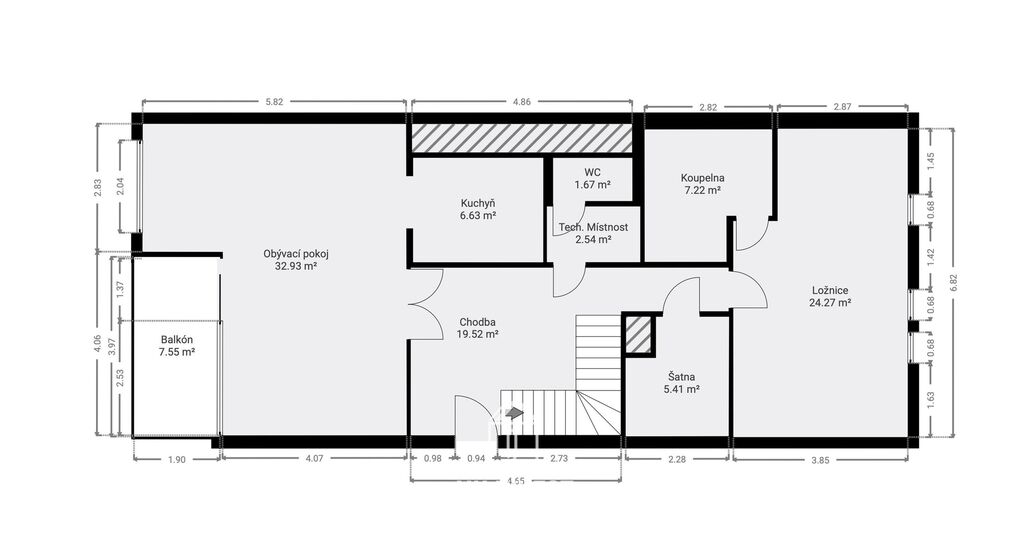
Nabízíme k prodeji nadstandardní mezonetový byt 4+kk o velikosti 138 m² s balkonem 7,5 m², umístěný v klidné ulici Ohradní, Praha 4 – Michle.

Byt zaujme velkorysým prostorem, promyšlenou dispozicí a kvalitním provedením. Je rozložen do dvou podlaží, která spojují komfort rodinného domu s výhodami městského bydlení. Díky orientaci a velkým oknům působí interiér světlým a vzdušným dojmem.

Vstupní úroveň tvoří prostorná hala s vestavnými úložnými prostory a šatnou. Na ni navazuje obývací pokoj s krbovými kamny propojený s jídelní částí a moderní kuchyní vybavenou značkovými spotřebiči. Z obývací části je přímý vstup na lodžii, ideální pro ranní kávu či večerní posezení. V této části se dále nachází hlavní ložnice s vlastní koupelnou, samostatná toaleta s pračkou a sušičkou, šatna na míru.

V horním patře jsou umístěny dvě ložnice, druhá koupelna, praktická kuchyňka a otevřený kout vhodný pro home office, dětský herní prostor nebo relaxační zónu. Součástí vybavení je také sauna, která zpříjemní zimní dny a dodá bytu jedinečný charakter. Interiér je laděn do nadčasových tónů a doplněn o vestavný nábytek na míru i klimatizaci.

Dispozice:
• vstupní hala s šatnou a úložnými prostory
• prostorný obývací pokoj s jídelnou a vstupem na lodžii
• plně vybavená kuchyně se značkovými spotřebiči
• ložnice s vlastní koupelnou
• samostatná toaleta s pračkou a sušičkou
• šatna
• dvě ložnice v horním patře
• druhá koupelna
• kuchyňka a otevřený kout (home office / relax)
• sauna

K bytu je možné pronajmout parkovací stání v podzemní garáži vzdálené cca 200 m (2 000 Kč/měsíc + poplatky), případně druhé místo za stejných podmínek.

Lokalita:

Dům se nachází v ulici Ohradní, v těsné blízkosti Brumlovky a BB Centra, kde je veškerá občanská vybavenost – obchody, kavárny, restaurace, fitness centra i služby.
V okolí je dostatek zeleně, parky i sportoviště, díky čemuž lokalita nabízí příjemné zázemí v dosahu centra města.
Výborné dopravní spojení – tramvaj a autobus v docházkové vzdálenosti, rychlý přístup na magistrálu i D1.

Shrnutí výhod:

• Dispozice 4+kk, 138 m² + balkon 7,5 m²
• Mezonet ve vysokém standardu vybavení
• Sauna, klimatizace, vestavný nábytek
• Možnost parkovacího stání
• Klidná ulice u Brumlovky, výborné spojení do centra

Pokud hledáte prostorný byt s nadstandardním vybavením a perfektní dostupností, tato nemovitost v Michli splní všechna vaše očekávání.
Pro více informací nebo domluvení prohlídky nás prosím kontaktujte.

Parametry bytu

Cena
21 990 000 Kč /za nemovitost Spočítat hypotéku
Poznámka k ceně
cena k jednání
Náklady na bydlení
cca.7500 Kč
Aktualizováno
18. 11. 2025
Adresa
Ohradní, Praha, Michle
ID
00077
Stavba
Cihlová
Stav objektu
Velmi dobrý
Patro
5. z 5
Vybaveno
Ano
Vlastnictví
Osobní
Užitná plocha
138 m2
Podlahová plocha
146 m2
Třída energetické náročnosti
C - Úsporná
Ukazatel energetické náročnosti
116 kWh/m2 za rok
Plyn
Plynovod
Odpad
Veřejná kanalizace
Komunikace
Asfaltová
Telekomunikace
Telefon, Internet, Satelit, Kabelová televize, Kabelové rozvody
Doprava
Vlak, Dálnice, Silnice, MHD, Autobus
Voda
Vodovod
Balkon
Lodžie
Terasa
Výtah

Kontaktovat makléře

Máte zájem o tento byt?

Tímto, v souladu s nařízením Evropského parlamentu a Rady (EU) 2016/679, v platném znění, prohlašuji, že mi je alespoň 16 let a uděluji tak svůj souhlas se zpracováním zadaných údajů (jméno, telefon, e-mail, ip adresa) společnosti B3 Technology, s.r.o., IČ: 07330600, se sídlem Novostavby 126/23, 435 11 Lom (správce dat), za účelem předání dotazu z tohoto formuláře Vámi vybranému inzerentovi a zpětného kontaktování mé osoby. Osobní údaje bude správce zpracovávat manuálně i automaticky přímo prostřednictvím svých zaměstnanců. Informace předané tímto formulářem budou uloženy v databázi správce maximálně po dobu 10 let. Odvolání souhlasu s uložením a zpracováním poskytnutých dat lze e-mailem na info@videobydleni.cz. V případě podezření na neoprávněné použití Vámi poskytnutých údajů máte právo předat podnět k šetření Úřadu pro ochranu osobních údajů. Více informací
Chystáte se prodat nemovitost?
Pomůžeme Vám!

Inzerát si prohlédlo 39 lidí

Prodejce

Caroline Damianová

Caroline Damianová

Hlídací pes

Chcete dostávat emailem podobné nabídky prodeje bytů 4+kk v Praze?

Podobné nemovitosti


Nevyhovuje Vám typ bytu? Podívejte se na jiné kategorie bytů.


Vybrané články z našeho blogu