Remax Monarcha

Prodej rodinného domu, Tršice - Přestavlky, 143 m2

Tršice, Přestavlky

10 590 000 Kč /za nemovitost HYPOTÉKA od 47 331 Kč /za měsíc

(včetně právního servisu, provize RK, cena v RK)

Prémioví partneři v Tršicích

Informace k domu

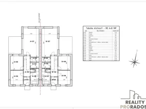
Nabízíme vám novostavbu rodinného domu v obci Tršice (katastrální území Přestavlky) o dispozici 5+kk se zahradou a celkovou výměrou pozemku 509 m².
Dvoupodlažní dům s užitnou plochou 143,26 m² je situován na rovinatém pozemku v klidné lokalitě s výbornou dostupností do Olomouce.
Dům je prodáván ve stavu „na klíč“.
Součástí výstavby je tepelné čerpadlo, které zajišťuje nízké provozní náklady, okna s trojskly a použití vysoce kvalitních materiálů pro dlouhou životnost a nadčasový design.
Vnitřní uspořádání domu bylo navrženo tak, aby poskytovalo maximální komfort, dostatek prostoru a světla pro moderní rodinné bydlení.
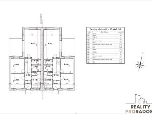
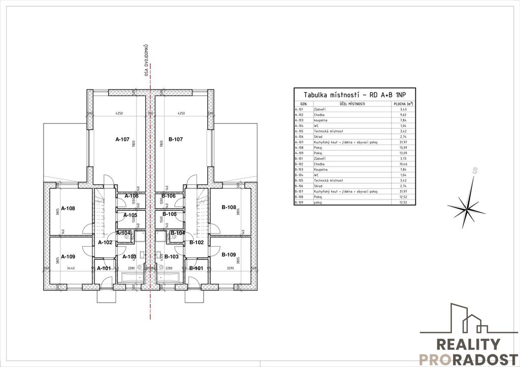
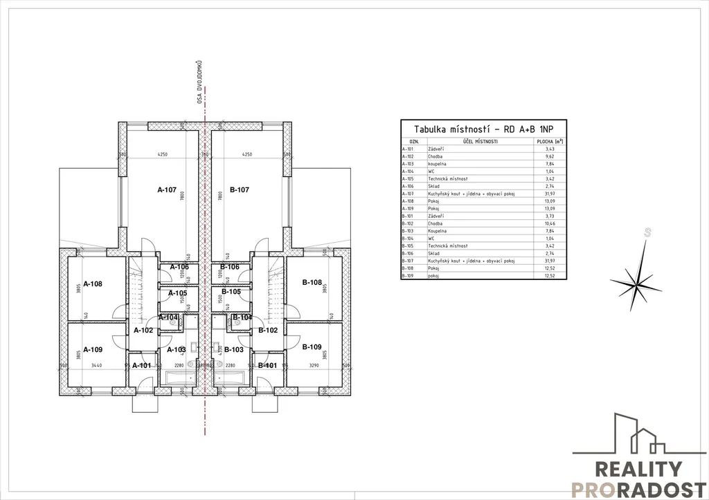
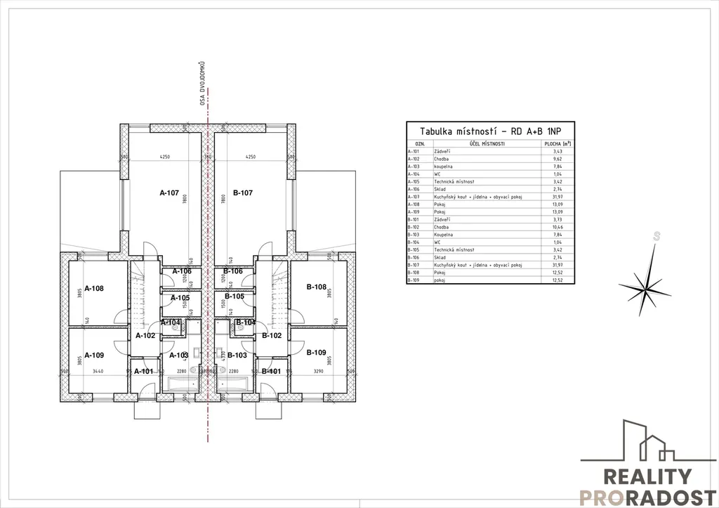
Dispozice:
1. NP:
-vstupní chodba,
-dvě ložnice,
-prostorný obývací pokoj s kuchyní a jídelním koutem se vstupem na terasu,
-koupelna s toaletou,
-samostatná toaleta,
-technická místnost a spíž.
2. NP:
-dvě ložnice se šatnami,
-koupelna s toaletou.
Další informace:
-plánované předání nemovitosti: květen 2026,
-klidná lokalita s příjemnou atmosférou venkova a dobrou dostupností do města,
-možnost úprav standardů dle přání klienta.
Pro více informací o standardech výstavby nebo pro sjednání osobní prohlídky kontaktujte makléřku nabídky.
Těšíme se na vás!

Parametry domu

Cena
10 590 000 Kč /za nemovitost Spočítat hypotéku
Poznámka k ceně
včetně právního servisu, provize RK, cena v RK
Aktualizováno
8. 4. 2026
Adresa
Tršice, Přestavlky
ID
28154
Stavba
Cihlová
Stav objektu
Novostavba
Typ objektu
Patrový
Druh objektu
Řadový
Lokalita objektu
Klidná část obce
Užitná plocha
143 m2
Podlahová plocha
143 m2
Plocha pozemku
509 m2
Třída energetické náročnosti
G - Mimořádně nehospodárná
Elektřina
230V
Odpad
Jímka
Komunikace
Asfaltová, Zpevněná, Štěrková
Doprava
Silnice, MHD
Voda
Vodovod, Retenční nádrž na dešt’ovou vodu
Převod do OV
Parkování

Kontaktovat makléře

Máte zájem o tento dům?

Tímto, v souladu s nařízením Evropského parlamentu a Rady (EU) 2016/679, v platném znění, prohlašuji, že mi je alespoň 16 let a uděluji tak svůj souhlas se zpracováním zadaných údajů (jméno, telefon, e-mail, ip adresa) společnosti B3 Technology, s.r.o., IČ: 07330600, se sídlem Novostavby 126/23, 435 11 Lom (správce dat), za účelem předání dotazu z tohoto formuláře Vámi vybranému inzerentovi a zpětného kontaktování mé osoby. Osobní údaje bude správce zpracovávat manuálně i automaticky přímo prostřednictvím svých zaměstnanců. Informace předané tímto formulářem budou uloženy v databázi správce maximálně po dobu 10 let. Odvolání souhlasu s uložením a zpracováním poskytnutých dat lze e-mailem na info@videobydleni.cz. V případě podezření na neoprávněné použití Vámi poskytnutých údajů máte právo předat podnět k šetření Úřadu pro ochranu osobních údajů. Více informací
Chystáte se prodat nemovitost?
Pomůžeme Vám!

Inzerát si prohlédlo 24 lidí

Prodejce

Pavlina Konzen

Pavlina Konzen

Hlídací pes

Chcete dostávat emailem podobné nabídky prodeje rodinných domů v Tršicích?

Podobné nemovitosti


Nevyhovuje Vám typ domu? Podívejte se na jiné kategorie domů.


Vybrané články z našeho blogu