Prodej pozemku pro bydlení, Jablonec nad Nisou, 577 m2

Jablonec nad Nisou, Kokonín

3 400 000 Kč /za nemovitost HYPOTÉKA od 15 196 Kč /za měsíc
Prémioví partneři v Jablonci nad Nisou

Rekonstrukce

Úklidové služby

Pojištění a finance

Informace k pozemku

Dobrý den,

dovolte nám, nabídnout Vám možnost koupě stavebního pozemku pro výstavbu RD s platným stavebním povolení na výstavbu rodinného domu v městské části Kokonín statutárního města Jablonce nad Nisou.

Obec Kokonín je částí statutárního města Jablonec nad Nisou a nachází se na jihu města. Disponuje základní občanskou vybaveností, jako jsou obchody potravin, restaurace, mateřská a základní škola apod. Plnou občanskou vybavenost pak naleznete v centru města Jablonec nad Nisou. Dopravně je Kokonín obsluhován městskou hromadnou dopravou města Jablonce nad Nisou, zejména autobusovou dopravou. Centrum města je dobře dopravně dostupné automobilem do 5 minut jízdy. Předmětný stavební pozemek leží na okraji obce Kokonín a v jeho blízkosti jsou již lesy, což pozemku dává nezanedbatelnou přidanou hodnotu, zejména v oblasti relaxace a odpočinku.

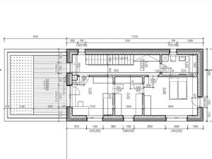
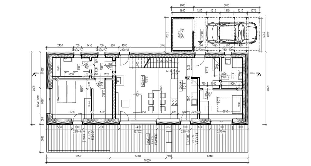
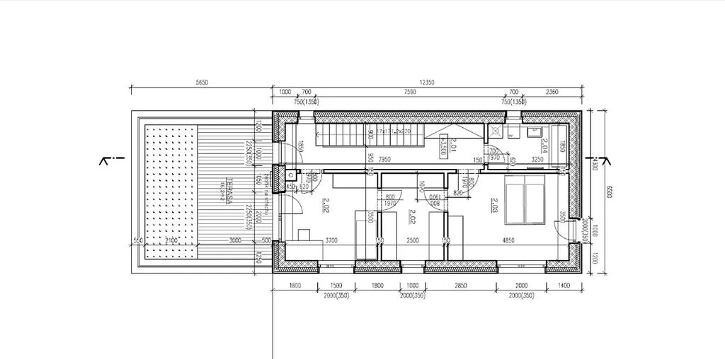
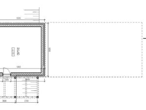
Stavební pozemek pro výstavbu rodinného domu o celkové výměře 577 m2 a investorská práva na výstavbu rodinného domu v podobě stavebního povolení v právní moci včetně projektové dokumentace pro stavební povolení a všech souvisejících podkladů a dokumentů.
Stavební pozemek se skládá ze dvou pozemků, a to z pozemku parc. č. 684/9 o výměře 40 m2 a z pozemku parc. č. 684/4 o výměře 537 m2, vše je zapsáno na listu vlastnictví č. 560 pro katarální území Kokonín, obec Jablonec nad Nisou. Na pozemku povolena výstavba dvoupodlažního rodinného domu. Pozemky se prodávají s platným stavebním povolením na výstavbu rodinného domu o dispozičním řešení 5+KK o celkové kapacitě 181 m2 vnitřní užitné plochy a cca 60 m2 teras. Dům má navržen 2 nadzemní podlaží a je částečně podsklepen. U domu je navrženo kryté parkovací stání pro 1 automobil.

Významná specifika:
• Stavební pozemek s platným stavebním povolením (SP v právní moci 05/2025), tudíž lze ihned přistoupit k realizaci domu.
• Celková výměra pozemků je 577 m2
• Stavební pozemek disponuje vodovodní přípojkou, přípojkou elektrické energie (do 12/2025) a přípojkou kanalizace.
• Povolený RD má dispozici 5+ KK a užitnou plochu 181 m2 + cca 60 m2 teras, lze individuálně úpravit.
• Pozemek leží v blízkosti lesa v klidové části obce, kde se rozvolněná zástavba.
• Výborná poloha vůči centru města Jablonec nad Nisou – velmi dobrá dopravní dostupnost.

Prohlídka je možná po předchozí dohodě ve své podstatě kdykoliv.

Parametry pozemku

Cena
3 400 000 Kč /za nemovitost Spočítat hypotéku
Aktualizováno
20. 5. 2026
Adresa
Jablonec nad Nisou, Kokonín
Lokalita objektu
Okraj obce
Plocha pozemku
577 m2
Elektřina
230V
Odpad
Veřejná kanalizace
Komunikace
Asfaltová
Voda
Vodovod

Kontaktovat makléře

Realitní kancelář

FLATS JBC s.r.o.

Palackého 3145/41, Jablonec nad Nisou

Chystáte se prodat nemovitost?
Pomůžeme Vám!

Máte zájem o tento pozemek?

Tímto, v souladu s nařízením Evropského parlamentu a Rady (EU) 2016/679, v platném znění, prohlašuji, že mi je alespoň 16 let a uděluji tak svůj souhlas se zpracováním zadaných údajů (jméno, telefon, e-mail, ip adresa) společnosti B3 Technology, s.r.o., IČ: 07330600, se sídlem Novostavby 126/23, 435 11 Lom (správce dat), za účelem předání dotazu z tohoto formuláře Vámi vybranému inzerentovi a zpětného kontaktování mé osoby. Osobní údaje bude správce zpracovávat manuálně i automaticky přímo prostřednictvím svých zaměstnanců. Informace předané tímto formulářem budou uloženy v databázi správce maximálně po dobu 10 let. Odvolání souhlasu s uložením a zpracováním poskytnutých dat lze e-mailem na info@videobydleni.cz. V případě podezření na neoprávněné použití Vámi poskytnutých údajů máte právo předat podnět k šetření Úřadu pro ochranu osobních údajů. Více informací
Chystáte se prodat nemovitost?
Pomůžeme Vám!
Theleadway banner

Inzerát si prohlédlo 26 lidí

Prodejce

Ing. Kamil Kocourek

Ing. Kamil Kocourek

Hlídací pes

Chcete dostávat emailem podobné nabídky prodeje pozemků pro bydlení v Jablonci nad Nisou?

Podobné nemovitosti


Nevyhovuje Vám typ pozemku? Podívejte se na jiné kategorie pozemků.


Vybrané články z našeho blogu